Главная Бизнес-центры в Москве и МО Офисное здание Советская 5

Офисное здание Советская 5

ID 51429
Аренда 0
нет предложений
Продажа 0
нет предложений
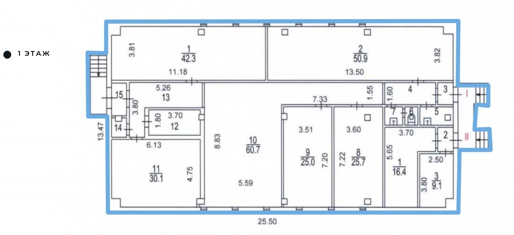
Площадь
298 м²
Класс
C
Количество этажей
1
ИФНС
7731
Статус
действующий
Дата ввода в эксплуатацию
1985/4
г Москва, п Рублево, ул Советская, д 5 На карте
Крылатское
25 мин
Строгино
43 мин
Свободные помещения в Офисное здание Советская 5
Описание

Офисное строение, уютно усевшееся в живописном поселке Рублево по адресу Советская, 5. Здесь арендаторам открывают двери помещения с разнообразной планировкой: как для свободного использования, так и под торговую деятельность – идеально подходящее место для магазина или производственного пространства. Кроме того, в этих помещениях возможны вариации в организации пространства.

Расположение
г Москва, п Рублево, ул Советская, д 5
Крылатское
25 мин
Строгино
43 мин
Технические характеристики
Общая информация
Количество этажей
1
ИФНС
7731
Площадь
298 м²
Дата ввода в эксплуатацию
1985/4
Провайдеры
компания
МГТС (ID 3834)
ID
3834
Парковка
тип
для легкового транспорта
расположение по территории
на территории объекта
Подать заявку
Отдел аренды и продаж
+7 495 032-70-01