Описание
Предложение в аренду № 61412.
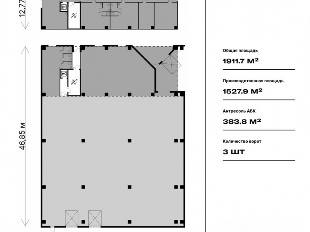
Аренда складского помещения на 1 этаже, площадью 1911.7 м2 в многоэтажном производственном здании формата "Лайт Индастриал" в AFI ПРОМ Алтуфьево
.
. Здание состоит из автономных коммерческих блоков (юнитов), которые можно объединять
. под технологию резидента
.
. Ввод в эксплуатацию декабрь 2026 года
.
. 4 производственных этажа соединены автомобильными рампами с доступов среднетоннажного автотранспорта на этаж
.
. Все помещения обеспечены возможность разгрузки крупнотоннажного, среднетоннажного и малотоннажного транспорта
.
. Вертикальное сообщение обеспечено общими грузовыми лифтами
.
. Общая площадь кластера 375000 м2
. 4 этажа с паркингом на крыше
. Высота потолка 7 метров
. Нагрузка на пол 1.5/4 тонны
. Шаг колонн в производственной зоне 12х12
. АБК выполнен в виде антресолей на отметке +4 метра
. Электрическая мощность 0,09 кВт на 1 кв.м.
.
. Аренда: 23 000 руб/м2/год
. Условия:
. Депозит: экв. 2 МАП
. Срок аренды: от 3 лет
. Схема сделки: ДАБВ
. Индексация: 10%.
.
Без комиссии.
Аренда складского помещения на 1 этаже, площадью 1911.7 м2 в многоэтажном производственном здании формата "Лайт Индастриал" в AFI ПРОМ Алтуфьево
.
. Здание состоит из автономных коммерческих блоков (юнитов), которые можно объединять
. под технологию резидента
.
. Ввод в эксплуатацию декабрь 2026 года
.
. 4 производственных этажа соединены автомобильными рампами с доступов среднетоннажного автотранспорта на этаж
.
. Все помещения обеспечены возможность разгрузки крупнотоннажного, среднетоннажного и малотоннажного транспорта
.
. Вертикальное сообщение обеспечено общими грузовыми лифтами
.
. Общая площадь кластера 375000 м2
. 4 этажа с паркингом на крыше
. Высота потолка 7 метров
. Нагрузка на пол 1.5/4 тонны
. Шаг колонн в производственной зоне 12х12
. АБК выполнен в виде антресолей на отметке +4 метра
. Электрическая мощность 0,09 кВт на 1 кв.м.
.
. Аренда: 23 000 руб/м2/год
. Условия:
. Депозит: экв. 2 МАП
. Срок аренды: от 3 лет
. Схема сделки: ДАБВ
. Индексация: 10%.
.
Без комиссии.
Расположение
г Москва, ш Алтуфьевское, д 27А стр 1
Отрадное
—
8 мин
Технические характеристики
Новость дня
Все новости
Сегодня — 21 апреля, вторник / Москва
"Компания «Арнест» расширяет ассортимент продукции на узбекском рынке"
Сегодня — 21 апреля, вторник / Москва
Henkel защитила свои товарные знаки в России
Сегодня — 21 апреля, вторник / Москва
"Компания «Карго-Трейд» увеличивает свою деятельность на территории индустриального парка «Смирнов»"
Сегодня — 21 апреля, вторник / Москва
Сокращение объема инвестиций в недвижимость Московского региона за первый квартал на 20%
Сегодня — 21 апреля, вторник / Москва
"Компания «Магнит» начала производство замороженных полуфабрикатов на основе теста"
Сегодня — 21 апреля, вторник / Москва
"Открытие производства компрессионного трикотажа в парке "Руднево" в рамках индустриализации".
Сегодня — 21 апреля, вторник / Москва
Бизнес-центр "Кубик" в Мякинино приобретен компанией "ВИМ Сбережения"
Сегодня — 21 апреля, вторник / Москва
Parametr оборудован корпусом формата "флекс бокс" для промпарка Кувекино.
Сегодня — 21 апреля, вторник / Москва
Объем новых торговых помещений в Москве уменьшился до 9,5 тыс. квадратных метров за первый квартал
Сегодня — 21 апреля, вторник / Красноярский
"Ozon открыл новый склад в Красноярском крае"
Вчера — 20 апреля, понедельник / Санкт-Петербург
«"Охта Групп" внесла изменения в дизайн лофт-квартала "Скороход"»
Вчера — 20 апреля, понедельник / Санкт-Петербург
"Реставрация исторической трансформаторной подстанции в Петербурге завершена"
Вчера — 20 апреля, понедельник / Москва
Собственость на российскую сеть кофеен Cofix может быть передана новому владельцу
Вчера — 20 апреля, понедельник / Москва
UPECO приобрела аренду площади в размере 966 квадратных метров в бизнес-парке "Сколково Парк".
Вчера — 20 апреля, понедельник / Москва
"Реконструкция ТРЦ «Европа» стартует в Калининграде"
Вчера — 20 апреля, понедельник / Москва
"Площадь ОЭЗ «Технополис Москва» увеличилась на 38 гектаров"
Вчера — 20 апреля, понедельник / Москва
"Строительство крытого футбольного манежа в Восточном Административном Округе обойдется в 220 миллионов рублей"
Вчера — 20 апреля, понедельник / Москва
В Краснопахорском районе откроется торговая и бытовая зона площадью свыше 800 квадратных метров.
Вчера — 20 апреля, понедельник / Москва
ГК ФСК запустила новый завод по производству строительных материалов в Зеленограде.
Вчера — 20 апреля, понедельник / Санкт-Петербург
Логистическая компания арендовала офисное помещение площадью 730 квадратных метров в бизнес-центре Leader Tower