Купить готовый бизнес 302 м²
ID 11565
Цена
127 000 000 ₽
Ставка
420 530 ₽ / м²
Площадь
302 м²
Этаж
1 из 10
агентство недвижимости
г Москва, ш Волоколамское, д 10
На карте
Сокол
—
15 мин
Стрешнево
—
11 мин
Панфиловская
—
13 мин
Стрешнево
—
11 мин
Описание
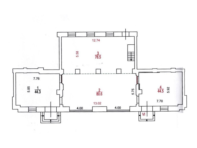
Номер лота на нашем сайте: 12856. Продажа готового арендного бизнеса торговое помещение общей площадью 320 кв.м., включающей 1 этаж - 247,9 кв.м. и подвал - 72,1 кв.м.
Арендатор розничная сеть Магнолия. Договор аренды oт 2011г, доп. соглашение oт 30.03.2018 г.
Арендный поток (МАП) 950.000 руб. в месяц.
ГАП 11 400 000 руб
По договору фиксировано 700000 руб в месяц или 8% от ТО
Остальные коммунальные расходы компенсирует арендатор.
Расположено на 1-ом этаже 10-ти этажного жилого кирпичного дома, 2 отдельных входа, витринное остекление, высота потолков на 1-ом этаже 6 м, в подвале - 2,35 м, выделенная мощность 70 кВт, коммуникации от городских сетей.
Помещение в частной собственности физического лица, упрощенная система налогообложения.
Арендатор розничная сеть Магнолия. Договор аренды oт 2011г, доп. соглашение oт 30.03.2018 г.
Арендный поток (МАП) 950.000 руб. в месяц.
ГАП 11 400 000 руб
По договору фиксировано 700000 руб в месяц или 8% от ТО
Остальные коммунальные расходы компенсирует арендатор.
Расположено на 1-ом этаже 10-ти этажного жилого кирпичного дома, 2 отдельных входа, витринное остекление, высота потолков на 1-ом этаже 6 м, в подвале - 2,35 м, выделенная мощность 70 кВт, коммуникации от городских сетей.
Помещение в частной собственности физического лица, упрощенная система налогообложения.
Расположение
г Москва, ш Волоколамское, д 10
Сокол
—
15 мин
Стрешнево
—
11 мин
Панфиловская
—
13 мин
Стрешнево
—
11 мин
Технические характеристики
Новость дня
Все новости
Сегодня — 16 апреля, четверг / Москва
Рост стоимости строительства офисов премиум-класса в Москве составил 15% за год.
Сегодня — 16 апреля, четверг / Москва
Рост объема сделок с офисными помещениями в новых проектах Дубая в четыре с половиной раза за год
Сегодня — 16 апреля, четверг / Москва
В Щербинке открыли МФЦ с уютным ресторанным двориком
Вчера — 15 апреля, среда / Москва
"Сеть садовых центров «Лемана ПРО» расширяется с открытием нового филиала в Жуковском"
Вчера — 15 апреля, среда / Москва
"Ozon запустил новый логистический центр в Ватутинках"
Вчера — 15 апреля, среда / Москва
"Открытие супермаркета Eurospar в торговом центре «АФИ Галерея» на станции метро Белорусская"
Вчера — 15 апреля, среда / Москва
"Падение спроса на коммерческую недвижимость в новостройках Москвы почти на треть"
Вчера — 15 апреля, среда / Москва
Новый филиал Сбербанка открылся в Торгово-развлекательном центре «Щёлковский»
Вчера — 15 апреля, среда / Москва
"Откроется сервисный офис площадью 4,5 тыс. кв. м в бизнес-центре Dubinin’Sky"
Вчера — 15 апреля, среда / Санкт-Петербург
Сделки на складском рынке Петербурга упали на 80% в первом квартале
Вчера — 15 апреля, среда / Москва
"Компания 'Росспиртпром' приобрела долю в 23,99% Иткульского спиртзавода в Алтайском крае"
Вчера — 15 апреля, среда / Самарская
Сеть «Монетка» расширила свою присутствие, открыв магазины в Самаре и селах Самарской области
Вчера — 15 апреля, среда / Москва
Падение чистой прибыли сети Rendez-Vous на 93% в 2025 году.
14 апреля, вторник / Санкт-Петербург
Планируется развитие культурной инфраструктуры на Ново-Адмиралтейском острове: открытие концертного зала и музея
14 апреля, вторник / Санкт-Петербург
Объем доступных складских площадей в Санкт-Петербурге достиг 5,8 миллиона квадратных метров
14 апреля, вторник / Москва
"«Авивир» переезжает в деловой квартал 'Сколково Парк' в качестве резидента"
14 апреля, вторник / Москва
"Производство российских микрофокусных рентгеновских устройств стартовало в ОЭЗ «Технополис Москва»"
14 апреля, вторник / Москва
"Рост рынка торговой недвижимости притормозил"
14 апреля, вторник / Москва
«Строительная компания "Галс-Девелопмент" планирует возведение первого бизнес-центра в районе "Южный порт"»
14 апреля, вторник / Москва
"«Роснефть» расширяет свои активы, приобретая компанию «Саянскхимпласт», специализирующуюся на производстве ПВХ"