Описание
Лот 39717. Малаховка. Правая сторона. Калинина 30. Просторный дом в стародачном месте. Кирпичный дом, внешне оштукатурен и покрашен, площадью 700 кв.м. Расположен среди вековых сосен в закрытом охраняемом поселке.
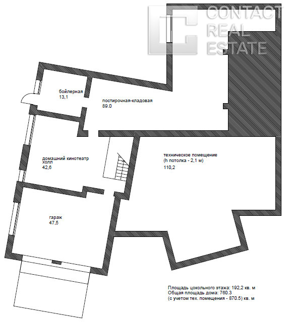
Возведен по индивидуальному проекту с применением качественных материалов, оригинальная многоуровневая планировка, светлые помещения. Фундамент - монолитный ленточный, ж/б перекрытия. В доме уютная гостиная с камином, 5 спален, сауна, зимний сад, 7 санузлов, кабинет, спортивный зал, кинозал, библиотека, два балкона (19 кв.м и 9 кв.м). В светлом доме 4 уровня, на полу плитка, в спальнях паркет, высокие потолки, удобная лестница, все сделано со вкусом и очень качественно. Отопление от газового котла, все коммуникации центральные.
Участок. 56 соток здорового леса со своим микроклиматом, экодизайном и обитателями (дятлы и белки). Участок. правильной формы, ухожен, огорожен кирпичным забором. На участке расположен двухэтажный хозблок с гаражом и жилой зоной.
Рядом расположен действующий санаторий, что характеризует это место как уникальное, с целебными свойствами, идеально для профилактики бронхо-легочных заболеваний (песчаные почвы и хвойный лес). До участка асфальтированная улица, солидное окружение, красивые места.
В поселке вся необходимая городская инфраструктура: магазины, школа, детский сад, поликлиника, общественный транспорт, фитнес-клуб, ресторан, теннисные корты, кинотеатр, спортивные сооружения МГАФК (стадион, корты и т.п), Малаховское озеро - 3 км.
Данный объект недвижимости можно приобрести в ипотеку! AFY-501958433
Возведен по индивидуальному проекту с применением качественных материалов, оригинальная многоуровневая планировка, светлые помещения. Фундамент - монолитный ленточный, ж/б перекрытия. В доме уютная гостиная с камином, 5 спален, сауна, зимний сад, 7 санузлов, кабинет, спортивный зал, кинозал, библиотека, два балкона (19 кв.м и 9 кв.м). В светлом доме 4 уровня, на полу плитка, в спальнях паркет, высокие потолки, удобная лестница, все сделано со вкусом и очень качественно. Отопление от газового котла, все коммуникации центральные.
Участок. 56 соток здорового леса со своим микроклиматом, экодизайном и обитателями (дятлы и белки). Участок. правильной формы, ухожен, огорожен кирпичным забором. На участке расположен двухэтажный хозблок с гаражом и жилой зоной.
Рядом расположен действующий санаторий, что характеризует это место как уникальное, с целебными свойствами, идеально для профилактики бронхо-легочных заболеваний (песчаные почвы и хвойный лес). До участка асфальтированная улица, солидное окружение, красивые места.
В поселке вся необходимая городская инфраструктура: магазины, школа, детский сад, поликлиника, общественный транспорт, фитнес-клуб, ресторан, теннисные корты, кинотеатр, спортивные сооружения МГАФК (стадион, корты и т.п), Малаховское озеро - 3 км.
Данный объект недвижимости можно приобрести в ипотеку! AFY-501958433
Расположение
Московская обл, г Люберцы, рп Малаховка
Технические характеристики
Параметры
Водоснабжение
есть
Электричество
есть
Канализация
есть
Газ
есть
Отопление
есть
Тип балкона
балкон
Статус владельца объявления
агентство
Новость дня
Расширение возможностей для B2B-клиентов: Avito вводит новые услуги для строительства складов
На платформе Авито теперь доступна категория "Коммерческое строительство" в сегменте услуг, предлагающая широкий выбор специализированных работ и возведение объектов "под ключ" для бизнеса, что упрощает поиск подрядчиков и субподрядчиков для коммерческих проектов.
Все новости
Вчера — 4 мая, понедельник / Москва
Вложения в недвижимость России за первую половину текущего года составили 169,5 миллиарда рублей.
Вчера — 4 мая, понедельник / Москва
Российский складской рынок продолжает расти: площадь складских помещений превысит 60 млн кв. м к концу 2026 года
Вчера — 4 мая, понедельник / Москва
"Компания "Галс-Девелопмент" получила одобрение на строительство делового центра "Дубининский"."
Вчера — 4 мая, понедельник / Москва
Инвестиционный фонд "Бумеранг Капитал" стал владельцем половины сети кофеен "Цех 85"
Вчера — 4 мая, понедельник / Краснодарский
В Анапе откроется первый отель с инновационными IT-сервисами
Вчера — 4 мая, понедельник / Москва
Планируется строительство торгового центра площадью свыше 6 тыс. кв. м в Краснопахорском районе Москвы.
Вчера — 4 мая, понедельник / Москва
Смена собственника у клубов «Дикая орхидея» и «Дефиле»
Вчера — 4 мая, понедельник / Вологодская
"Прекращена деятельность "наливаек" и магазинов электронных сигарет в Вологодской области"
Вчера — 4 мая, понедельник / Москва
"Exeed перемещает производство из Подмосковья на площадку АГР в Шушарах"
Вчера — 4 мая, понедельник / Москва
На юге Москвы запланировано строительство ТПУ "Кленовый бульвар" на площади 2 гектара.
30 апреля, четверг / Москва
"Бумеранг Капитал" увеличил свою долю в сети кафе-пекарен "Цех 85" до 50%
30 апреля, четверг / Ставропольский
В Кисловодске начался проект строительства инвестиционного отеля "Реликт"
30 апреля, четверг / Москва
Ресторан «Долина 5165» и магазин Sokolov теперь доступны посетителям ТРЦ Avenue Sever
30 апреля, четверг / Москва
"Новый флагманский магазин под названием «Флаувау» открыл свои двери на Мясницкой улице"
30 апреля, четверг / Москва
"Уровень вакансии на складах в Московском регионе достиг 5,4% из-за увеличения предложений по субаренде"
30 апреля, четверг / Москва
"Прогнозируется незначительный прирост числа туристов в первом квартале 2026 года - всего 2,8%"
30 апреля, четверг / Москва
Компания "Ориентир" планирует вложить до 150 млрд рублей в расширение бизнеса и развитие новых секторов.
30 апреля, четверг / Москва
"Завершено строительство наземной парковки на 400 автомобильных мест в парке «Ривер Парк Коломенское»"
30 апреля, четверг / Москва
Скорось открытия новых магазинов «Лэтуаль» снизится - 150 точек закроются к 2026 году.
30 апреля, четверг / Москва
Смайл-бар сети "Белая точка" теперь доступен посетителям ТЦ "Левел Причальный"