Описание
Лот 65338. Синьково. Дом в тихой живописной деревне. Кирпичный дом, внешне отделан декоративным кирпичом, площадью 268 кв.м с отделкой «под ключ».
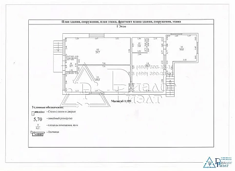
У дома кровля - оцинкованный лист, окна – тройные стеклопакеты. В доме на первом этаже тамбур-прихожая 12 кв.м. просторный холл 14,5 кв.м, просторная кухня 19,5 кв.м, большая гостиная с камином 34 кв.м, спальня 12 кв.м и санузел 6,6 кв.м, пространство свободного назначения.
На втором этаже 3 спальни 12, 12,3 и 24,2 кв.м, санузел 8,2 кв.м и балкон 20,7 кв.м.
На цокольном этаже расположен спортзал 51,3 кв.м., помещение свободного назначения 30 кв.м. котельная 18,4 кв.м. Дом полностью меблирован, оборудован всей необходимой техникой.
На участке 15 соток: гараж, хозблок, беседка, барбекю, детская площадка, садовые деревья. ЛПХ. Участок. огорожен капитальным деревянным забором с кирпичными столбами.
Коммуникации: магистральный газ, электричество 15 кВт, скважина, септик.
Дорога к дому проходит через лесопарковую зону. Солидное окружение. Освещенные улицы. Асфальт до участка. Рядом озеро с рыбалкой, грибной лес.
Прекрасное место для искателей тишины и природы! AFY-506683493
У дома кровля - оцинкованный лист, окна – тройные стеклопакеты. В доме на первом этаже тамбур-прихожая 12 кв.м. просторный холл 14,5 кв.м, просторная кухня 19,5 кв.м, большая гостиная с камином 34 кв.м, спальня 12 кв.м и санузел 6,6 кв.м, пространство свободного назначения.
На втором этаже 3 спальни 12, 12,3 и 24,2 кв.м, санузел 8,2 кв.м и балкон 20,7 кв.м.
На цокольном этаже расположен спортзал 51,3 кв.м., помещение свободного назначения 30 кв.м. котельная 18,4 кв.м. Дом полностью меблирован, оборудован всей необходимой техникой.
На участке 15 соток: гараж, хозблок, беседка, барбекю, детская площадка, садовые деревья. ЛПХ. Участок. огорожен капитальным деревянным забором с кирпичными столбами.
Коммуникации: магистральный газ, электричество 15 кВт, скважина, септик.
Дорога к дому проходит через лесопарковую зону. Солидное окружение. Освещенные улицы. Асфальт до участка. Рядом озеро с рыбалкой, грибной лес.
Прекрасное место для искателей тишины и природы! AFY-506683493
Расположение
Московская обл, г Раменское, село Синьково
Технические характеристики
Параметры
Водоснабжение
есть
Электричество
есть
Канализация
есть
Газ
есть
Телекоммуникации
интернет
Отопление
есть
Тип балкона
балкон
Статус владельца объявления
агентство
Новость дня
Расширение возможностей для B2B-клиентов: Avito вводит новые услуги для строительства складов
На платформе Авито теперь доступна категория "Коммерческое строительство" в сегменте услуг, предлагающая широкий выбор специализированных работ и возведение объектов "под ключ" для бизнеса, что упрощает поиск подрядчиков и субподрядчиков для коммерческих проектов.
Все новости
Сегодня — 5 мая, вторник / Москва
"Сбербанк и Альфа-банк подали в суд на производителя обоев «Артекс» с требованием объявить его банкротом"
Сегодня — 5 мая, вторник / Красноярский
"Магазин «ВкусВилл» открыл отдел shop-in-shop в Красноярске через партнерство"
Сегодня — 5 мая, вторник / Адыгея
Строительство жилого комплекса на территории туристического парка "Дегуакская поляна" в Адыгее начнется архитектурным проектом от "Семьи" объемом 360 тыс. квадратных метров.
Сегодня — 5 мая, вторник / Москва
"Прогнозируется достижение рекордной площади 500 тыс. кв. м под light industrial в Московском регионе к 2026 году"
Сегодня — 5 мая, вторник / Астраханская
Фитнес-клуб DDX Fitness открылся в Торгово-Развлекательном Центре «Ярмарка» в городе Астрахань.
Сегодня — 5 мая, вторник / Москва
"Объем спроса на офисные помещения в Москве сократился вдвое за последний год"
Сегодня — 5 мая, вторник / Москва
"Рост стоимости отделки офисов в Москве превышает уровень инфляции"
Сегодня — 5 мая, вторник / Москва
В России впервые за 20 лет не было открыто ни одной новой гостиницы в первом квартале
Сегодня — 5 мая, вторник / Москва
Спрос на услуги аренды апартаментов в Санкт-Петербурге упал на четверть.
Сегодня — 5 мая, вторник / Москва
"Сеть магазинов 'Лента' запустила свой первый розничный магазин специализированных товаров для ремонта, дачи и сада в Шушарах"
Вчера — 4 мая, понедельник / Москва
Вложения в недвижимость России за первую половину текущего года составили 169,5 миллиарда рублей.
Вчера — 4 мая, понедельник / Москва
Российский складской рынок продолжает расти: площадь складских помещений превысит 60 млн кв. м к концу 2026 года
Вчера — 4 мая, понедельник / Москва
"Компания "Галс-Девелопмент" получила одобрение на строительство делового центра "Дубининский"."
Вчера — 4 мая, понедельник / Москва
Инвестиционный фонд "Бумеранг Капитал" стал владельцем половины сети кофеен "Цех 85"
Вчера — 4 мая, понедельник / Краснодарский
В Анапе откроется первый отель с инновационными IT-сервисами
Вчера — 4 мая, понедельник / Москва
Планируется строительство торгового центра площадью свыше 6 тыс. кв. м в Краснопахорском районе Москвы.
Вчера — 4 мая, понедельник / Москва
Смена собственника у клубов «Дикая орхидея» и «Дефиле»
Вчера — 4 мая, понедельник / Вологодская
"Прекращена деятельность "наливаек" и магазинов электронных сигарет в Вологодской области"
Вчера — 4 мая, понедельник / Москва
"Exeed перемещает производство из Подмосковья на площадку АГР в Шушарах"
Вчера — 4 мая, понедельник / Москва
На юге Москвы запланировано строительство ТПУ "Кленовый бульвар" на площади 2 гектара.