Описание
Лот 65132. Рассудово, Царское село.
МОСКОВСКАЯ ПРОПИСКА. Полная стоимость в Договоре.
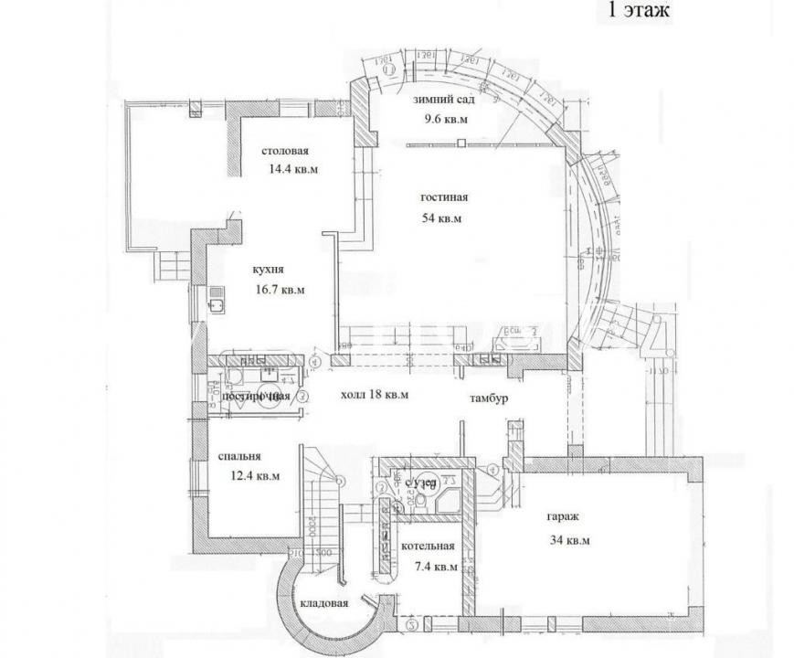
Комбинированный дом из кирпича и бруса с балконом и террасой в уникальном эко-районе Новой Москвы площадью 386 кв.м. с отделкой «под ключ».
У дома первый этаж кирпичный, второй и третий из бруса с наружной отделкой блок-хаусом, кровля - металлочерепица,
В доме: зал с камином, уютная гостиная с выходом на обширный застекленный балкон, оборудованная кухня-столовая, 5 спален, комната свободного назначения, просторный холл, 3 с/у, большая терраса.
Чистый и светлый дом полностью меблирован, оборудован всей необходимой техникой, имеет 3 выхода.
Участок. 19,52 соток: баня с запасом дров, беседка, барбекю, парник парковка на 2 машины; выполнены ландшафтные работы, красивый сад с редкими растениями. ИЖС. Участок. огорожен забором из металлопрофиля (высота 2 м).
Коммуникации: Электрическая мощность 8 кВт, 3 фазы, газ магистральный, энергонезависимый котел и бойлер (200л), система очистки воды, вентиляция, водоснабжение и канализация центральные, интернет, спутниковое телевидение.
Дорога к поселку проходит через лесопарковую зону. Солидное окружение. Освещенные улицы. Рядом лес и пруд (200 м).
Благодаря своему расположению, внешняя инфраструктура включает в себя весь городской комфорт: школы, детские сады, торговые центры, фитнес-клубы, поликлиники, кафе, рестораны, парк «Сосны» с прудами, велодорожками, детскими и спортивными площадками площадью 13,5Га.
Транспортная доступность: на машине 35 мин от МКАД по Киевскому или Минскому шоссе, остановка московского автобуса и ж/д станция Рассудово в пешей доступности, до школы ходит школьный автобус.
Отличное место для загородного отдыха и комфортного проживания в экологически чистом районе.
Безопасность сделки обеспечена высокими стандартами Гильдии Риэлторов Москвы.
Все сделки застрахованы АО "АльфаСтрахование" AFY-506688333
МОСКОВСКАЯ ПРОПИСКА. Полная стоимость в Договоре.
Комбинированный дом из кирпича и бруса с балконом и террасой в уникальном эко-районе Новой Москвы площадью 386 кв.м. с отделкой «под ключ».
У дома первый этаж кирпичный, второй и третий из бруса с наружной отделкой блок-хаусом, кровля - металлочерепица,
В доме: зал с камином, уютная гостиная с выходом на обширный застекленный балкон, оборудованная кухня-столовая, 5 спален, комната свободного назначения, просторный холл, 3 с/у, большая терраса.
Чистый и светлый дом полностью меблирован, оборудован всей необходимой техникой, имеет 3 выхода.
Участок. 19,52 соток: баня с запасом дров, беседка, барбекю, парник парковка на 2 машины; выполнены ландшафтные работы, красивый сад с редкими растениями. ИЖС. Участок. огорожен забором из металлопрофиля (высота 2 м).
Коммуникации: Электрическая мощность 8 кВт, 3 фазы, газ магистральный, энергонезависимый котел и бойлер (200л), система очистки воды, вентиляция, водоснабжение и канализация центральные, интернет, спутниковое телевидение.
Дорога к поселку проходит через лесопарковую зону. Солидное окружение. Освещенные улицы. Рядом лес и пруд (200 м).
Благодаря своему расположению, внешняя инфраструктура включает в себя весь городской комфорт: школы, детские сады, торговые центры, фитнес-клубы, поликлиники, кафе, рестораны, парк «Сосны» с прудами, велодорожками, детскими и спортивными площадками площадью 13,5Га.
Транспортная доступность: на машине 35 мин от МКАД по Киевскому или Минскому шоссе, остановка московского автобуса и ж/д станция Рассудово в пешей доступности, до школы ходит школьный автобус.
Отличное место для загородного отдыха и комфортного проживания в экологически чистом районе.
Безопасность сделки обеспечена высокими стандартами Гильдии Риэлторов Москвы.
Все сделки застрахованы АО "АльфаСтрахование" AFY-506688333
Расположение
г Москва, Новофедоровское п, п Рассудово
Технические характеристики
Параметры
Водоснабжение
есть
Электричество
есть
Канализация
есть
Газ
есть
Телекоммуникации
интернет
Отопление
есть
Тип балкона
балкон
Статус владельца объявления
агентство
Новость дня
Расширение возможностей для B2B-клиентов: Avito вводит новые услуги для строительства складов
На платформе Авито теперь доступна категория "Коммерческое строительство" в сегменте услуг, предлагающая широкий выбор специализированных работ и возведение объектов "под ключ" для бизнеса, что упрощает поиск подрядчиков и субподрядчиков для коммерческих проектов.
Все новости
Сегодня — 5 мая, вторник / Москва
"Объем спроса на офисные помещения в Москве сократился вдвое за последний год"
Сегодня — 5 мая, вторник / Москва
"Рост стоимости отделки офисов в Москве превышает уровень инфляции"
Сегодня — 5 мая, вторник / Москва
В России впервые за 20 лет не было открыто ни одной новой гостиницы в первом квартале
Сегодня — 5 мая, вторник / Москва
Спрос на услуги аренды апартаментов в Санкт-Петербурге упал на четверть.
Сегодня — 5 мая, вторник / Москва
"Сеть магазинов 'Лента' запустила свой первый розничный магазин специализированных товаров для ремонта, дачи и сада в Шушарах"
Вчера — 4 мая, понедельник / Москва
Вложения в недвижимость России за первую половину текущего года составили 169,5 миллиарда рублей.
Вчера — 4 мая, понедельник / Москва
Российский складской рынок продолжает расти: площадь складских помещений превысит 60 млн кв. м к концу 2026 года
Вчера — 4 мая, понедельник / Москва
"Компания "Галс-Девелопмент" получила одобрение на строительство делового центра "Дубининский"."
Вчера — 4 мая, понедельник / Москва
Инвестиционный фонд "Бумеранг Капитал" стал владельцем половины сети кофеен "Цех 85"
Вчера — 4 мая, понедельник / Краснодарский
В Анапе откроется первый отель с инновационными IT-сервисами
Вчера — 4 мая, понедельник / Москва
Планируется строительство торгового центра площадью свыше 6 тыс. кв. м в Краснопахорском районе Москвы.
Вчера — 4 мая, понедельник / Москва
Смена собственника у клубов «Дикая орхидея» и «Дефиле»
Вчера — 4 мая, понедельник / Вологодская
"Прекращена деятельность "наливаек" и магазинов электронных сигарет в Вологодской области"
Вчера — 4 мая, понедельник / Москва
"Exeed перемещает производство из Подмосковья на площадку АГР в Шушарах"
Вчера — 4 мая, понедельник / Москва
На юге Москвы запланировано строительство ТПУ "Кленовый бульвар" на площади 2 гектара.
30 апреля, четверг / Москва
"Бумеранг Капитал" увеличил свою долю в сети кафе-пекарен "Цех 85" до 50%
30 апреля, четверг / Ставропольский
В Кисловодске начался проект строительства инвестиционного отеля "Реликт"
30 апреля, четверг / Москва
Ресторан «Долина 5165» и магазин Sokolov теперь доступны посетителям ТРЦ Avenue Sever
30 апреля, четверг / Москва
"Новый флагманский магазин под названием «Флаувау» открыл свои двери на Мясницкой улице"
30 апреля, четверг / Москва
"Уровень вакансии на складах в Московском регионе достиг 5,4% из-за увеличения предложений по субаренде"