Главная
Купить торговое помещение в Москве и МО
Торговое помещение 623 м² в деловом квартале STONE Towers
Купить торговое помещение 623 м² в деловом квартале STONE Towers
Описание
Предложение на продажу № 62381.
ГОТОВЫЙ АРЕНДНЫЙ БИЗНЕС. Центральный офис продаж девелопера
.
. Арендатор - Крупный девелопер коммерческой и жилой недвижимости класса бизнес и премиум в Москве. С 2022 года уверенно удерживает лидерские позиции на офисном рынке
. столичного региона (рейтинг РБК). За 18 лет своей успешной деятельности компания вывела на рынок 28 уникальных проектов, каждый из которых стал воплощением высочайших стандартов качества, инноваций и внимания к деталям.
. Долгосрочный договор аренды.
. Свободный доступ. Два входа. Остекление по периметру.
. Окупаемость 11.5 лет.
.
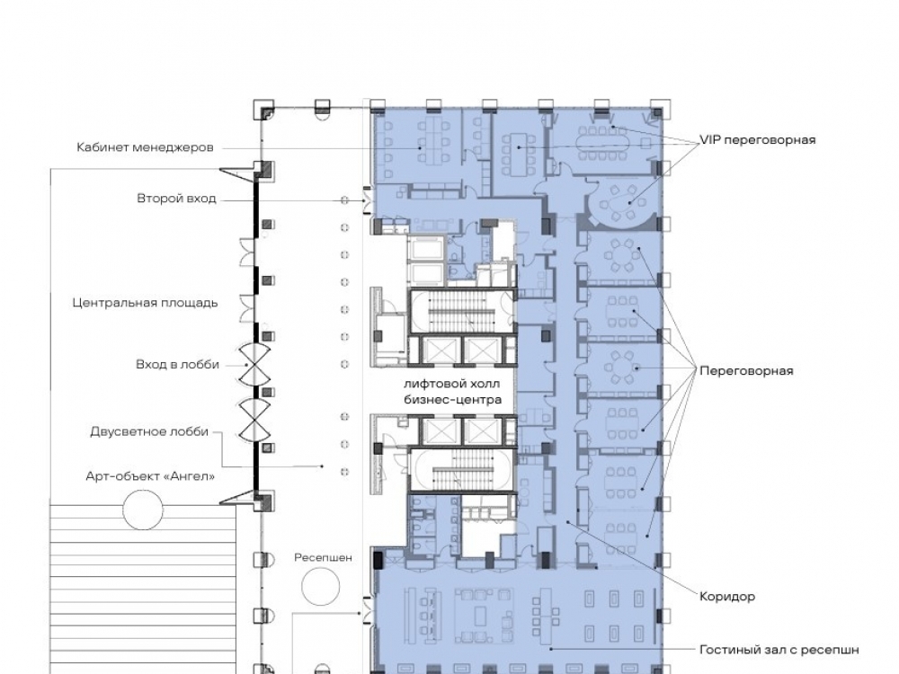
. Помещение. Представительский офис располагается на втором этаже башни С с прямым
. доступом из лобби. Правильная конфигурация, панорамное остекление и высокие потолки стали базой для проектирования представительского офиса: welcome-зона, гостиная с возможностью проведения мероприятий, 9 уникальных переговорных комнат, в том числе с функцией трансформации, зона сотрудников. Дизайн-проект выполнен лондонским бюро Kemelin Partners.
. При отделке были использованы дорогостоящие материалы: натуральный камень,
. керамика, металл и натуральное дерево
.
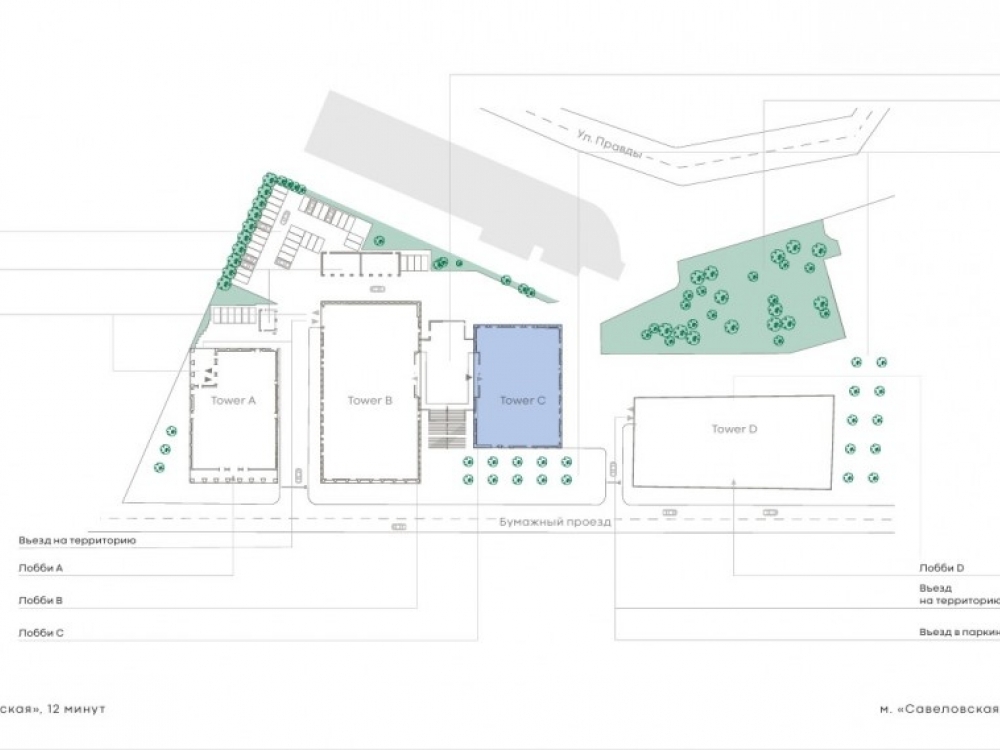
. Премиальный офисный квартал
. 4 офисных башни
. 2,15 га площадь территории
. 5 000 м площадь парка
. 106 000 м площадь квартала.
Торговая недвижимость, Street Retail. 1 линия домов. Витрины. Место для рекламы. Проходное и проездное место.
Арендный бизнес. Окупаемость c индексацией: 11 год и 3 меc. Ежегодная индексация: 4%. По первому году: 13 лет и 9 меc. Доходность c индексацией: 8.89%. Доходность c индексацией: 8.89%. По первому году: 7.27%. Присутствует арендатор: Центральный офис продаж девелопера. Срок договора: 15 лет.
Без комиссии.
ГОТОВЫЙ АРЕНДНЫЙ БИЗНЕС. Центральный офис продаж девелопера
.
. Арендатор - Крупный девелопер коммерческой и жилой недвижимости класса бизнес и премиум в Москве. С 2022 года уверенно удерживает лидерские позиции на офисном рынке
. столичного региона (рейтинг РБК). За 18 лет своей успешной деятельности компания вывела на рынок 28 уникальных проектов, каждый из которых стал воплощением высочайших стандартов качества, инноваций и внимания к деталям.
. Долгосрочный договор аренды.
. Свободный доступ. Два входа. Остекление по периметру.
. Окупаемость 11.5 лет.
.
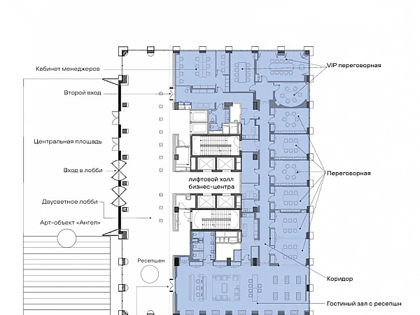
. Помещение. Представительский офис располагается на втором этаже башни С с прямым
. доступом из лобби. Правильная конфигурация, панорамное остекление и высокие потолки стали базой для проектирования представительского офиса: welcome-зона, гостиная с возможностью проведения мероприятий, 9 уникальных переговорных комнат, в том числе с функцией трансформации, зона сотрудников. Дизайн-проект выполнен лондонским бюро Kemelin Partners.
. При отделке были использованы дорогостоящие материалы: натуральный камень,
. керамика, металл и натуральное дерево
.
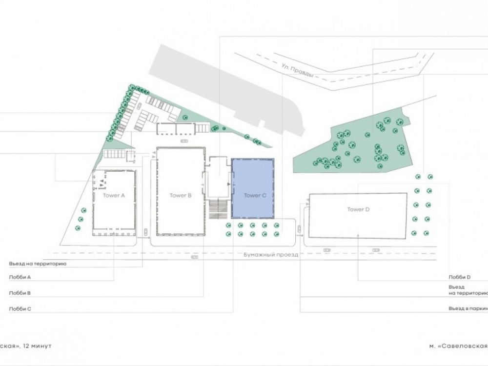
. Премиальный офисный квартал
. 4 офисных башни
. 2,15 га площадь территории
. 5 000 м площадь парка
. 106 000 м площадь квартала.
Торговая недвижимость, Street Retail. 1 линия домов. Витрины. Место для рекламы. Проходное и проездное место.
Арендный бизнес. Окупаемость c индексацией: 11 год и 3 меc. Ежегодная индексация: 4%. По первому году: 13 лет и 9 меc. Доходность c индексацией: 8.89%. Доходность c индексацией: 8.89%. По первому году: 7.27%. Присутствует арендатор: Центральный офис продаж девелопера. Срок договора: 15 лет.
Без комиссии.
Расположение
г Москва, проезд Бумажный, д 19 стр 4
Савеловская
—
5 мин
Савёловская
—
5 мин
Савёловская
—
5 мин
Технические характеристики
Параметры
Статус владельца объявления
агентство
Свободные помещения в Деловой квартал STONE Towers
Новость дня
Расширение возможностей для B2B-клиентов: Avito вводит новые услуги для строительства складов
На платформе Авито теперь доступна категория "Коммерческое строительство" в сегменте услуг, предлагающая широкий выбор специализированных работ и возведение объектов "под ключ" для бизнеса, что упрощает поиск подрядчиков и субподрядчиков для коммерческих проектов.
Все новости
Сегодня — 4 мая, понедельник / Москва
Вложения в недвижимость России за первую половину текущего года составили 169,5 миллиарда рублей.
Сегодня — 4 мая, понедельник / Москва
Российский складской рынок продолжает расти: площадь складских помещений превысит 60 млн кв. м к концу 2026 года
Сегодня — 4 мая, понедельник / Москва
"Компания "Галс-Девелопмент" получила одобрение на строительство делового центра "Дубининский"."
Сегодня — 4 мая, понедельник / Москва
Инвестиционный фонд "Бумеранг Капитал" стал владельцем половины сети кофеен "Цех 85"
Сегодня — 4 мая, понедельник / Краснодарский
В Анапе откроется первый отель с инновационными IT-сервисами
Сегодня — 4 мая, понедельник / Москва
Планируется строительство торгового центра площадью свыше 6 тыс. кв. м в Краснопахорском районе Москвы.
Сегодня — 4 мая, понедельник / Москва
Смена собственника у клубов «Дикая орхидея» и «Дефиле»
Сегодня — 4 мая, понедельник / Вологодская
"Прекращена деятельность "наливаек" и магазинов электронных сигарет в Вологодской области"
Сегодня — 4 мая, понедельник / Москва
"Exeed перемещает производство из Подмосковья на площадку АГР в Шушарах"
Сегодня — 4 мая, понедельник / Москва
На юге Москвы запланировано строительство ТПУ "Кленовый бульвар" на площади 2 гектара.
30 апреля, четверг / Москва
"Бумеранг Капитал" увеличил свою долю в сети кафе-пекарен "Цех 85" до 50%
30 апреля, четверг / Ставропольский
В Кисловодске начался проект строительства инвестиционного отеля "Реликт"
30 апреля, четверг / Москва
Ресторан «Долина 5165» и магазин Sokolov теперь доступны посетителям ТРЦ Avenue Sever
30 апреля, четверг / Москва
"Новый флагманский магазин под названием «Флаувау» открыл свои двери на Мясницкой улице"
30 апреля, четверг / Москва
"Уровень вакансии на складах в Московском регионе достиг 5,4% из-за увеличения предложений по субаренде"
30 апреля, четверг / Москва
"Прогнозируется незначительный прирост числа туристов в первом квартале 2026 года - всего 2,8%"
30 апреля, четверг / Москва
Компания "Ориентир" планирует вложить до 150 млрд рублей в расширение бизнеса и развитие новых секторов.
30 апреля, четверг / Москва
"Завершено строительство наземной парковки на 400 автомобильных мест в парке «Ривер Парк Коломенское»"
30 апреля, четверг / Москва
Скорось открытия новых магазинов «Лэтуаль» снизится - 150 точек закроются к 2026 году.
30 апреля, четверг / Москва
Смайл-бар сети "Белая точка" теперь доступен посетителям ТЦ "Левел Причальный"