Описание
Номер объекта: 550826. Аренда торгового помещения в городе Люберцы, ул. Шоссейная 42А, новый ЖК включает три 17-ти этажных дома, которые объединены двухъярусным стилобатом, 400 метров от станции метро Котельники.
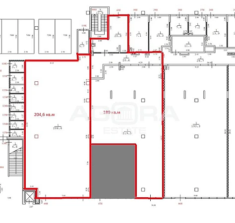
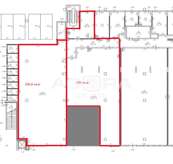
Площадь 180 кв.м, 1 этаж стилобата, отдельный вход с фасада и запасной - со двора. Густонаселенный жилой массив высоко-этажной застройки. Зальная планировка, высокие потолки, витрины по фасаду, мощность 40 кВт, все городские коммуникации, реклама на фасаде. Рядом сложившееся торговое окружение, сетевые арендаторы, пешеходный и автомобильный трафик. Помещение имеет отличный торговый потенциал.Объект № 550826
Площадь 180 кв.м, 1 этаж стилобата, отдельный вход с фасада и запасной - со двора. Густонаселенный жилой массив высоко-этажной застройки. Зальная планировка, высокие потолки, витрины по фасаду, мощность 40 кВт, все городские коммуникации, реклама на фасаде. Рядом сложившееся торговое окружение, сетевые арендаторы, пешеходный и автомобильный трафик. Помещение имеет отличный торговый потенциал.Объект № 550826
Расположение
Московская обл, г Люберцы, ул Шоссейная, д 42А
Котельники
—
5 мин
Жулебино
—
16 мин
Люберцы
—
25 мин
Технические характеристики
Параметры
Статус владельца объявления
агентство
Класс
b+
Параметры помещения
Высота потолков
—
Новость дня
Все новости
Вчера — 8 мая, пятница / Москва
Усадьбу XVIII–XIX веков в центре Москвы выставили на аукцион «Дом.РФ»
Вчера — 8 мая, пятница / Москва
Бизнес-центр площадью 43,3 тыс. кв. м открыли в окрестностях Филевского парка.
Вчера — 8 мая, пятница / Крым
Гостиница на полуострове Крым выставлена на продажу по цене 117,7 миллиона рублей.
Вчера — 8 мая, пятница / Москва
В Нагатинской пойме откроется фитнес-клуб в гостиничном комплексе
Вчера — 8 мая, пятница / Москва
"Сменился владелец Торгового центра «Гудзон»"
Вчера — 8 мая, пятница / Москва
"Открытие обновленного футбольного комплекса в СберСити"
Вчера — 8 мая, пятница / Нижегородская
В Нижнем Новгороде будет восстановлен исторический здание для коммерческой аренды.
Вчера — 8 мая, пятница / Архангельская
Офисное здание в центре Архангельска выставлено на торги площадкой «Дом.РФ»
Вчера — 8 мая, пятница / Москва
Группа "Гранд НН" из Нижнего Новгорода продает пять компаний за 3,3 миллиарда рублей.
Вчера — 8 мая, пятница / Москва
Москва увеличила площадь жилой недвижимости на более чем 250 тыс. кв. м с начала года по Межевому плану территории.
7 мая, четверг / Москва
"Маркетплейсы занимают всего 9 % рынка онлайн-продаж продуктов питания"
7 мая, четверг / Москва
"ТРК «Зеленопарк» в Подмосковье выставлен на продажу компанией «Сбербанк капитал»"
7 мая, четверг / Москва
X5 Group планирует приобрести часть акций Zotman Pizza.
7 мая, четверг / Москва
"Уровень вакантности в офисном сегменте рынка Москвы достиг 5,3%"
7 мая, четверг / Москва
"В Московском регионе спрос на склады вырос на 70% благодаря онлайн-торговле и логистике"
7 мая, четверг / Москва
"Снижение объема розничных продаж на 0,5% за первый квартал"
7 мая, четверг / Москва
Планируется строительство девятиэтажного делового центра площадью 16 тыс. кв. м в Щукино.
7 мая, четверг / Москва
Развенчивание мифов: Пять исторических домов в районе Арбата пройдут капитальный ремонт.
7 мая, четверг / Москва
Продажа ТЦ "Летний сад" в Москве группой "Эталон" привела к потере в 2,2 млрд рублей.
7 мая, четверг / Москва
Предприятие "Свобода" под угрозой банкротства из-за задолженности в 125 миллионов рублей