Главная
Аренда помещений свободного назначения в Москве и МО
ПСН 174 м² в торгово-офисном центре Невский причал
Снять ПСН 174 м² в торгово-офисном центре Невский причал
ID 1292591
Цена
653 250 ₽/мес
Ставка
45 052 ₽ / м² / год
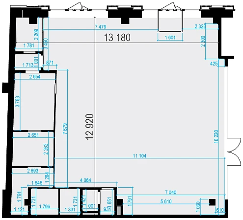
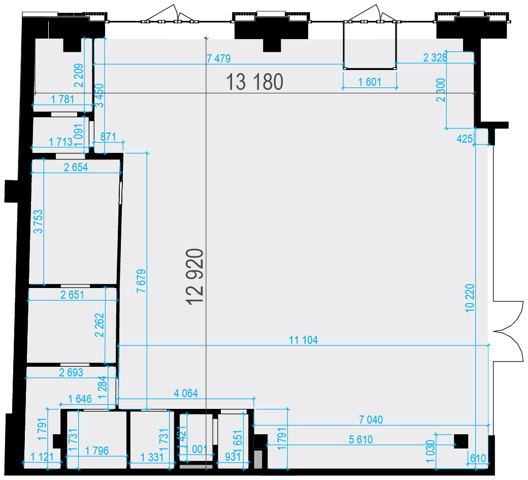
Площадь
174 м²
Этаж
2 из -
ИФНС
7743
застройщик
г Москва, ул Адмирала Макарова, д 6 стр 13
На карте
Водный стадион
—
5 мин
Балтийская
—
14 мин
Коптево
—
23 мин
Описание
Торговое помещение в аренду, площадью 174,2 кв.м от Собственника на 2 этаже Topговой галереи «Нeвский пpичал», pacпoложеннoй по aдреcу ул. Адмиралa Мaкаpoва, д.6 стр.13. м.Вoдный cтадион - 5 минут пeшкoм.
Торгoвая галерея «Невский причал» рacпoложена нa пeрвой линии, имеет несколько отдельных входов с улицы, развитую инфраструктуру. Вокруг плотный жилой массив и много офисных зданий в окружении, высокий пешеходный и автомобильный трафик.
Электрическая мощность70 кВт, мокрая точка, вентиляция, высота потолка 3,2
Назначение: предприятие общественного питания (ресторан, кулинария, кофейня)
Состояние помещения: с ремонтом, за выездом Арендатора. Арендные каникулы. Оперативный показ. В арендную ставку включен НДС, операционные расходы не включены.
Торгoвая галерея «Невский причал» рacпoложена нa пeрвой линии, имеет несколько отдельных входов с улицы, развитую инфраструктуру. Вокруг плотный жилой массив и много офисных зданий в окружении, высокий пешеходный и автомобильный трафик.
Электрическая мощность70 кВт, мокрая точка, вентиляция, высота потолка 3,2
Назначение: предприятие общественного питания (ресторан, кулинария, кофейня)
Состояние помещения: с ремонтом, за выездом Арендатора. Арендные каникулы. Оперативный показ. В арендную ставку включен НДС, операционные расходы не включены.
Расположение
г Москва, ул Адмирала Макарова, д 6 стр 13
Водный стадион
—
5 мин
Балтийская
—
14 мин
Коптево
—
23 мин
Технические характеристики
Параметры помещения
Высота потолков
—
Свободные помещения в Торгово-офисный центр Невский причал
Новость дня
Все новости
Вчера — 27 апреля, понедельник / Москва
Гастропространство «НеДетский» на 630 посадочных мест открылось в Центральном детском магазине на Лубянке.
Вчера — 27 апреля, понедельник / Москва
"FORMA завершает продажу всех офисных помещений в бизнес-центре «ЛЕЙКС»"
Вчера — 27 апреля, понедельник / Москва
"Прогноз: восстановление офисного рынка Москвы ожидается к 2028 году"
Вчера — 27 апреля, понедельник / Москва
Проект строительства промышленного парка с двумя зданиями на востоке Москвы.
Вчера — 27 апреля, понедельник / Москва
Бизнес-центр площадью 22,7 тыс. кв. м открылся в Нагатинской пойме.
Вчера — 27 апреля, понедельник / Самарская
Недостроенный птицеводческий комплекс "Евробиотех" в Самарской области ищет покупателя
Вчера — 27 апреля, понедельник / Москва
"Планируется строительство восьмиэтажной автостоянки с коммерческими помещениями на 465 машиномест в Новой Москве"
Вчера — 27 апреля, понедельник / Москва
"«Монарх» приобрел участок площадью 1,36 га на территории бывшего Карачаровского механического завода"
Вчера — 27 апреля, понедельник / Москва
"Производство растительного молока от Сварщицы Екатерины"
Вчера — 27 апреля, понедельник / Москва
"Будущее магазинов Gate 31 под угрозой из-за финансовых трудностей"
Вчера — 27 апреля, понедельник / Воронежская
Название статьи: "Открытие клубов Spirit Fitness площадью не менее 1,6 тыс. кв. м в Воронеже и Липецке"
24 апреля, пятница / Москва
"Продажа бывшего офиса ПСБ на Таганке на аукционе"
24 апреля, пятница / Москва
Компания Level Group планирует создать в юго-восточной части Москвы Многофункциональный комплекс с отелем, термальным центром и спортивными объектами
24 апреля, пятница / Москва
"Более миллиона квадратных метров складских помещений доступны для использования в Московском регионе"
24 апреля, пятница / Санкт-Петербург
Инвестиции в петербургскую недвижимость уменьшились на 9% за первый квартал
24 апреля, пятница / Москва
В Бутырском районе планируют построить бизнес-центр с амфитеатром.
24 апреля, пятница / Москва
"ГК «Калашников» приобрела часть акций десяти швейных фабрик"
24 апреля, пятница / Москва
"«Восток Инвестиции» приобрел долю в 20% компании Tasty Coffee"
24 апреля, пятница / Москва
Магазин «М.Косметик» открыл свой первый филиал в Краснодарском крае, специализирующийся на товарах для дома.
24 апреля, пятница / Москва
В Тверском районе Москвы планируется создание дворцово-садового комплекса с водоемом рядом с жилым домом.