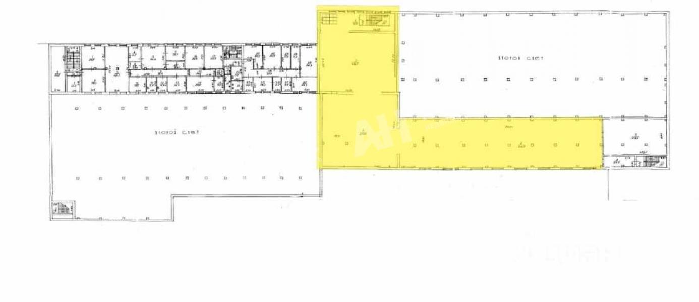
Снять склад 1386 м²
ID 1296106
Цена
1 847 538 ₽/мес
Ставка
15 996 ₽ / м² / год
Площадь
1386 м²
Класс
не указан
Этаж
1 из -
ИФНС
7720
агентство недвижимости
г Москва, ш Энтузиастов, д 31
На карте
Шоссе Энтузиастов
—
2 мин
Шоссе Энтузиастов
—
2 мин
Соколиная Гора
—
16 мин
Описание
Лот №991710 Аренда помещения 1386 м2 в здании вблизи м.Шоссе Энтузиастов (2 мин пешком). Уникальная локация. Вблизи ТТК. Отдельный вход с 1го этажа и подъезд для фур. Парковка. Зальная планировка. Все коммуникации. Отопление. Вода и с/у. Потолок 5м. Есть подъемник на 2т. Ровный бeтoнный пол с возможностью высокой нагрузки. от 50 кВт. Шаг колонн - 6м. Въездные ворота - 3х3. Помещение подходит для широкого спектра применений, включая такие профили: Склад, Фулфилмент, Склад для маркетплейсов, Хранение, Переупаковка, Комплектация, Фасовка, Производство, Логистический терминал, Распределительный центр, Склад для грузов, Кросс-докинг, Сборка изделий, комплектующих, Дооснащение продукции, Монтаж, демонтаж оборудования, Тестирование и проверка работоспособности техники, Ремонт и сервисное обслуживание на складе, Перемаркировка и ретейлинг упаковки и другие.
Стоимость аренды: 15996 руб/м2/год (1847538 руб в месяц) В цену включено: эксплуатационные расходы, НДС 22%. В цену не включено: затраты на электричество, коммунальные расходы, уборка.
Чтобы получить ПОДРОБНУЮ ПРЕЗЕНТАЦИЮ С ПЛАНИРОВКОЙ И ФОТОГРАФИЯМИ на этот объект, звоните. Высылаем в течение 15 минут по запросу!
☎ Конт. лицо: Алексей Владимирович, доб. 217, ЛОТ №991710
Стоимость аренды: 15996 руб/м2/год (1847538 руб в месяц) В цену включено: эксплуатационные расходы, НДС 22%. В цену не включено: затраты на электричество, коммунальные расходы, уборка.
Чтобы получить ПОДРОБНУЮ ПРЕЗЕНТАЦИЮ С ПЛАНИРОВКОЙ И ФОТОГРАФИЯМИ на этот объект, звоните. Высылаем в течение 15 минут по запросу!
☎ Конт. лицо: Алексей Владимирович, доб. 217, ЛОТ №991710
Расположение
г Москва, ш Энтузиастов, д 31
Шоссе Энтузиастов
—
2 мин
Шоссе Энтузиастов
—
2 мин
Соколиная Гора
—
16 мин
Технические характеристики
Новость дня
Все новости
Сегодня — 21 апреля, вторник / Москва
Сокращение объема инвестиций в недвижимость Московского региона за первый квартал на 20%
Сегодня — 21 апреля, вторник / Москва
"Компания «Магнит» начала производство замороженных полуфабрикатов на основе теста"
Сегодня — 21 апреля, вторник / Москва
"Открытие производства компрессионного трикотажа в парке "Руднево" в рамках индустриализации".
Сегодня — 21 апреля, вторник / Москва
Бизнес-центр "Кубик" в Мякинино приобретен компанией "ВИМ Сбережения"
Сегодня — 21 апреля, вторник / Москва
Parametr оборудован корпусом формата "флекс бокс" для промпарка Кувекино.
Сегодня — 21 апреля, вторник / Москва
Объем новых торговых помещений в Москве уменьшился до 9,5 тыс. квадратных метров за первый квартал
Сегодня — 21 апреля, вторник / Красноярский
"Ozon открыл новый склад в Красноярском крае"
Вчера — 20 апреля, понедельник / Санкт-Петербург
«"Охта Групп" внесла изменения в дизайн лофт-квартала "Скороход"»
Вчера — 20 апреля, понедельник / Санкт-Петербург
"Реставрация исторической трансформаторной подстанции в Петербурге завершена"
Вчера — 20 апреля, понедельник / Москва
Собственость на российскую сеть кофеен Cofix может быть передана новому владельцу
Вчера — 20 апреля, понедельник / Москва
UPECO приобрела аренду площади в размере 966 квадратных метров в бизнес-парке "Сколково Парк".
Вчера — 20 апреля, понедельник / Москва
"Реконструкция ТРЦ «Европа» стартует в Калининграде"
Вчера — 20 апреля, понедельник / Москва
"Площадь ОЭЗ «Технополис Москва» увеличилась на 38 гектаров"
Вчера — 20 апреля, понедельник / Москва
"Строительство крытого футбольного манежа в Восточном Административном Округе обойдется в 220 миллионов рублей"
Вчера — 20 апреля, понедельник / Москва
В Краснопахорском районе откроется торговая и бытовая зона площадью свыше 800 квадратных метров.
Вчера — 20 апреля, понедельник / Москва
ГК ФСК запустила новый завод по производству строительных материалов в Зеленограде.
Вчера — 20 апреля, понедельник / Санкт-Петербург
Логистическая компания арендовала офисное помещение площадью 730 квадратных метров в бизнес-центре Leader Tower
Вчера — 20 апреля, понедельник / Санкт-Петербург
"Подрядчик выбран для восстановления XIX века почтовой станции в Ленинградской области"
17 апреля, пятница / Москва
"Компания, связанная с Олегом Дерипаской, отозвала свое управление гостиничным комплексом «Имеретинский» в Сириусе"
17 апреля, пятница / Москва
"Выручка компании X5 Group увеличилась на 11,3% за первый квартал"