Снять торговое помещение 106 м² в ЖК Скандинавия
Описание
Аренда от застройщика А101!
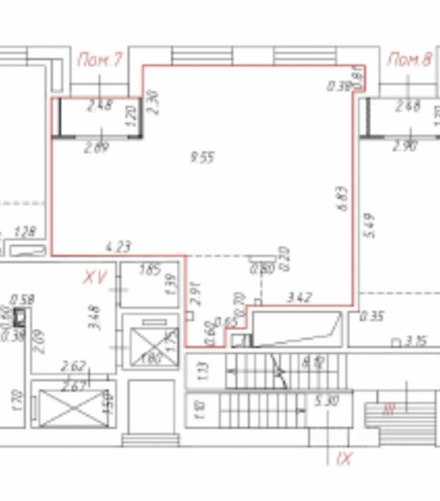
Сдается помещение площадью 106.60. на 1-м этаже ЖК «Скандинавия». Трафик 874 человек в день.
Технические характеристики помещения:
- Помещение свободного назначения с отдельным входом и окнами с видом на улицу;
- С отделкой;
- Высокий потолок 5.75 м;
- Свободная планировка;
- Помещение обеспечено коммуникациями: электричество, отопление, водоснабжение, канализация;
- Выделенная электрическая мощность — 32 кВт.
Помещение не сдается в аренду под ПВЗ. Арендные каникулы предоставляются по запросу.
Жилой район «Скандинавия» строится на юго-западе Москвы, граничит с Бутовским лесопарком и отличается высокой транспортной доступностью. До станции метро «Потапово» всего 8 минут пешком, до «Новомосковской» —3 минуты на транспорте; до Калужского шоссе можно доехать за 5 минут, а до МКАД — за 10.
Узнаваемый и атмосферный жилой район с активным населением и развитой коммерческой инфраструктурой реализуется в соответствии с концепцией «15-минутный город». Здесь уже работают школы и детские сады, новые образовательные центры (школа и детский сад),
Почти треть территории занимает комплексное благоустройство: парки и скверы (около 100 га), площадь Туве Янссон с арт-объектами, 3 крупных ручья, торгово-пешеходный променад (2 км), сеть прогулочных и велодорожек (более 10 км), спортивные и детские площадки, места для отдыха.
Всё это обеспечивает высокий пешеходный трафик и востребованность коммерческих объектов. Любой объект инфраструктуры «Скандинавии» находится в шаговой доступности. Многие жители не покидают локацию в течение дня, пользуясь услугами и делая покупки.
Прогнозируемая численность населения — 70 000 человек.
Всю конкурентную аналитику относительно вашего бизнеса, при приобретении помещения, можно запросить у менеджера А101.
Сдается помещение площадью 106.60. на 1-м этаже ЖК «Скандинавия». Трафик 874 человек в день.
Технические характеристики помещения:
- Помещение свободного назначения с отдельным входом и окнами с видом на улицу;
- С отделкой;
- Высокий потолок 5.75 м;
- Свободная планировка;
- Помещение обеспечено коммуникациями: электричество, отопление, водоснабжение, канализация;
- Выделенная электрическая мощность — 32 кВт.
Помещение не сдается в аренду под ПВЗ. Арендные каникулы предоставляются по запросу.
Жилой район «Скандинавия» строится на юго-западе Москвы, граничит с Бутовским лесопарком и отличается высокой транспортной доступностью. До станции метро «Потапово» всего 8 минут пешком, до «Новомосковской» —3 минуты на транспорте; до Калужского шоссе можно доехать за 5 минут, а до МКАД — за 10.
Узнаваемый и атмосферный жилой район с активным населением и развитой коммерческой инфраструктурой реализуется в соответствии с концепцией «15-минутный город». Здесь уже работают школы и детские сады, новые образовательные центры (школа и детский сад),
Почти треть территории занимает комплексное благоустройство: парки и скверы (около 100 га), площадь Туве Янссон с арт-объектами, 3 крупных ручья, торгово-пешеходный променад (2 км), сеть прогулочных и велодорожек (более 10 км), спортивные и детские площадки, места для отдыха.
Всё это обеспечивает высокий пешеходный трафик и востребованность коммерческих объектов. Любой объект инфраструктуры «Скандинавии» находится в шаговой доступности. Многие жители не покидают локацию в течение дня, пользуясь услугами и делая покупки.
Прогнозируемая численность населения — 70 000 человек.
Всю конкурентную аналитику относительно вашего бизнеса, при приобретении помещения, можно запросить у менеджера А101.
Расположение
г Москва, Филимонковский р-н, г Московский, мкр 1-й, к 35, кв 1
Технические характеристики
Свободные помещения в ЖК Скандинавия
Новость дня
Все новости
Вчера — 17 апреля, пятница / Москва
"Компания, связанная с Олегом Дерипаской, отозвала свое управление гостиничным комплексом «Имеретинский» в Сириусе"
Вчера — 17 апреля, пятница / Москва
"Выручка компании X5 Group увеличилась на 11,3% за первый квартал"
Вчера — 17 апреля, пятница / Москва
"Компания «Велесстрой» приобрела бизнес-центр «Лесная 6» возле Белорусского вокзала"
Вчера — 17 апреля, пятница / Москва
"Строительная компания «Среда» запланировала возведение офисных помещений площадью 25 тыс. кв. м на территории Южного округа Москвы"
Вчера — 17 апреля, пятница / Москва
Компания ТСТН расширяет свою деятельность с открытием офиса продаж и склада в Коломне.
Вчера — 17 апреля, пятница / Москва
Прогнозируется увеличение площади легкой промышленности в Московском регионе до 3,4 миллионов квадратных метров к 2028 году.
Вчера — 17 апреля, пятница / Москва
Цены на жилье в центре Москвы достигли 1,45 млн рублей за квадратный метр - исторический максимум
Вчера — 17 апреля, пятница / Москва
Покупка бизнес-центра «Филипповский» в Москве совершена ЗПИФом «Байкал рентный 2»
Вчера — 17 апреля, пятница / Москва
Облик нового Центрального дома кино в Москве окончательно утвержден.
Вчера — 17 апреля, пятница / Москва
"Продаётся земельный участок рядом со Сколково для строительства жилого комплекса"
16 апреля, четверг / Санкт-Петербург
Торговый центр Welcome в Выборге выставлен на аукцион с начальной ценой 437,7 млн рублей.
16 апреля, четверг / Москва
Часть недвижимости у Садового кольца выставлена на аукцион с начальной ценой 1,89 млрд рублей.
16 апреля, четверг / Москва
"Новый район Покровское-Стрешнево будет оборудован офисами, имеющими собственный выход к метро"
16 апреля, четверг / Санкт-Петербург
"Новое обязательство восстановить старое здание на Заставской улице в Петербурге"
16 апреля, четверг / Москва
Группа AVA выставляет на продажу свои активы в Москве и Подмосковье
16 апреля, четверг / Москва
Торговый центр "Щёлковский" удвоил свою площадь после расширения от "Love Republic"
16 апреля, четверг / Москва
"Открытие зоомагазина с груминг-салоном 'Четыре Лапы' в ТЦ 'Левел Причальный'"
16 апреля, четверг / Санкт-Петербург
Как предприятия общественного обслуживания способствуют привлекательности жилых комплексов премиум-класса в Санкт-Петербурге
16 апреля, четверг / Москва
Рост стоимости строительства офисов премиум-класса в Москве составил 15% за год.
16 апреля, четверг / Москва
Рост объема сделок с офисными помещениями в новых проектах Дубая в четыре с половиной раза за год