Описание
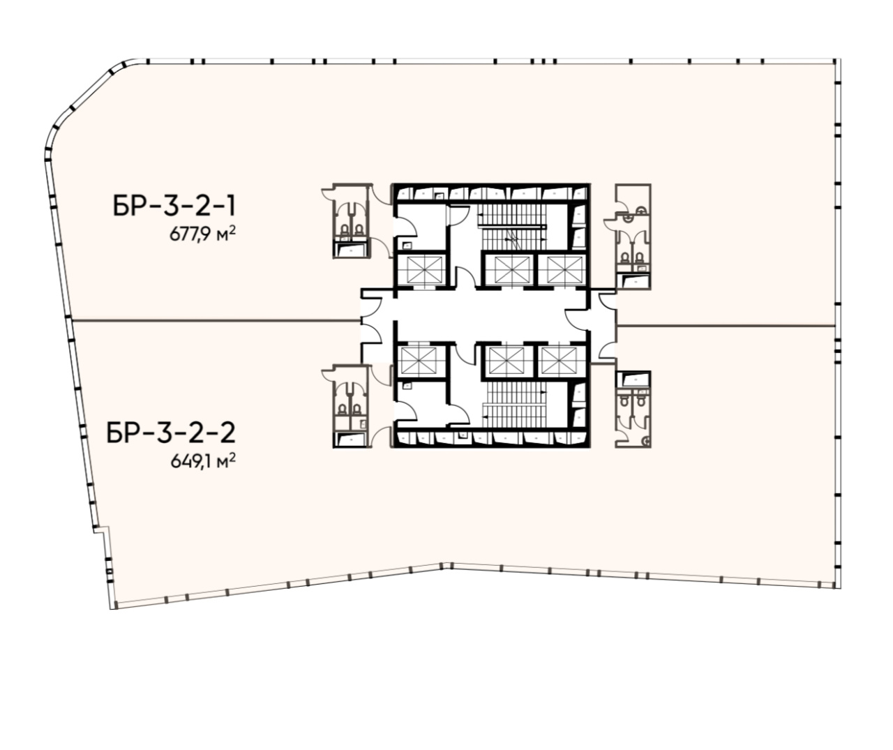
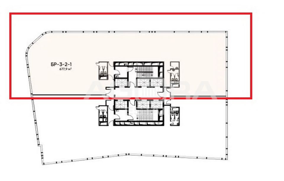
Номер объекта: 550071. Продажа офиса в новом БЦ класса А, в 5 минутах пешком от м.Тульская. Площадь офиса 677,9 м2. Офис занимает половину 3-го этажа новой Башни Рябов на территории Товарищества Рябовской мануфактуры. Планировка свободная. Высота потолков 3,7 м. Панорамное остекление обеспечивает высокий уровень освещенности офиса. Наличие мокрой зоны с выведенными коммуникациями для обустройства кухни и с/у.
Офис подходит для размещения представительского офиса.
Башня Рябов – 13-ти этажное здание с современной инженерией, центральными коммуникациями, высокоскоростными лифтами. Наземная бесплатная парковка на 300 машиномест. Общая площадь бизнес-центра Башня Рябов 23 000 м2, арендопригодная площадь - 16 000 м2. Есть 3-х уровневый подземный паркинг на 150 м/м.
Деловой квартал Товарищество Рябовской Мануфактуры - это деловой и творческий кластер общей площадью более 55 000 м2, в состав которого входят 16 зданий переменной этажности. Среди арендаторов делового квартала – офисы, кафе и рестораны, шоу-румы одежды и мебели, мастерские и сервисный центр, салоны красоты и тату-салоны, интернет-магазины, логистическая компания, отель и т.д.
В ближайшем окружении находятся новые ЖК премиум и бизнес-класса, такие как Deco Residence, Данилов дом, Павелецкая Сити, ЖК Зиларт, ЖК Донской Олимп. Университеты, расположенные рядом - РЭУ им. Плеханова, Школа Дизайна, Институт экономики и бизнеса.
БЦ Башня Рябов вводится в эксплуатацию - 4 кв. 2026 г.
Объект № 550071
Офис подходит для размещения представительского офиса.
Башня Рябов – 13-ти этажное здание с современной инженерией, центральными коммуникациями, высокоскоростными лифтами. Наземная бесплатная парковка на 300 машиномест. Общая площадь бизнес-центра Башня Рябов 23 000 м2, арендопригодная площадь - 16 000 м2. Есть 3-х уровневый подземный паркинг на 150 м/м.
Деловой квартал Товарищество Рябовской Мануфактуры - это деловой и творческий кластер общей площадью более 55 000 м2, в состав которого входят 16 зданий переменной этажности. Среди арендаторов делового квартала – офисы, кафе и рестораны, шоу-румы одежды и мебели, мастерские и сервисный центр, салоны красоты и тату-салоны, интернет-магазины, логистическая компания, отель и т.д.
В ближайшем окружении находятся новые ЖК премиум и бизнес-класса, такие как Deco Residence, Данилов дом, Павелецкая Сити, ЖК Зиларт, ЖК Донской Олимп. Университеты, расположенные рядом - РЭУ им. Плеханова, Школа Дизайна, Институт экономики и бизнеса.
БЦ Башня Рябов вводится в эксплуатацию - 4 кв. 2026 г.
Объект № 550071
Расположение
г Москва, пер Холодильный, д 3 к 1 стр 1
Тульская
—
3 мин
Технические характеристики
Параметры
Охрана
есть
Инженерия
кондиционер
Статус владельца объявления
агентство
Класс
a
Параметры помещения
Высота потолков
—
Новость дня
Все новости
8 мая, пятница / Москва
Усадьбу XVIII–XIX веков в центре Москвы выставили на аукцион «Дом.РФ»
8 мая, пятница / Москва
Бизнес-центр площадью 43,3 тыс. кв. м открыли в окрестностях Филевского парка.
8 мая, пятница / Крым
Гостиница на полуострове Крым выставлена на продажу по цене 117,7 миллиона рублей.
8 мая, пятница / Москва
В Нагатинской пойме откроется фитнес-клуб в гостиничном комплексе
8 мая, пятница / Москва
"Сменился владелец Торгового центра «Гудзон»"
8 мая, пятница / Москва
"Открытие обновленного футбольного комплекса в СберСити"
8 мая, пятница / Нижегородская
В Нижнем Новгороде будет восстановлен исторический здание для коммерческой аренды.
8 мая, пятница / Архангельская
Офисное здание в центре Архангельска выставлено на торги площадкой «Дом.РФ»
8 мая, пятница / Москва
Группа "Гранд НН" из Нижнего Новгорода продает пять компаний за 3,3 миллиарда рублей.
8 мая, пятница / Москва
Москва увеличила площадь жилой недвижимости на более чем 250 тыс. кв. м с начала года по Межевому плану территории.
7 мая, четверг / Москва
"Маркетплейсы занимают всего 9 % рынка онлайн-продаж продуктов питания"
7 мая, четверг / Москва
"ТРК «Зеленопарк» в Подмосковье выставлен на продажу компанией «Сбербанк капитал»"
7 мая, четверг / Москва
X5 Group планирует приобрести часть акций Zotman Pizza.
7 мая, четверг / Москва
"Уровень вакантности в офисном сегменте рынка Москвы достиг 5,3%"
7 мая, четверг / Москва
"В Московском регионе спрос на склады вырос на 70% благодаря онлайн-торговле и логистике"
7 мая, четверг / Москва
"Снижение объема розничных продаж на 0,5% за первый квартал"
7 мая, четверг / Москва
Планируется строительство девятиэтажного делового центра площадью 16 тыс. кв. м в Щукино.
7 мая, четверг / Москва
Развенчивание мифов: Пять исторических домов в районе Арбата пройдут капитальный ремонт.
7 мая, четверг / Москва
Продажа ТЦ "Летний сад" в Москве группой "Эталон" привела к потере в 2,2 млрд рублей.
7 мая, четверг / Москва
Предприятие "Свобода" под угрозой банкротства из-за задолженности в 125 миллионов рублей