Снять офис 946 м²
ID 1816926
Цена
2 446 672 ₽/мес
Ставка
31 036 ₽ / м² / год
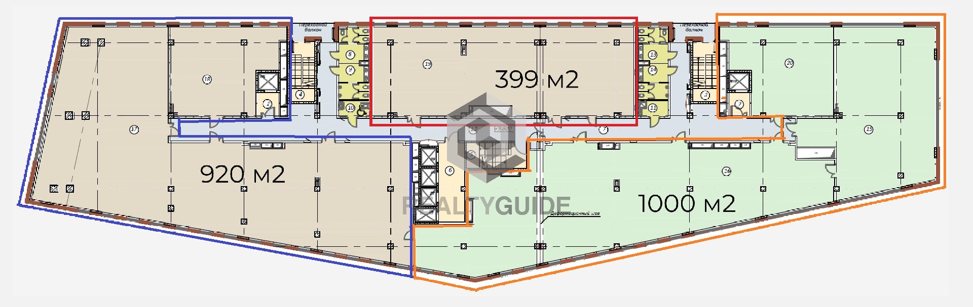
Площадь
946 м²
Класс
не указан
Этаж
1 из -
ИФНС
7719
агентство недвижимости
г Москва, ул Мироновская, д 33
На карте
Измайлово
—
7 мин
Партизанская
—
12 мин
Семёновская
—
14 мин
Описание
Лот №1076883 Сдается офисно-складское помещение 1 этаж, 946 м2, кабинетная планировка, туалеты, приточно-
вытяжная вентиляция, кондиционирование. 2 входа, второй для разгрузки/погрузки.
Максимальная мощность: 90 кВт. Высота потолка от 3 до 5 метров.
Налоговая: 19.
Система пожарной сигнализации.
Круглосуточная охрана, видеонаблюдение, доступ 24/7, пропускной режим.
Въезд на территорию бесплатный. Возможен долгосрочный договор.
Стоимость аренды: 31036 руб/м2/год (2446672 руб в месяц) В цену включено: эксплуатационные расходы, НДС 22%. В цену не включено: затраты на электричество, коммунальные расходы, уборка.
Чтобы получить ПОДРОБНУЮ ПРЕЗЕНТАЦИЮ С ПЛАНИРОВКОЙ И ФОТОГРАФИЯМИ на этот объект, звоните. Высылаем в течение 15 минут по запросу!
☎ Конт. лицо: Михаил Вячеславович, доб. 216, ЛОТ №1076883
вытяжная вентиляция, кондиционирование. 2 входа, второй для разгрузки/погрузки.
Максимальная мощность: 90 кВт. Высота потолка от 3 до 5 метров.
Налоговая: 19.
Система пожарной сигнализации.
Круглосуточная охрана, видеонаблюдение, доступ 24/7, пропускной режим.
Въезд на территорию бесплатный. Возможен долгосрочный договор.
Стоимость аренды: 31036 руб/м2/год (2446672 руб в месяц) В цену включено: эксплуатационные расходы, НДС 22%. В цену не включено: затраты на электричество, коммунальные расходы, уборка.
Чтобы получить ПОДРОБНУЮ ПРЕЗЕНТАЦИЮ С ПЛАНИРОВКОЙ И ФОТОГРАФИЯМИ на этот объект, звоните. Высылаем в течение 15 минут по запросу!
☎ Конт. лицо: Михаил Вячеславович, доб. 216, ЛОТ №1076883
Расположение
г Москва, ул Мироновская, д 33
Измайлово
—
7 мин
Партизанская
—
12 мин
Семёновская
—
14 мин
Технические характеристики
Новость дня
Все новости
Сегодня — 15 апреля, среда / Москва
"Сеть садовых центров «Лемана ПРО» расширяется с открытием нового филиала в Жуковском"
Сегодня — 15 апреля, среда / Москва
"Ozon запустил новый логистический центр в Ватутинках"
Сегодня — 15 апреля, среда / Москва
"Открытие супермаркета Eurospar в торговом центре «АФИ Галерея» на станции метро Белорусская"
Сегодня — 15 апреля, среда / Москва
"Падение спроса на коммерческую недвижимость в новостройках Москвы почти на треть"
Сегодня — 15 апреля, среда / Москва
Новый филиал Сбербанка открылся в Торгово-развлекательном центре «Щёлковский»
Сегодня — 15 апреля, среда / Москва
"Откроется сервисный офис площадью 4,5 тыс. кв. м в бизнес-центре Dubinin’Sky"
Сегодня — 15 апреля, среда / Санкт-Петербург
Сделки на складском рынке Петербурга упали на 80% в первом квартале
Сегодня — 15 апреля, среда / Москва
"Компания 'Росспиртпром' приобрела долю в 23,99% Иткульского спиртзавода в Алтайском крае"
Сегодня — 15 апреля, среда / Самарская
Сеть «Монетка» расширила свою присутствие, открыв магазины в Самаре и селах Самарской области
Сегодня — 15 апреля, среда / Москва
Падение чистой прибыли сети Rendez-Vous на 93% в 2025 году.
Вчера — 14 апреля, вторник / Санкт-Петербург
Планируется развитие культурной инфраструктуры на Ново-Адмиралтейском острове: открытие концертного зала и музея
Вчера — 14 апреля, вторник / Санкт-Петербург
Объем доступных складских площадей в Санкт-Петербурге достиг 5,8 миллиона квадратных метров
Вчера — 14 апреля, вторник / Москва
"«Авивир» переезжает в деловой квартал 'Сколково Парк' в качестве резидента"
Вчера — 14 апреля, вторник / Москва
"Производство российских микрофокусных рентгеновских устройств стартовало в ОЭЗ «Технополис Москва»"
Вчера — 14 апреля, вторник / Москва
"Рост рынка торговой недвижимости притормозил"
Вчера — 14 апреля, вторник / Москва
«Строительная компания "Галс-Девелопмент" планирует возведение первого бизнес-центра в районе "Южный порт"»
Вчера — 14 апреля, вторник / Москва
"«Роснефть» расширяет свои активы, приобретая компанию «Саянскхимпласт», специализирующуюся на производстве ПВХ"
Вчера — 14 апреля, вторник / Москва
"Первый магазин смысловой 226 открывается в пространстве Яндекс-01"
Вчера — 14 апреля, вторник / Москва
"Askona преобразует сеть магазинов в помещения размером от 600 до 1,500 квадратных метров"
Вчера — 14 апреля, вторник / Москва
Эдактируй заявку: Незавершенное производственное сооружение в Егорьевске выставлено на продажу за 152,5 миллионов рублей