Главная
Купить торговое помещение в Москве и МО
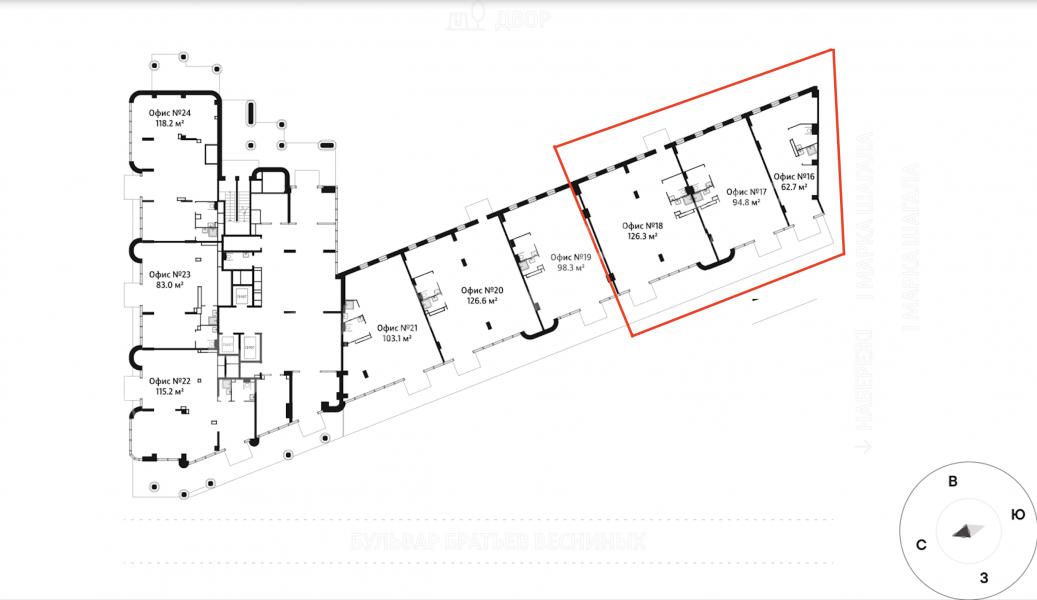
Торговое помещение 244 м² в квартале LIFE TIME (ЛАЙФ ТАЙМ)
Купить торговое помещение 244 м² в квартале LIFE TIME (ЛАЙФ ТАЙМ)
Описание
Предлагаем на продажу офисный блок 244 кв.м. на 1 этаже по адресу ул Сергея Макеева, д. 11/9 стр 1. В здании установлена современная система центрального кондиционирования, а также эффективная приточно-вытяжная вентиляция для комфортной работы. Есть подземная парковка. Договор с собственником помещения. Без комиссии. Возможен торг. По всем вопросам звоните с 9:30 до 21:00. Оперативно организуем просмотр, при необходимости, бесплатно подготовим план рассадки ваших сотрудников. 8316
Расположение
г Москва, ул Сергея Макеева, д 11/9 стр 1
Улица 1905 года
—
1 мин
Технические характеристики
Свободные помещения в Квартал LIFE TIME (ЛАЙФ ТАЙМ)
Новость дня
Все новости
3 апреля, пятница / Москва
"Сеть магазинов 'Ашан' намерена увеличить своё присутствие на российском рынке"
3 апреля, пятница / Санкт-Петербург
На 139 гектарах в Старо-Паново будет возведен агрокомплекс
3 апреля, пятница / Москва
Lamoda увеличила свою площадь в логопарке «Софьино» до 68 тыс. квадратных метров.
3 апреля, пятница / Санкт-Петербург
1,5% торговых площадей Невского проспекта не заняты
3 апреля, пятница / Москва
Компания "Нортекс" приобрела здание на Большой Татарской улице для размещения своего офиса
3 апреля, пятница / Москва
РЖД планирует застроить жильем и коммерческой недвижимостью грузовой двор в Красносельском районе.
3 апреля, пятница / Владимирская
Охотничья база во Владимирской области выставлена на аукционе.
3 апреля, пятница / Москва
Большая доля продаж на платформах электронной торговли приходится на одежду и обувь
3 апреля, пятница / Санкт-Петербург
Строительство центра обработки данных NK Group в индустриальном парке «Шушары-3»
3 апреля, пятница / Москва
Туристический поток к Серебряному ожерелью наравне с Золотым кольцом
2 апреля, четверг / Москва
Переформулирую: "Сеть гипермаркетов "Ашан" запустила свой первый ресторан рамена в торговом центре "Ашан Авиапарк".
2 апреля, четверг / Москва
Многоэтажные легкие промышленные здания в Московском регионе планируют увеличить свой объем более чем в 10 раз к 2028 году
2 апреля, четверг / Москва
Ресторан Kausar из Казахстана открылся в Торговом Центре Dubai Mall.
2 апреля, четверг / Москва
"Москва готовится к запуску первого в России кластера по производству лифтов"
2 апреля, четверг / Москва
"Дом.РФ стал владельцем более 140 гектаров земли, ранее принадлежавших "Уралсибу" в Нахабино"
2 апреля, четверг / Москва
"Компания 'Мосинжпроект' взяла под свое управление строящийся объект на проспекте Вернадского"
2 апреля, четверг / Москва
Торгово-развлекательный центр площадью свыше 21 тыс. кв. м будет построен в жилом комплексе «Одинбург».
2 апреля, четверг / Москва
"Собственники земли возле аэродрома Чкаловский борются за право на строительство"
2 апреля, четверг / Санкт-Петербург
"В Пушкине запланировано строительство производственно-складского комплекса"
2 апреля, четверг / Москва
Концерн «Энерготехнологии» расширяет свой бизнес, приобретая ТРК «Тройка» в центре Москвы