Купить офис 175 м² в ЖК Сиреневый парк
Описание
Номер объекта: 550943. От собственника. Продажа офисного помещения в новом Деловом Центре AFI 2B Тагильская (класса А), в районе Метрогородок, на 1-й линии Открытого шоссе, ВАО, в 12 минутах пешком от м. Бульвар Рокоссовского.
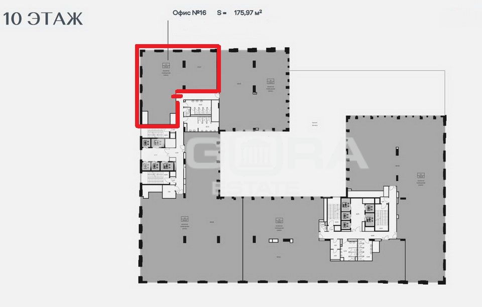
Площадь офиса 175,97 м2, 10-й этаж 26-этажного Бизнес центра, офис №16 на плане этажа. Готовность БЦ - 3 квартал 2026 года. 1 отдельный вход в офисное помещение, офис угловой с панорамным остеклением, высокие потолки 3.2 м, открытая планировка, состояние - без отделки. Подходит для размещения представительства компании или для рабочего офиса различных бизнес-направлений.
26-ти этажное здание БЦ AFI 2B Тагильская входит в состав семейного квартала Сиреневый парк, дополняя инфраструктуру района. Офисная часть – разноуровневая, расположена на 6-ти этажном стилобате – с 7 по 26 этаж. На -1 этаже - Супермаркет площадью 1 543 м2 и другие торговые, складские и инженерно-технические помещения. На 1 и 2 этажах – торговый центр, на 3-5 этажах – встроенная парковка на 200 машиномест, на 6 этаже – эксплуатируемая кровля стилобата с местами отдыха, прогулочными зонами и ресторанным двориком. С 7 по 26 этаж – офисные помещения.
Стратегическое расположение офисного центра рядом со станциями метро и МЦК Бульвар Рокоссовского, а также с удобным выездом на СВХ и Щелковское шоссе обеспечивает отличную транспортную логистику как на городском транспорте, так и на собственном автомобиле.
Объект № 550943
Площадь офиса 175,97 м2, 10-й этаж 26-этажного Бизнес центра, офис №16 на плане этажа. Готовность БЦ - 3 квартал 2026 года. 1 отдельный вход в офисное помещение, офис угловой с панорамным остеклением, высокие потолки 3.2 м, открытая планировка, состояние - без отделки. Подходит для размещения представительства компании или для рабочего офиса различных бизнес-направлений.
26-ти этажное здание БЦ AFI 2B Тагильская входит в состав семейного квартала Сиреневый парк, дополняя инфраструктуру района. Офисная часть – разноуровневая, расположена на 6-ти этажном стилобате – с 7 по 26 этаж. На -1 этаже - Супермаркет площадью 1 543 м2 и другие торговые, складские и инженерно-технические помещения. На 1 и 2 этажах – торговый центр, на 3-5 этажах – встроенная парковка на 200 машиномест, на 6 этаже – эксплуатируемая кровля стилобата с местами отдыха, прогулочными зонами и ресторанным двориком. С 7 по 26 этаж – офисные помещения.
Стратегическое расположение офисного центра рядом со станциями метро и МЦК Бульвар Рокоссовского, а также с удобным выездом на СВХ и Щелковское шоссе обеспечивает отличную транспортную логистику как на городском транспорте, так и на собственном автомобиле.
Объект № 550943
Расположение
г Москва, ул Тагильская, д 4А
б-р Рокоссовского
—
12 мин
Бульвар Рокоссовского
—
12 мин
Локомотив
—
20 мин
Технические характеристики
Параметры
Охрана
есть
Инженерия
кондиционер, лифт
Статус владельца объявления
агентство
Класс
a
Параметры помещения
Высота потолков
—
Свободные помещения в ЖК Сиреневый парк
Новость дня
Все новости
Сегодня — 30 апреля, четверг / Москва
Скорось открытия новых магазинов «Лэтуаль» снизится - 150 точек закроются к 2026 году.
Вчера — 29 апреля, среда / Москва
Московский цех открыл производство 3D-принтеров для металлической печати.
Вчера — 29 апреля, среда / Москва
БМ-банк завершил продажу большей части площадей в ТЦ «Весна» на Новом Арбате.
Вчера — 29 апреля, среда / Москва
Перефразированное название: "Сеть магазинов 'Жизньмарт' возобновляет свою деятельность в Челябинске"
Вчера — 29 апреля, среда / Санкт-Петербург
Сервисный офис «Практик» начал свою работу на Октябрьской набережной в Санкт-Петербурге.
Вчера — 29 апреля, среда / Санкт-Петербург
Строительство складских помещений в Санкт-Петербурге и Ленинградской области увеличилось в 2,5 раза.
Вчера — 29 апреля, среда / Москва
Москва увеличила объем строительства в рамках программы МПТ до 9,5 миллионов квадратных метров
Вчера — 29 апреля, среда / Санкт-Петербург
Соседский центр "ЖИВИ Клуб" открыл свои двери в Новоселье
Вчера — 29 апреля, среда / Москва
"Завершено строительство пятиэтажной наземной парковки в районе Нагатинский Затон"
Вчера — 29 апреля, среда / Санкт-Петербург
Рекордный уровень строительства складов зафиксирован в Санкт-Петербурге и Ленинградской области
Вчера — 29 апреля, среда / Москва
Аренда складов в Москве снизилась на 25%
28 апреля, вторник / Москва
"Появление двух новых брендов на российском рынке в начале 2026 года"
28 апреля, вторник / Москва
27-этажный бизнес-центр класса А в Коммунарке завершает процесс утверждения своего архитектурного дизайна
28 апреля, вторник / Москва
Перефразированное название статьи: "Открытие первого флагманского магазина Lumique в «Авиапарке»"
28 апреля, вторник / Москва
"Подольская фабрика офсетной печати выставляет на приватизацию 49% своих акций"
28 апреля, вторник / Москва
Самострои в ЮВАО: площадь почти 4 тыс. кв. м за первый квартал
28 апреля, вторник / Москва
Иск на 11,7 млрд рублей подан банком «Санкт-Петербург» к структуре «Гранели»
28 апреля, вторник / Москва
"«Яндекс Фабрика» запускает цепь офлайн-магазинов в Москве"
28 апреля, вторник / Москва
Детская сеть магазинов "Кораблик" столкнулась с финансовыми трудностями
28 апреля, вторник / Москва
Снижение загрузки премиум отелей Москвы в первом квартале до 69,4%