Описание
Продаётся участок 12, 71 соток (36, 3м х 35м) с домом, гаражом и хозблоком, находящийся в живописном месте. Участок солнечный, идеален для проживания. Все коммуникации проведены в дом: газ, свет. "Вода (колодец). "
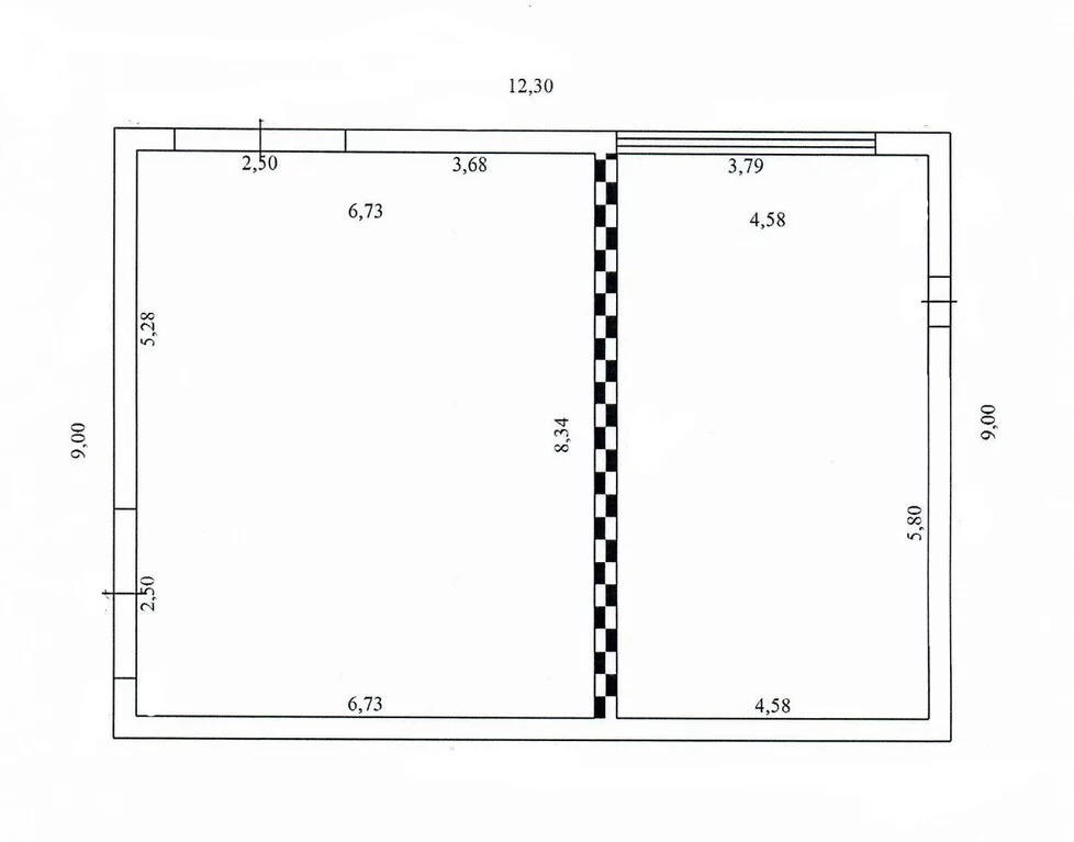
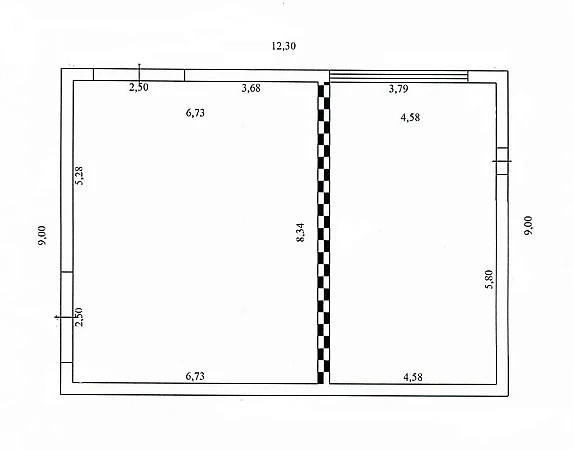
Площадь дома 125, 7 кв. м. ( в егрн 86, 5 кв.м). В доме зал 20,72 кв.м, спальня 20,65 кв.м, детская 13,92 кв, комната 9,81 кв.м, терасса 17,11 кв.м, кухня 13,97 кв.м, веранда 12,47 кв.м, коридор 9,37 кв.м, прихожая 7,73 кв.м.
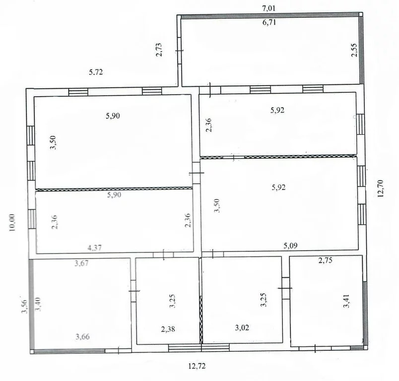
Гараж 111 кв.м.( в егрн 97,1 кв.м.), есть жилая зона 30 кв.м, место для нескольких машин 81 кв.м. подведены свет, вода и канализация
Хозблок площадью 36,3 кв.м. Дорога асфальтированная, убирают круглый год. Дружелюбные соседи проживают круглогодично. Удобная транспортная доступность. Заезд с нескольких трасс: по Каширскому, Варшавскому шоссе и через Измайлово, до платформы Булатниково 550 метров, до автобусной остановки 1,3 км, до мкада 2,3 км, до метро Аннино 15 минут на транспорте, до метро Нагатинская 17 минут на электричке. До Павелецкого вокзала 34 минуты на электричке.
Один собственник с 1995 года. Никто не прописан. Помощь в оформлении ипотеки. AFY-202920610
Площадь дома 125, 7 кв. м. ( в егрн 86, 5 кв.м). В доме зал 20,72 кв.м, спальня 20,65 кв.м, детская 13,92 кв, комната 9,81 кв.м, терасса 17,11 кв.м, кухня 13,97 кв.м, веранда 12,47 кв.м, коридор 9,37 кв.м, прихожая 7,73 кв.м.
Гараж 111 кв.м.( в егрн 97,1 кв.м.), есть жилая зона 30 кв.м, место для нескольких машин 81 кв.м. подведены свет, вода и канализация
Хозблок площадью 36,3 кв.м. Дорога асфальтированная, убирают круглый год. Дружелюбные соседи проживают круглогодично. Удобная транспортная доступность. Заезд с нескольких трасс: по Каширскому, Варшавскому шоссе и через Измайлово, до платформы Булатниково 550 метров, до автобусной остановки 1,3 км, до мкада 2,3 км, до метро Аннино 15 минут на транспорте, до метро Нагатинская 17 минут на электричке. До Павелецкого вокзала 34 минуты на электричке.
Один собственник с 1995 года. Никто не прописан. Помощь в оформлении ипотеки. AFY-202920610
Расположение
Московская обл, г Видное, с Булатниково, ул Советская, д 8
Аннино
—
56 мин
Битца
—
41 мин
Красный строитель
—
50 мин
Технические характеристики
Параметры
Статус владельца объявления
агентство
Водоснабжение
есть
Новость дня
Все новости
Сегодня — 12 мая, вторник / Санкт-Петербург
"Продажа двух исторических зданий в Красном Селе по цене в 1 рубль"
Сегодня — 12 мая, вторник / Санкт-Петербург
Суд отклонил иск "дочки" "Гранеля" к банку "Санкт-Петербург" на сумму 11,7 млрд рублей
Сегодня — 12 мая, вторник / Москва
Университетский колледж БРИКС арендует помещение в бизнес-центре «РТС Семёновский»
Сегодня — 12 мая, вторник / Москва
"Производитель товаров для дома расширяет свои офисные площади, приобретая 1,4 тыс. кв. м в бизнес-центре "Level work Воронцовская""
Сегодня — 12 мая, вторник / Москва
"Незначительное увеличение стоимости строительства складов в ЦФО за год"
Сегодня — 12 мая, вторник / Москва
"В Коммунарке будет построен новый многоуровневый паркинг площадью до 10 тыс. кв. м"
Сегодня — 12 мая, вторник / Москва
"Оператор вендинговых автоматов "Мир вендинга" расширяет свою деятельность с запуском сети мини-кофеен"
Сегодня — 12 мая, вторник / Москва
"А1 приобретает бизнес «Русского холода» за символическую сумму и выкупает долги"
Сегодня — 12 мая, вторник / Москва
Планируется строительство паркинга с магазином в Нижегородском районе в рамках программы комплексного развития территории.
Сегодня — 12 мая, вторник / Москва
"ИДС Боржоми" приобрела завод "Святой источник" в Подмосковье.
8 мая, пятница / Москва
Усадьбу XVIII–XIX веков в центре Москвы выставили на аукцион «Дом.РФ»
8 мая, пятница / Москва
Бизнес-центр площадью 43,3 тыс. кв. м открыли в окрестностях Филевского парка.
8 мая, пятница / Крым
Гостиница на полуострове Крым выставлена на продажу по цене 117,7 миллиона рублей.
8 мая, пятница / Москва
В Нагатинской пойме откроется фитнес-клуб в гостиничном комплексе
8 мая, пятница / Москва
"Сменился владелец Торгового центра «Гудзон»"
8 мая, пятница / Москва
"Открытие обновленного футбольного комплекса в СберСити"
8 мая, пятница / Нижегородская
В Нижнем Новгороде будет восстановлен исторический здание для коммерческой аренды.
8 мая, пятница / Архангельская
Офисное здание в центре Архангельска выставлено на торги площадкой «Дом.РФ»
8 мая, пятница / Москва
Группа "Гранд НН" из Нижнего Новгорода продает пять компаний за 3,3 миллиарда рублей.