Главная Купить дом в Москве и МО Дом 300 м² в Крекшино

Купить дом 300 м² в Крекшино

ID 74793
Цена
141 094 852 ₽
Ставка
470 316 ₽ / м²
Площадь
300 м²
агентство недвижимости
г Москва, Марушкинское п, д Крёкшино, ул Московская На карте
Описание
ID объекта: Z-14982. Предлагается современный дом под ключ в элитном КП Крекшино.Двухэтажный коттедж со стенами из теплой керамики RAUF. Отделка внутреннего пространства выполнена по индивидуальному дизайнерскому проекту с использованием только натуральных материалов: мрамор, дерево, эко краски.На первом этаже просторная гостиная-столовая с камином EDIL KAMIN, кухня с выходом на террасу и задний двор, гараж на 2 м/м. Второй этаж отдан приватной зоне с хозяйской спальней и двумя детскими спальнями. Все спальни с выходами на балконы. Этажи соединяет лестница облицованная цельными ступенями и подступенками из слэбов натурального мрамора Crema Marfil. Ограждение ? массив бука, тонированный в цвет межкомнатных дверей, комбинированный с изящными стойками из металла. Окна и двери деревянные с двойным стеклопакетом. Подоконники ?мрамор Crema Marfil. Кухня VITALY. Ванные комнаты оснащены стильной сантехникой VALENTE, Jacob Delafon, Fanal Natura Viento. Установлен котел немецкой фирмы Viessmann Vitocell на 200 л.На участке высажен газон, вымощены дорожки, установлено уличное освещение.

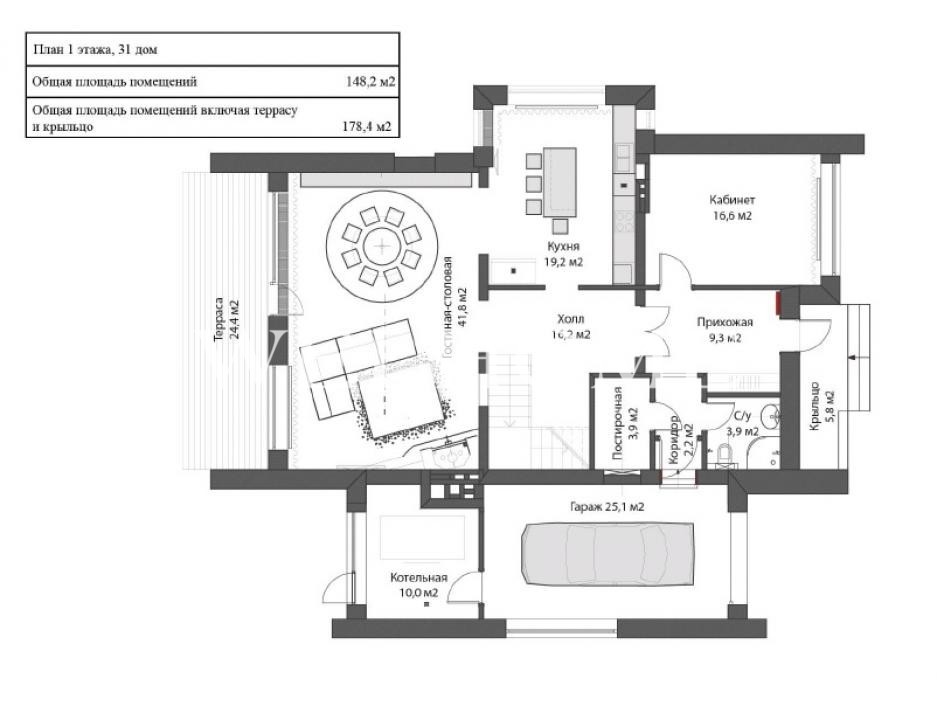
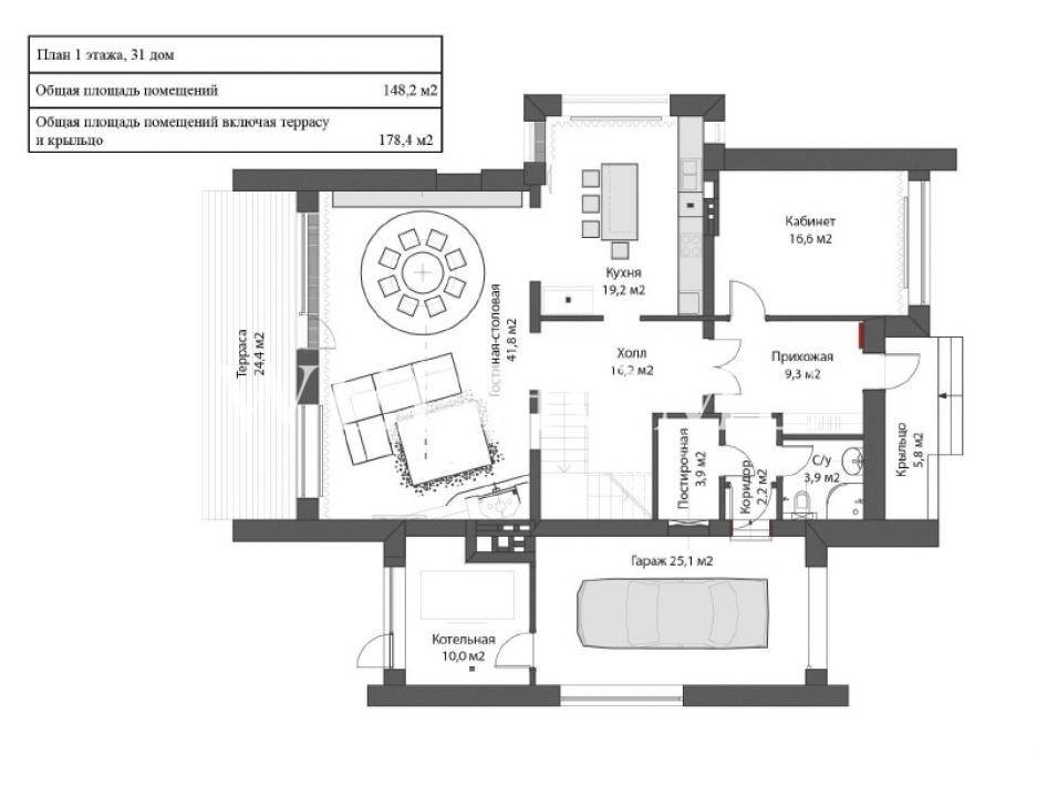
Поэтажное описание
1 этаж: холл, гостиная-столовая, кухня, кабинет, постирочная, котельная, гараж;
2 этаж: холл, спальня с гардеробной и с/у, 2 спальни, с/у.
Расположение
г Москва, Марушкинское п, д Крёкшино, ул Московская
Технические характеристики
Параметры
Водоснабжение
есть
Канализация
есть
Газ
есть
Отопление
есть
Статус владельца объявления
агентство
Подать заявку
Отдел аренды и продаж
+7 495 989-57-31
Похожие объявления
ID 1567042
ID 1745919
ID 77125
ID 1788701
ID 1660870
ID 883186
Новость дня
Расширение возможностей для B2B-клиентов: Avito вводит новые услуги для строительства складов
На платформе Авито теперь доступна категория "Коммерческое строительство" в сегменте услуг, предлагающая широкий выбор специализированных работ и возведение объектов "под ключ" для бизнеса, что упрощает поиск подрядчиков и субподрядчиков для коммерческих проектов.
Все новости
Вчера — 4 мая, понедельник / Краснодарский
В Анапе откроется первый отель с инновационными IT-сервисами