Снять офис 702 м² в БЦ Poklonka Place / Поклонка Плейс
ID 846483
Цена
5 500 229 ₽/мес
Ставка
94 021 ₽ / м² / год
Площадь
702 м²
Класс
A
Этаж
5 из -
ИФНС
7730
агентство недвижимости
г Москва, ул Поклонная, д 3
На карте
Кутузовская
—
4 мин
Описание
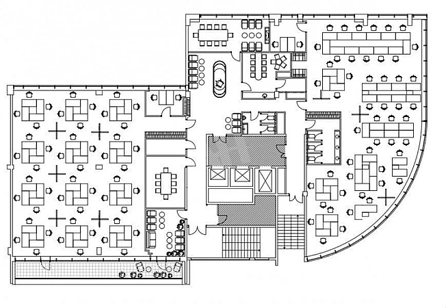
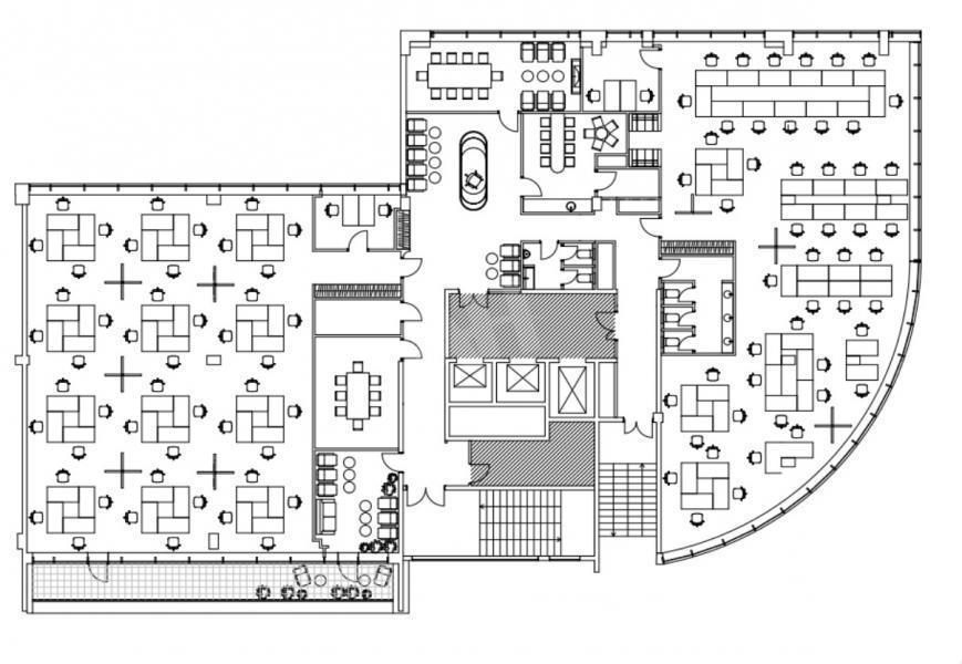
Лот №890196 Предлагается в аренду дизайнерский офис 701.97 кв.м. на 5 этаже в бизнес центре класса А, Поклонка Плейс. Большой, светлый, смешанная планировка: переговорные, open space, кухонька, сан узлы. Офис оснащен всей необходимой мебелью. Ежедневная влажная уборка помещений, вынос ТБО, еженедельная генеральная уборка, обеспыливание поверхностей; Хозяйственные расходы (мыло в с/у, бумажные полотенца, бумажные салфетки, моющие средства на кухню, капсулы для посудомоечной машины); F&B расходы (кофе, чай, молоко, снэки); Фрукты по пятницам; WiFi, беспроводной интернет (услуги провайдера); Аренда оборудования и техническое оснащение для беспроводного интернета (точки доступа, коммутаторы и т. д.); Прочее: химчистка, смена грязезащитных ковров, дезинсекция, дератизация; Уход за зеленью. На подземном паркинге можно арендовать машиноместа. Офис готов к заезду.
Стоимость аренды: 94021 руб/м2/год (5500229 руб в месяц) В цену включено: затраты на электричество, коммунальные расходы, уборка, эксплуатационные расходы, НДС 22%.
Чтобы получить ПОДРОБНУЮ ПРЕЗЕНТАЦИЮ С ПЛАНИРОВКОЙ И ФОТОГРАФИЯМИ на этот объект, звоните. Высылаем в течение 15 минут по запросу!
☎ Конт. лицо: Ирина Владимировна, доб. 204, ЛОТ №890196
Стоимость аренды: 94021 руб/м2/год (5500229 руб в месяц) В цену включено: затраты на электричество, коммунальные расходы, уборка, эксплуатационные расходы, НДС 22%.
Чтобы получить ПОДРОБНУЮ ПРЕЗЕНТАЦИЮ С ПЛАНИРОВКОЙ И ФОТОГРАФИЯМИ на этот объект, звоните. Высылаем в течение 15 минут по запросу!
☎ Конт. лицо: Ирина Владимировна, доб. 204, ЛОТ №890196
Расположение
г Москва, ул Поклонная, д 3
Кутузовская
—
4 мин
Технические характеристики
Параметры
Статус владельца объявления
агентство
Класс
a
Свободные помещения в БЦ Poklonka Place / Поклонка Плейс
Новость дня
Все новости
Сегодня — 14 мая, четверг / Москва
"Строительная компания «А101» планирует продажу 51 торгового помещения в жилом комплексе «Прокшино»"
Сегодня — 14 мая, четверг / Санкт-Петербург
"Группа ЛСР приобрела гостиничный комплекс «Domina Пулково»"
Сегодня — 14 мая, четверг / Санкт-Петербург
Гостиница «Новотель» в центре Петербурга теперь контролируется фондом «Талант и успех»
Сегодня — 14 мая, четверг / Санкт-Петербург
«Завод спецтехники «Митракс» будет открыт в Санкт-Петербурге»
Сегодня — 14 мая, четверг / Москва
Новый грузинский ресторан Shvili открывается в Дубае как часть ресторанной группы «Тигрус»
Сегодня — 14 мая, четверг / Москва
"Объем предложения офисных помещений от застройщиков в Москве достиг 1,3 миллиона квадратных метров"
Сегодня — 14 мая, четверг / Москва
"Бывшие владельцы Raven Russia приговорены к выплате 6,3 млрд рублей и отдаче активов в Петербурге и Мытищах"
Сегодня — 14 мая, четверг / Москва
Липовая аллея крупномеров появилась на северо-западе Москвы
Сегодня — 14 мая, четверг / Москва
Планируется строительство бизнес-центра площадью 45,5 тыс. квадратных метров на проспекте Вернадского
Сегодня — 14 мая, четверг / Москва
"Разрушенное здание рядом с Хибинским сквером было удалено"
Сегодня — 14 мая, четверг / Москва
Магазин "Снежная Королева" открылся в ТРЦ "Щёлковский"
Вчера — 13 мая, среда / Москва
Торгово-развлекательный комплекс "Зеленопарк" в Подмосковье выставлен на продажу по цене 7,09 миллиарда рублей.
Вчера — 13 мая, среда / Москва
Новое японское бистро J’PAN откроется на Смоленской площади
Вчера — 13 мая, среда / Москва
Сеть магазинов "АШАН" расширила сеть магазинов "Белорусские деревни" в Москве и Химках
Вчера — 13 мая, среда / Москва
Новый благоустроенный двор с садом и искусственным водоемом появился на западе Москвы.
Вчера — 13 мая, среда / Москва
"Госкорпорация Ростех выставляет на продажу 9,3 гектаров земли и 22 тысячи квадратных метров зданий в Санкт-Петербурге"
Вчера — 13 мая, среда / Москва
Бутик детской одежды Petit Bateau открылся в торговом центре «Афимолл Сити» в Москве.
Вчера — 13 мая, среда / Нижегородская
"Сеть магазинов 'Детский мир' оказывает поддержку производителям детских товаров из Нижегородской области"
Вчера — 13 мая, среда / Москва
Два старых незаконных склада были демонтированы на востоке Москвы
Вчера — 13 мая, среда / Москва
Торговая недвижимость в регионах России достигла исторического минимума в I квартале 2022 года.