Снять офис 68 м² в Москва, Партизанская, 25
ID 8653
Цена
106 690 ₽/мес
Ставка
18 828 ₽ / м² / год
Площадь
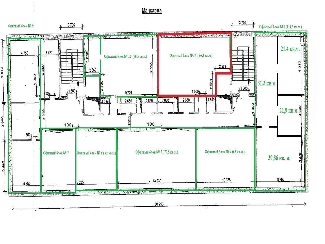
68 м²
Класс
C
Этаж
6 из 6
ИФНС
7731
агентство недвижимости
г Москва, ул Партизанская, д 25
На карте
Кунцевская
Молодёжная
Кунцевская
Кунцевская
Кунцевская
Рабочий поселок
—
13 мин
Сетунь
—
18 мин
Описание
Предлагается в аренду помещение от собственника общей площадью 68,10 м² на мансардном этаже ( (6-й этаж, ЛИФТА НЕТ В ЗДАНИИ).Планировка кабинетная, состояние помещения – готово к въезду. Назначение помещения– для работы офисных сотрудников. Высота потолков – 3,0м. Территория БП находится под круглосуточной охраной и видеонаблюдением. Проведены все коммуникации, контроль доступа. Интернет-провайдер Сити-телеком. Административное здание расположено в непосредственной близости от метро Молодежная (10 минут пешком). Инфраструктура представлена полным спектром услуг для арендаторов и их посетителей: рядом находится ТЦ "Кунцево Плаза". Парковка общегородская.Договор аренды на 11 месяцев. Обеспечительный взнос 2-е месячные арендные платы. Предоставляем юридический адрес за дополнительную плату. Отдельно оплачиваются коммунальные платежи, клининг. Арендная ставка включает НДС. При необходимости ремонта предоставляются арендные каникулы. Режим работы с 8 до 22 ч. Лот № 000005422
Расположение
г Москва, ул Партизанская, д 25
Кунцевская
Молодёжная
Кунцевская
Кунцевская
Кунцевская
Рабочий поселок
—
13 мин
Сетунь
—
18 мин
Технические характеристики
Новость дня
Расширение возможностей для B2B-клиентов: Avito вводит новые услуги для строительства складов
На платформе Авито теперь доступна категория "Коммерческое строительство" в сегменте услуг, предлагающая широкий выбор специализированных работ и возведение объектов "под ключ" для бизнеса, что упрощает поиск подрядчиков и субподрядчиков для коммерческих проектов.
Все новости
Сегодня — 4 мая, понедельник / Москва
Вложения в недвижимость России за первую половину текущего года составили 169,5 миллиарда рублей.
Сегодня — 4 мая, понедельник / Москва
Российский складской рынок продолжает расти: площадь складских помещений превысит 60 млн кв. м к концу 2026 года
Сегодня — 4 мая, понедельник / Москва
"Компания "Галс-Девелопмент" получила одобрение на строительство делового центра "Дубининский"."
Сегодня — 4 мая, понедельник / Москва
Инвестиционный фонд "Бумеранг Капитал" стал владельцем половины сети кофеен "Цех 85"
Сегодня — 4 мая, понедельник / Краснодарский
В Анапе откроется первый отель с инновационными IT-сервисами
Сегодня — 4 мая, понедельник / Москва
Планируется строительство торгового центра площадью свыше 6 тыс. кв. м в Краснопахорском районе Москвы.
Сегодня — 4 мая, понедельник / Москва
Смена собственника у клубов «Дикая орхидея» и «Дефиле»
Сегодня — 4 мая, понедельник / Вологодская
"Прекращена деятельность "наливаек" и магазинов электронных сигарет в Вологодской области"
Сегодня — 4 мая, понедельник / Москва
"Exeed перемещает производство из Подмосковья на площадку АГР в Шушарах"
Сегодня — 4 мая, понедельник / Москва
На юге Москвы запланировано строительство ТПУ "Кленовый бульвар" на площади 2 гектара.
30 апреля, четверг / Москва
"Бумеранг Капитал" увеличил свою долю в сети кафе-пекарен "Цех 85" до 50%
30 апреля, четверг / Ставропольский
В Кисловодске начался проект строительства инвестиционного отеля "Реликт"
30 апреля, четверг / Москва
Ресторан «Долина 5165» и магазин Sokolov теперь доступны посетителям ТРЦ Avenue Sever
30 апреля, четверг / Москва
"Новый флагманский магазин под названием «Флаувау» открыл свои двери на Мясницкой улице"
30 апреля, четверг / Москва
"Уровень вакансии на складах в Московском регионе достиг 5,4% из-за увеличения предложений по субаренде"
30 апреля, четверг / Москва
"Прогнозируется незначительный прирост числа туристов в первом квартале 2026 года - всего 2,8%"
30 апреля, четверг / Москва
Компания "Ориентир" планирует вложить до 150 млрд рублей в расширение бизнеса и развитие новых секторов.
30 апреля, четверг / Москва
"Завершено строительство наземной парковки на 400 автомобильных мест в парке «Ривер Парк Коломенское»"
30 апреля, четверг / Москва
Скорось открытия новых магазинов «Лэтуаль» снизится - 150 точек закроются к 2026 году.
30 апреля, четверг / Москва
Смайл-бар сети "Белая точка" теперь доступен посетителям ТЦ "Левел Причальный"