Купить готовый бизнес 837 м²
ID 936989
Цена
70 000 000 ₽
Ставка
83 632 ₽ / м²
Площадь
837 м²
Этаж
1 из 2
агентство недвижимости
Московская обл, г Наро-Фоминск, проезд Туннельный, д 7А
На карте
Описание
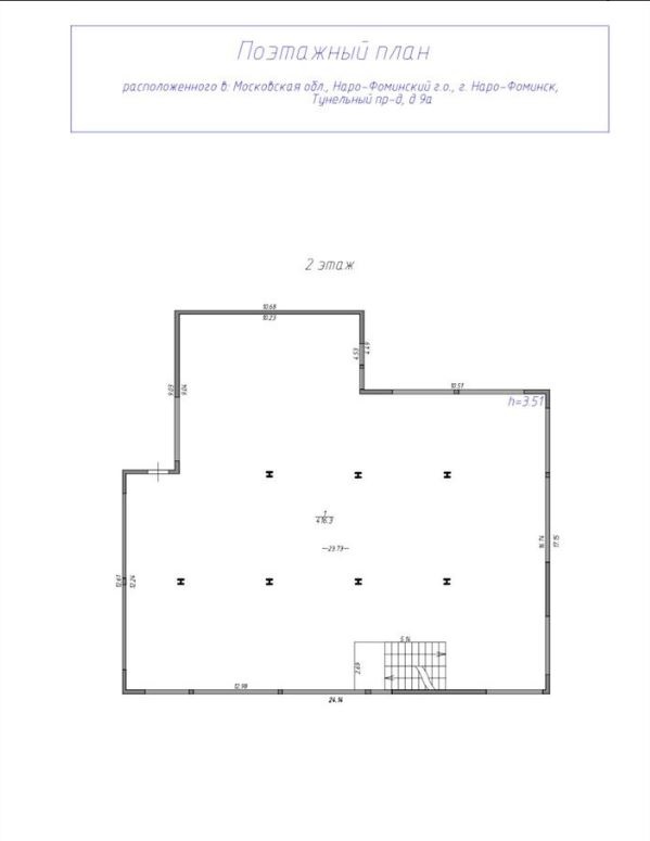
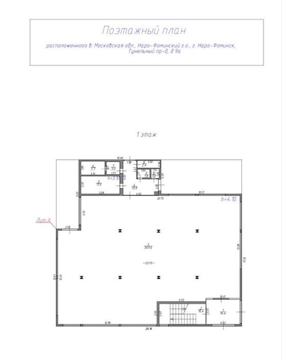
Номер лота на нашем сайте: 30817. Продажа арендного бизнеса в г. Наро-Фоминск - 2-х этажный ТЦ Кубик, общей площадью 837 м2.
Арендаторы: 1 этаж - Fixprice 280 м2 и Красное Белое 100 м2 , почтомат Ozon 1 м2 2 этаж- Wilberriers -99 м2 , салон красоты 30 м2, 220 м2 в процессе сдачи.
МАП 720 000 руб. (план 900000 руб.)
ГАП 8 400 000 руб./год.
Построен и введён в эксплуатацию в апреле 2019 года . Полностью сделан ремонт на всех этажах, сигнализация, камеры безопасности, охрана, кондиционеры, парковка на 35 м/м. Коммуникации все центральные, городские.
Материал строительства, железный каркас, стены сэндвич панель, облицованы кассетами, крыша мембранная, перекрытие бетонные. Высота потолков по 4 м.
Земельный участок 8 соток в собственности
Расположение - главный въезд в город и на жд/ ст Нара.
За дополнительной информацией звоните!
Арендаторы: 1 этаж - Fixprice 280 м2 и Красное Белое 100 м2 , почтомат Ozon 1 м2 2 этаж- Wilberriers -99 м2 , салон красоты 30 м2, 220 м2 в процессе сдачи.
МАП 720 000 руб. (план 900000 руб.)
ГАП 8 400 000 руб./год.
Построен и введён в эксплуатацию в апреле 2019 года . Полностью сделан ремонт на всех этажах, сигнализация, камеры безопасности, охрана, кондиционеры, парковка на 35 м/м. Коммуникации все центральные, городские.
Материал строительства, железный каркас, стены сэндвич панель, облицованы кассетами, крыша мембранная, перекрытие бетонные. Высота потолков по 4 м.
Земельный участок 8 соток в собственности
Расположение - главный въезд в город и на жд/ ст Нара.
За дополнительной информацией звоните!
Расположение
Московская обл, г Наро-Фоминск, проезд Туннельный, д 7А
Технические характеристики
Параметры
Электричество
есть
Инженерия
кондиционер, вентиляция, пожарная сигнализация
Статус владельца объявления
агентство
Новость дня
Расширение возможностей для B2B-клиентов: Avito вводит новые услуги для строительства складов
На платформе Авито теперь доступна категория "Коммерческое строительство" в сегменте услуг, предлагающая широкий выбор специализированных работ и возведение объектов "под ключ" для бизнеса, что упрощает поиск подрядчиков и субподрядчиков для коммерческих проектов.
Все новости
Вчера — 30 апреля, четверг / Москва
"Бумеранг Капитал" увеличил свою долю в сети кафе-пекарен "Цех 85" до 50%
Вчера — 30 апреля, четверг / Ставропольский
В Кисловодске начался проект строительства инвестиционного отеля "Реликт"
Вчера — 30 апреля, четверг / Москва
Ресторан «Долина 5165» и магазин Sokolov теперь доступны посетителям ТРЦ Avenue Sever
Вчера — 30 апреля, четверг / Москва
"Новый флагманский магазин под названием «Флаувау» открыл свои двери на Мясницкой улице"
Вчера — 30 апреля, четверг / Москва
"Уровень вакансии на складах в Московском регионе достиг 5,4% из-за увеличения предложений по субаренде"
Вчера — 30 апреля, четверг / Москва
"Прогнозируется незначительный прирост числа туристов в первом квартале 2026 года - всего 2,8%"
Вчера — 30 апреля, четверг / Москва
Компания "Ориентир" планирует вложить до 150 млрд рублей в расширение бизнеса и развитие новых секторов.
Вчера — 30 апреля, четверг / Москва
"Завершено строительство наземной парковки на 400 автомобильных мест в парке «Ривер Парк Коломенское»"
Вчера — 30 апреля, четверг / Москва
Скорось открытия новых магазинов «Лэтуаль» снизится - 150 точек закроются к 2026 году.
Вчера — 30 апреля, четверг / Москва
Смайл-бар сети "Белая точка" теперь доступен посетителям ТЦ "Левел Причальный"
29 апреля, среда / Москва
Московский цех открыл производство 3D-принтеров для металлической печати.
29 апреля, среда / Москва
БМ-банк завершил продажу большей части площадей в ТЦ «Весна» на Новом Арбате.
29 апреля, среда / Москва
Перефразированное название: "Сеть магазинов 'Жизньмарт' возобновляет свою деятельность в Челябинске"
29 апреля, среда / Санкт-Петербург
Сервисный офис «Практик» начал свою работу на Октябрьской набережной в Санкт-Петербурге.
29 апреля, среда / Санкт-Петербург
Строительство складских помещений в Санкт-Петербурге и Ленинградской области увеличилось в 2,5 раза.
29 апреля, среда / Москва
Москва увеличила объем строительства в рамках программы МПТ до 9,5 миллионов квадратных метров
29 апреля, среда / Санкт-Петербург
Соседский центр "ЖИВИ Клуб" открыл свои двери в Новоселье
29 апреля, среда / Москва
"Завершено строительство пятиэтажной наземной парковки в районе Нагатинский Затон"
29 апреля, среда / Санкт-Петербург
Рекордный уровень строительства складов зафиксирован в Санкт-Петербурге и Ленинградской области
29 апреля, среда / Москва
Аренда складов в Москве снизилась на 25%