БЦ «КОБЗОН СИТИ»

ООО «СЗ «ОКТЯБРЬ В САО»
Инн: 9729336630
Токен: 2W5zFJiwr7b
Бизнес-центр КОБЗОН СИТИ (K-CITY)
в 5 мин. от метро Бауманская Помещения от 24,2 млн ₽ Потенциал роста стоимости от 40%.
БЦ TOP TOWER
Дог. 01/15-10/2025
ООО «ТПУ «СИТИ 2»
Инн: 9710080053
Токен: 2W5zFHw8dRB
Top Tower - новый офисный небоскреб в Москва-Сити
Плавная бионическая форма фасада. Благоустроенная территория. Премиальное качество. Рассрочка 0%
БЦ ONE

ООО "СЗ "Т2-Девелопмент"
Инн: 9715447749
Токен: 2W5zFJUG2rV
БЦ One — офисы премиум класса в центре Москвы
Оригинальная архитектура. Современный ландшафтный дизайн. Премиальная локация. Все в одном. Рассрочка 0%
БЦ «АВИУМ»

ООО «Неоагентство»
Инн: 9703176621
Токен: 2W5zFJHrmxM
Офисы класса А от 29 млн ₽. Скидка 3%.
Бизнес-центр АВИУМ с беспроцентной рассрочкой до РНВ. Офисы класса А от 321 тыс. ₽/м². Собственный зеленый парк площадью 1,2 Га. Панорамные виды. Рядом ТРЦ "Авиапарк" и "ВЭБ Арена".
БЦ OPUS

ООО СЗ "ОПУС"
Инн: 7841050517
Токен: 2W5zFHjA1Xo
Бизнес-центр ОПУС на Дербеневской набережной. Сдача в 2026.
Премиальные офисы класса «А». Панорамное остекление и потолки до 8м. 2 мин. до Садового
БЦ МАУНТ

ООО «СПЕЦИАЛИЗИРОВАННЫЙ ЗАСТРОЙЩИК «СФЕРА»
Инн: 5030084705
Токен: 2W5zFJVs5FP
МАУНТ воркплейс. Увеличенная выгода до 15.05
МАУНТ воркплейс - офисы класса А от 180 800 ₽/м². Панорамные виды на Мещерский парк и город.
ЖК МЫС
ооо
ООО "СПЕЦИАЛИЗИРОВАННЫЙ ЗАСТРОЙЩИК "Б2-ДЕВЕЛОПМЕНТ"
Инн: 9710095229
Токен: 2W5zFHoih1T
Коммерческая недвижимость в ЖК МЫС
Лоты от 29 млн руб. 20 минут до Москва-Сити
Бизнес-центр Upside Останкино

ООО «СЗ «БЦ Апсайд Останкино»
Инн: 9715494040
Токен: 2W5zFGRo5sF
Бизнес-центр Upside Останкино
Имиджевые офисы от 44 м² от 320 000 ₽/м². Рядом с ТТК. Рассрочка 0% до конца строительства
ТРЦ Парк Молл

ООО «Л1-18»
Инн: 7810805334
Токен: 2W5zFHRLUk1
ТРЦ Парк Молл. Аренда от 1400 руб/кв.м
Аренда помещений для вашего бизнеса от 15.5 до 2 430 м2. Мы открылись!
БЦ BELL

ООО «Я-ДЕВЕЛОПМЕНТ»
Инн: 9710092813
Токен: 2W5zFFv1c9w
БЦ Bell — офисы Премиум класса на Белорусской
Для самых требовательных резидентов: экологичные инженерные решения, продуманная инфраструктура, футуристичный дизайн. Офисы от 194 м2. Этаж 1700 м2.Рассрочка 0%
БЦ SET
ооо
ООО СЗ Верейская
Инн: 9703146842
Токен: 2W5zFJj5ufw
БЦ SET — офисы класса “А” от 60 м2
Новый офисный комплекс в ЗАО. Индивидуальные офисные решения. Скидка до 8%
Бизнес Центр "Рэйл.А"

ООО "СЗ "ОРТИГА РЭЙЛ.А"
Инн: 7702735545
Токен: 2W5zFHAn45P
Камерный Бизнес Центр "Рэйл.А" Старт продаж БЦ класса "А" от 16,9 млн ₽
Офисы класса "А" в сердце Басманного района от застройщика. Авторская архитектура, дизайнерское лобби, панорамными виды. 5 минут до ТТК. 2 станции метро рядом. Ввод в 2026 году. Реализация по ДДУ
БЦ Upside-yamskaya

ООО «СЗ «Марьина роща»
Инн: 7715033085
Токен: 2W5zFJGXrg9
Upside Ямская - старт продаж. Офисы от 350 000 ₽/м²
Старт продаж. Премиальные офисы класса А от 65 м². 100 метров до ТТК. Рассрочка 0% до конца строительства.
БЦ ДЖЕНГА воркплейс

ООО «Вива Холдинг»
Инн: 9703154890
Токен: 2W5zFHaVrau
ДЖЕНГА воркплейс. Увеличенная выгода до 15.05.
ДЖЕНГА воркплейс - офисы класса А рядом с м. Щукинская.
БЦ AIR

ООО «СЗ «М-Девелопмент»
Инн: 9725093633
Токен: 2W5zFHtK3tm
Бизнес-центр Air
Выгода 5% до конца мая! Премиум-класс. 3 минуты от м. ЦСКА. Реализация по ДДУ.
БЦ Cityzen

ООО СЗ «Бизнес Контакт»
Инн: 7727435367
Токен: 2W5zFGRfhGm
БЦ Cityzen — офисный мультиквартал от MR Office
Современные офисы класса “А” в 1 минуте от метро Тушинская. Офисы от 74 до 1 686 м2. Гармоничное благоустройство в сочетании с архитектурой. Рассрочка 0%
КП Юсупово VILLAGE

ООО "НОВАЯ ЗЕМЛЯ"
Инн: 5009121263
Токен: 2W5zFJt8uN9
"Юсупово VILLAGE" КП бизнес-класса в г. Домодедово
УЧАСТКИ С ДОМАМИ В СТИЛЕ ШАЛЕ, ВИЛЛА, РАЙТ.
Главная Купить ПСН в Москве и МО Купить ПСН в округе Троицкий

Купить ПСН в округе Троицкий

— 9 предложений
Сортировка:
ID 1527349
ID 1128375
ID 875995
ID 479704
ID 874004
ID 877479
БЦ МАУНТ

ООО «СПЕЦИАЛИЗИРОВАННЫЙ ЗАСТРОЙЩИК «СФЕРА»
Инн: 5030084705
Токен: 2W5zFGZCMK7
БЦ МАУНТ
МАУНТ воркплейс Бизнес-центр класса А
Офисы класса А от 180 800 ₽/м²
Увеличенная выгода до 15.05
Москва, Боровское шоссе, 2а
Говорово
Говорово
Москва, Боровское шоссе, 2а
FORMA
Панорамные виды на Мещерский парк и город. ООО «СПЕЦИАЛИЗИРОВАННЫЙ ЗАСТРОЙЩИК «СФЕРА». ИНН 5030084705. Продажа осуществляется по ДКПБВ.
БЦ Cityzen

ООО СЗ «Бизнес Контакт»
Инн: 7727435367
Токен: 2W5zFGuqTdK
БЦ Cityzen
БЦ Cityzen — офисный мультиквартал от MR Office
Старт продаж
Рассрочка 0%
Москва, ул. Вишнёвая
Тушинская
Тушинская
Москва, ул. Вишнёвая
MR Office
Современные офисы класса “А” в 1 минуте от метро Тушинская. Офисы от 74 до 1 686 м2. Гармоничное благоустройство в сочетании с архитектурой
БЦ Upside Останкино

ООО «СЗ «БЦ Апсайд Останкино»
Инн: 9715494040
Токен: 2W5zFGXj2zd
БЦ Upside Останкино
Upside Останкино - старт продаж офисов класса «А»
Рассрочка 0%. Лизинг. Рядом с ТТК.
Имиджевые офисы от 44 м² от 320 000 ₽/м²
Москва, Огородный проезд, д 20
м.Фонвизинская - 5 мин.
м.Фонвизинская - 5 мин.
Москва, Огородный проезд, д 20
Upside Девелопмент
Upside Останкино - старт продаж офисов класса «А». Рассрочка 0%. Лизинг. Рядом с ТТК.
БЦ Upside Останкино
МФК ONE

ООО "СЗ "Т2-Девелопмент"
Инн: 9715447749
Токен: 2W5zFJYhzhX
МФК ONE
БЦ One — офисы премиум класса в центре Москвы
90 этажей
Все в одном. Рассрочка 0%
1-ый Красногвардейский пр 13
Москва-Сити
Москва-Сити
1-ый Красногвардейский пр 13
MR Office
Премиальная локация, оригинальная архитектура, современный ландшафтный дизайн
Особняк «Quartier d'Or»

АО «Специализированный застройщик «ГЕОПРИБОР»
Инн: 7705022285
Токен: 2W5zFJZtrVo
Особняк «Quartier d'Or»
В километре от Кремля!
Продается неоклассический особняк в Замоскворечье
Новое строительство. 1000 м2. Ключи в 2026 году.
Москва, ул. Большая Татарская
Третьяковская
Третьяковская
Москва, ул. Большая Татарская
Rariteco
В продаже новый неоклассический особняк в центре Москвы в Замоскворечье. Свободная планировка. 2 этажа + мансарда + технический этаж и подземный паркинг. Закрытая территория.
Особняк «Quartier d'Or»
БЦ АВИУМ

ООО «Неоагентство»
Инн: 9703176621
Токен: 2W5zFH99fkm
БЦ АВИУМ
Бизнес-центр АВИУМ на Зорге
Офисы класса А от 29 млн ₽. Скидка 3% на лоты.
Скидка 3% на офисы 30 мая!
ул 3-я Хорошёвская, д 18/2
Зорге
Зорге
ул 3-я Хорошёвская, д 18/2
Неометрия
Бизнес-центр АВИУМ с беспроцентной рассрочкой до РВЭ. Офисы класса А от 321 тыс. ₽/м². Собственный зеленый парк площадью 1,2 Га. Панорамные виды.
Бизнес Центр "Рэйл.А"

ООО "СЗ "ОРТИГА РЭЙЛ.А"
Инн: 7702735545
Токен: 2W5zFJkhHYm
Рэйл.А
Камерный Бизнес Центр "Рэйл.А" в Басманном районе
Офисы класса "А" от 16,9 млн рублей
5 минут до ТТК.  2 станции метро рядом
Переведеновский пер, вл13 ст11
Электрозаводская
Электрозаводская
Переведеновский пер, вл13 ст11
ORTIGA development
Офисы класса "А" в историческом центре. Авторская архитектура, дизайнерское лобби, панорамными виды, потолки 3,65 м. Реализация по ДДУ. Ввод в 2026 году.
БЦ SET
ооо
ООО «Специализированный застройщик «Верейская»
Инн: 9703146842
Токен: 2W5zFJrVr5f
БЦ SET
БЦ SET — офисы класса “А” от 60 м2
Старт продаж
Скидка до 8%
Москва, ул. Верейская
Кутузовский проспект
Кутузовский проспект
Москва, ул. Верейская
MR Office
Новый офисный комплекс в ЗАО. Индивидуальные офисные решения.
БЦ ДЖЕНГА воркплейс

ООО «Вива Холдинг»
Инн: 9703154890
Токен: 2W5zFHqKjQM
БЦ ДЖЕНГА воркплейс
ДЖЕНГА воркплейс - офисы класса А.
Бизнес-центр рядом с м. Щукинская.
Увеличенная выгода до 15.05.
Москва, пр.Полесский
Щукинская
Щукинская
Москва, пр.Полесский
FORMA
ООО «Вива Холдинг». ИНН 9703154890. Продажа осуществляется по ДКПБВ.
БЦ ДЖЕНГА воркплейс
БЦ TOP TOWER
Дог. 01/15-10/2025
ООО «ТПУ «СИТИ 2»
Инн: 9710080053
Токен: 2W5zFHxcchX
БЦ TOP TOWER
Top Tower - новый офисный небоскреб в Москва-Сити
Премиальное качество
Рассрочка 0%
Шелепихинский тупик 17
Москва-Сити
Москва-Сити
Шелепихинский тупик 17
MR Office
Плавная бионическая форма фасада. Благоустроенная территория. Премиальное качество
БЦ Upside Ямская

ООО «СЗ «Марьина роща»
Инн: 7715033085
Токен: 2W5zFJSumeZ
БЦ Upside Ямская
Upside Ямская - старт продаж. Офисы от 350 000 ₽/м²
Рассрочка 0% до конца строительства
100 метров до ТТК. Офисы для бизнеса и инвестиций
Москва, ул 2-я Ямская, влд. 9
Савеловская
Савеловская
Москва, ул 2-я Ямская, влд. 9
Upside Девелопмент
Upside Ямская - старт продаж премиальных офисов. 100 метров до ТТК. Офисы для бизнеса и инвестиций.
БЦ Upside Ямская
БЦ BELL

ООО «Я-ДЕВЕЛОПМЕНТ»
Инн: 9710092813
Токен: 2W5zFHUSrLy
БЦ BELL
БЦ Bell — офисы Премиум класса на Белорусской
Офисы от 194 м2. Этаж 1700 м2.
Рассрочка 0%
Москва
Белорусская
Белорусская
Москва
MR Office
Экологичные инженерные решения и продуманная инфраструктура для вашего бизнеса
БЦ «KOBZON CITY»

ООО «СЗ «ОКТЯБРЬ В САО»
Инн: 9729336630
Токен: 2W5zFJGG53P
БЦ КОБЗОН СИТИ
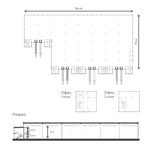
Бизнес-центр КОБЗОН СИТИ в 5 мин. от м. Бауманская
Помещения от 24,2 млн ₽
Потенциал роста стоимости от 40%
Москва, ул.Бауманская, д.11, стр.7
Бауманская
Бауманская
Москва, ул.Бауманская, д.11, стр.7
October Group
Широкий выбор офисов от 36 до 10.000 м2. Рядом 2 станции метро, 1 мин. до ТТК. Потолки 3,65 м, панорамное остекление, современная инженерия, центральное кондиционирование.
БЦ КОБЗОН СИТИ
БЦ AIR

ООО «СЗ «М-Девелопмент»
Инн: 9725093633
Токен: 2W5zFHxm1jo
БЦ AIR
Бизнес-центр AIR. Выгода 5% до конца мая!
Премиум-класс на Ходынском поле
3 минуты от м. ЦСКА. Реализация по ДДУ.
Москва, ул. Авиаконструктора Микояна
ЦСКА
ЦСКА
Москва, ул. Авиаконструктора Микояна
TEKTA GROUP
Новый деловой кластер с авторской архитектурой и панорамными видами. Доступ по FaceID и QR. Широкая вариативность планировок: от небольших офисов до здания целиком. Подземный паркинг на 490 машин.
БЦ OPUS

ООО СЗ "ОПУС"
Инн: 7841050517
Токен: 2W5zFHVp7zh
БЦ OPUS
Премиальный бизнес-центр ОПУС на Дербеневской наб.
2-й по величине деловой кластер Москвы
Сдача в 2026г. Рассрочка 0%. Потолки от 3,8 до 8м
Москва, ЮАО
Павелецкая
Павелецкая
Москва, ЮАО
Pioneer
РЕКЛАМА. РЕКЛАМОДАТЕЛЬ И ЗАСТРОЙЩИК ООО СЗ "ОПУС". ИНН: 7841050517. ПРОЕКТНАЯ ДЕКЛАРАЦИЯ НА САЙТЕ НАШ.ДОМ.РФ
ЖК МЫС
ооо
ООО "СПЕЦИАЛИЗИРОВАННЫЙ ЗАСТРОЙЩИК "Б2-ДЕВЕЛОПМЕНТ"
Инн: 9710095229
Токен: 2W5zFHrgfa9
ЖК МЫС
Коммерческая недвижимость в ЖК МЫС
Премиальный загородный проект
Скидка до 15%
Москва, М-1 Беларусь, 37-й километр
Москва, М-1 Беларусь, 37-й километр
MR Group
Лоты от 29 млн руб. 20 минут до Москва-Сити
ID 874019
ID 1318124
ID 1856981
Лидеры рынка
Продажа помещений свободного назначения в округе Троицкий. Для вас отобраны актуальные объявления от собственника, агентства, застройщика, управляющей компанией и агрегатора – без комиссий и посредников. Объявления представлены с подробным описанием, параметрами и фотографиями, имеют площадь от 79 м² до 75000 м², по цене от 15.9 млн. Воспользуйтесь фильтрами для быстрого поиска и подбора объектов.