Купить ПСН 3184 м²
ID 1318124
Цена
444 359 040 ₽
Ставка
139 560 ₽ / м²
Площадь
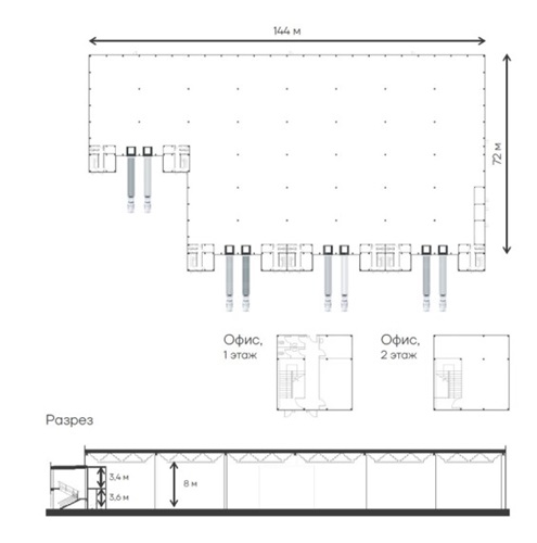
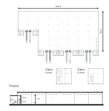
3184 м²
Этаж
1 из -
ИФНС
7751
агентство недвижимости
г Москва, Внуково р-н
На карте
Описание
🔥 Продажа СОВРЕМЕННОГО промышленного комплекса с_callable_ складом и офисами в элитном корпусе Light Industrial A!
Сдача третей очереди 3 квартал 2026 года
Описание:
📌 ТОП-предложение для бизнеса: производственно-складская площадка + офисные блоки ПОД КЛЮЧ в престижном комплексе.
💥 Гибкий формат: площади от 812 м² до 3184 м² целиком. Конфигурации под ваши цели — деление по шагу колонн, разделение на склад/производство/офис. Типы погрузки - доки на уровне 1,2 м от земли, с докшелтерами и доклевеллерами и/или ворота на уровне земли, кросс-док. Технические характеристики помещения:Электроснабжение - от 30 Вт/м2Рабочая высота потолков в промышленном помещении - 8 мШаг колонн 12х18 м ёБетонный пол с антипылевым покрытием, нагрузка 5 тонн/кв.м 🌟 ОФИСНАЯ ЧАСТЬ:
- 🏢 Формат: 2-уровневые блоки от 153 м².
- 🚪 Изолированный вход с улицы для приватности.
- 🎨 Готовая отделка в стиле Loft, высокие потолки, открытые планировки.
- 🔥 Система спринклерного пожаротушения.
- 📏 Перегородки из трёхслойных сэндвич-панелей — звукоизоляция и уют.
Расположение:
📍 Впечатляющая транспортная логистика: 15 минут до СК и 5 минут до деловых районов. Рядом МКАД, ТТК и ТЦ.
Коммуникации:
⚡ Дублированная электросеть с выделенными мощностями до 800 кВт.
💧 Центральные водопровод и канализация.
🧯 Мощная противопожарная система с автоматическим оповещением.
Парковка:
🛞 20+ машиномест для сотрудников и партнёров. Бесплатные и VIP-зоны.
Земельный участок:
🌎 1,2 Га в собственности 📄! Разрешённый вид: коммерческая недвижимость + расширение. Возможна реконструкция, добавление ангаров или логистических терминалов.
Дополнительно:
📦 Закрытая охраняемая территория 24/7.
🚍 Аренда телефонных будок, бронирование площадей.
🎓 Консультации по электромонтажу и согласованию проектов.
Схема сделки:
💼 От собственника, без скрытых платежей! Быстрая регистрация: готовые документы по ЭГРН. Возможен Trade-in 🏗️.
🚀 Не упусти шанс!
Звоните уже сейчас — 📲 [кнопка "Связаться"] или ✉️ [кнопка "Запросить допы"]!
Организуем VIP-показ в течение 2 часов 🕐.
### Дополнительно:
Почему выгодно?
✔️ Развитая инфраструктура: инженерные решения «под ключ», готов к запуску производства.
✔️ Современный корпус Light Industrial A: минимум бюрократии, максимум возможностей.
#promышленнаянедвижимость #склад #офисмосква #производствоХимки #бизнесцентры #арендателефон
Текст адаптирован под высокую релевантность в поисковых системах и лаконичное восприятие — с акцентами на преимущества и эксклюзивность! Объект №3100-975155.
Сдача третей очереди 3 квартал 2026 года
Описание:
📌 ТОП-предложение для бизнеса: производственно-складская площадка + офисные блоки ПОД КЛЮЧ в престижном комплексе.
💥 Гибкий формат: площади от 812 м² до 3184 м² целиком. Конфигурации под ваши цели — деление по шагу колонн, разделение на склад/производство/офис. Типы погрузки - доки на уровне 1,2 м от земли, с докшелтерами и доклевеллерами и/или ворота на уровне земли, кросс-док. Технические характеристики помещения:Электроснабжение - от 30 Вт/м2Рабочая высота потолков в промышленном помещении - 8 мШаг колонн 12х18 м ёБетонный пол с антипылевым покрытием, нагрузка 5 тонн/кв.м 🌟 ОФИСНАЯ ЧАСТЬ:
- 🏢 Формат: 2-уровневые блоки от 153 м².
- 🚪 Изолированный вход с улицы для приватности.
- 🎨 Готовая отделка в стиле Loft, высокие потолки, открытые планировки.
- 🔥 Система спринклерного пожаротушения.
- 📏 Перегородки из трёхслойных сэндвич-панелей — звукоизоляция и уют.
Расположение:
📍 Впечатляющая транспортная логистика: 15 минут до СК и 5 минут до деловых районов. Рядом МКАД, ТТК и ТЦ.
Коммуникации:
⚡ Дублированная электросеть с выделенными мощностями до 800 кВт.
💧 Центральные водопровод и канализация.
🧯 Мощная противопожарная система с автоматическим оповещением.
Парковка:
🛞 20+ машиномест для сотрудников и партнёров. Бесплатные и VIP-зоны.
Земельный участок:
🌎 1,2 Га в собственности 📄! Разрешённый вид: коммерческая недвижимость + расширение. Возможна реконструкция, добавление ангаров или логистических терминалов.
Дополнительно:
📦 Закрытая охраняемая территория 24/7.
🚍 Аренда телефонных будок, бронирование площадей.
🎓 Консультации по электромонтажу и согласованию проектов.
Схема сделки:
💼 От собственника, без скрытых платежей! Быстрая регистрация: готовые документы по ЭГРН. Возможен Trade-in 🏗️.
🚀 Не упусти шанс!
Звоните уже сейчас — 📲 [кнопка "Связаться"] или ✉️ [кнопка "Запросить допы"]!
Организуем VIP-показ в течение 2 часов 🕐.
### Дополнительно:
Почему выгодно?
✔️ Развитая инфраструктура: инженерные решения «под ключ», готов к запуску производства.
✔️ Современный корпус Light Industrial A: минимум бюрократии, максимум возможностей.
#promышленнаянедвижимость #склад #офисмосква #производствоХимки #бизнесцентры #арендателефон
Текст адаптирован под высокую релевантность в поисковых системах и лаконичное восприятие — с акцентами на преимущества и эксклюзивность! Объект №3100-975155.
Расположение
г Москва, Внуково р-н
Технические характеристики
Параметры
Статус владельца объявления
агентство
Отделка
без отделки
Новость дня
Расширение возможностей для B2B-клиентов: Avito вводит новые услуги для строительства складов
На платформе Авито теперь доступна категория "Коммерческое строительство" в сегменте услуг, предлагающая широкий выбор специализированных работ и возведение объектов "под ключ" для бизнеса, что упрощает поиск подрядчиков и субподрядчиков для коммерческих проектов.
Все новости
Сегодня — 4 мая, понедельник / Москва
Вложения в недвижимость России за первую половину текущего года составили 169,5 миллиарда рублей.
Сегодня — 4 мая, понедельник / Москва
Российский складской рынок продолжает расти: площадь складских помещений превысит 60 млн кв. м к концу 2026 года
Сегодня — 4 мая, понедельник / Москва
"Компания "Галс-Девелопмент" получила одобрение на строительство делового центра "Дубининский"."
Сегодня — 4 мая, понедельник / Москва
Инвестиционный фонд "Бумеранг Капитал" стал владельцем половины сети кофеен "Цех 85"
Сегодня — 4 мая, понедельник / Краснодарский
В Анапе откроется первый отель с инновационными IT-сервисами
Сегодня — 4 мая, понедельник / Москва
Планируется строительство торгового центра площадью свыше 6 тыс. кв. м в Краснопахорском районе Москвы.
Сегодня — 4 мая, понедельник / Москва
Смена собственника у клубов «Дикая орхидея» и «Дефиле»
Сегодня — 4 мая, понедельник / Вологодская
"Прекращена деятельность "наливаек" и магазинов электронных сигарет в Вологодской области"
Сегодня — 4 мая, понедельник / Москва
"Exeed перемещает производство из Подмосковья на площадку АГР в Шушарах"
Сегодня — 4 мая, понедельник / Москва
На юге Москвы запланировано строительство ТПУ "Кленовый бульвар" на площади 2 гектара.
30 апреля, четверг / Москва
"Бумеранг Капитал" увеличил свою долю в сети кафе-пекарен "Цех 85" до 50%
30 апреля, четверг / Ставропольский
В Кисловодске начался проект строительства инвестиционного отеля "Реликт"
30 апреля, четверг / Москва
Ресторан «Долина 5165» и магазин Sokolov теперь доступны посетителям ТРЦ Avenue Sever
30 апреля, четверг / Москва
"Новый флагманский магазин под названием «Флаувау» открыл свои двери на Мясницкой улице"
30 апреля, четверг / Москва
"Уровень вакансии на складах в Московском регионе достиг 5,4% из-за увеличения предложений по субаренде"
30 апреля, четверг / Москва
"Прогнозируется незначительный прирост числа туристов в первом квартале 2026 года - всего 2,8%"
30 апреля, четверг / Москва
Компания "Ориентир" планирует вложить до 150 млрд рублей в расширение бизнеса и развитие новых секторов.
30 апреля, четверг / Москва
"Завершено строительство наземной парковки на 400 автомобильных мест в парке «Ривер Парк Коломенское»"
30 апреля, четверг / Москва
Скорось открытия новых магазинов «Лэтуаль» снизится - 150 точек закроются к 2026 году.
30 апреля, четверг / Москва
Смайл-бар сети "Белая точка" теперь доступен посетителям ТЦ "Левел Причальный"