Описание
Предложение на продажу № 61354.
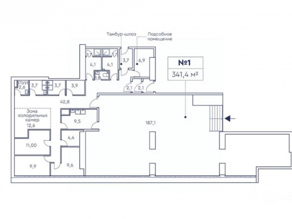
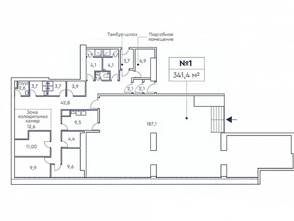
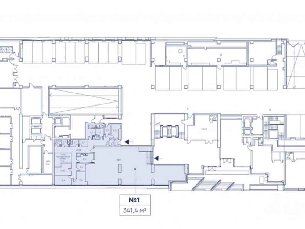
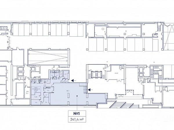
Продается помещение свободного назначения 341,4 кв.м. в премиальном RED 7 на Садовом кольце. 1-я линия проспекта Академика Сахарова и Садового кольца.
.
. Продажа по ДКП с НДС. Или возможность зачета НДС.
. Возможна льготная ипотека от Дом РФ.
.
. ХАРАКТЕРИСТИКИ помещения:
. - вход в зоне просторного вестибюля, выходящего на проспект Ак. Сахаров,
. - рядом расположены лестница и лифт, ведущие в торговую галерею,
. - выделенная мощность – 0,25 кВт/м²,
. - высота потолков – 3,55 м,
. - современные системы вентиляции, кондиционирования, пожаротушения, дымоудаления, отвечающие всем нормам действующего законодательства.
.
. ПРЕИМУЩЕСТВА:
. - Премиальный комплекс RED7 в центре Москвы.
. - Удобный выезд на Садовое кольцо и транспортная доступность.
. - Интенсивные автомобильный и пеший трафик, платежеспособная аудитория.
. - В шаговой доступности 4 станции метро - Сухаревская (700 м), Комсомольская (730 м), Красные ворота (450 м), Сретенский бульвар (700м).
.
. В апарт-комплексе RED7 располагаются ресторан "Кофемания", кофейня международного класса "Serf coffe", премиальный фитнес-клуб "World Clacc". В первичную зону охвата в радиусе 1 км от МФК RED7 попадает 4 жилых квартала, в которых проживает порядка 41 тыс. человек. А также офисно-деловой кластер: бизнес-центры «Домников», «Орликов Плаза», административное здание на ул. Маши Порываевой и др.
Торговая недвижимость, Street Retail. 1 линия домов. Место для рекламы. Зона разгрузки. Проходное и проездное место.
Без комиссии.
Продается помещение свободного назначения 341,4 кв.м. в премиальном RED 7 на Садовом кольце. 1-я линия проспекта Академика Сахарова и Садового кольца.
.
. Продажа по ДКП с НДС. Или возможность зачета НДС.
. Возможна льготная ипотека от Дом РФ.
.
. ХАРАКТЕРИСТИКИ помещения:
. - вход в зоне просторного вестибюля, выходящего на проспект Ак. Сахаров,
. - рядом расположены лестница и лифт, ведущие в торговую галерею,
. - выделенная мощность – 0,25 кВт/м²,
. - высота потолков – 3,55 м,
. - современные системы вентиляции, кондиционирования, пожаротушения, дымоудаления, отвечающие всем нормам действующего законодательства.
.
. ПРЕИМУЩЕСТВА:
. - Премиальный комплекс RED7 в центре Москвы.
. - Удобный выезд на Садовое кольцо и транспортная доступность.
. - Интенсивные автомобильный и пеший трафик, платежеспособная аудитория.
. - В шаговой доступности 4 станции метро - Сухаревская (700 м), Комсомольская (730 м), Красные ворота (450 м), Сретенский бульвар (700м).
.
. В апарт-комплексе RED7 располагаются ресторан "Кофемания", кофейня международного класса "Serf coffe", премиальный фитнес-клуб "World Clacc". В первичную зону охвата в радиусе 1 км от МФК RED7 попадает 4 жилых квартала, в которых проживает порядка 41 тыс. человек. А также офисно-деловой кластер: бизнес-центры «Домников», «Орликов Плаза», административное здание на ул. Маши Порываевой и др.
Торговая недвижимость, Street Retail. 1 линия домов. Место для рекламы. Зона разгрузки. Проходное и проездное место.
Без комиссии.
Расположение
г Москва, пр-кт Академика Сахарова, д 7
Красные ворота
Сретенский бульвар
—
6 мин
Чистые пруды
—
6 мин
Технические характеристики
Параметры
Статус владельца объявления
агентство
Свободные помещения в ЖК RED 7
Новость дня
Расширение возможностей для B2B-клиентов: Avito вводит новые услуги для строительства складов
На платформе Авито теперь доступна категория "Коммерческое строительство" в сегменте услуг, предлагающая широкий выбор специализированных работ и возведение объектов "под ключ" для бизнеса, что упрощает поиск подрядчиков и субподрядчиков для коммерческих проектов.
Все новости
Вчера — 30 апреля, четверг / Москва
"Бумеранг Капитал" увеличил свою долю в сети кафе-пекарен "Цех 85" до 50%
Вчера — 30 апреля, четверг / Ставропольский
В Кисловодске начался проект строительства инвестиционного отеля "Реликт"
Вчера — 30 апреля, четверг / Москва
Ресторан «Долина 5165» и магазин Sokolov теперь доступны посетителям ТРЦ Avenue Sever
Вчера — 30 апреля, четверг / Москва
"Новый флагманский магазин под названием «Флаувау» открыл свои двери на Мясницкой улице"
Вчера — 30 апреля, четверг / Москва
"Уровень вакансии на складах в Московском регионе достиг 5,4% из-за увеличения предложений по субаренде"
Вчера — 30 апреля, четверг / Москва
"Прогнозируется незначительный прирост числа туристов в первом квартале 2026 года - всего 2,8%"
Вчера — 30 апреля, четверг / Москва
Компания "Ориентир" планирует вложить до 150 млрд рублей в расширение бизнеса и развитие новых секторов.
Вчера — 30 апреля, четверг / Москва
"Завершено строительство наземной парковки на 400 автомобильных мест в парке «Ривер Парк Коломенское»"
Вчера — 30 апреля, четверг / Москва
Скорось открытия новых магазинов «Лэтуаль» снизится - 150 точек закроются к 2026 году.
Вчера — 30 апреля, четверг / Москва
Смайл-бар сети "Белая точка" теперь доступен посетителям ТЦ "Левел Причальный"
29 апреля, среда / Москва
Московский цех открыл производство 3D-принтеров для металлической печати.
29 апреля, среда / Москва
БМ-банк завершил продажу большей части площадей в ТЦ «Весна» на Новом Арбате.
29 апреля, среда / Москва
Перефразированное название: "Сеть магазинов 'Жизньмарт' возобновляет свою деятельность в Челябинске"
29 апреля, среда / Санкт-Петербург
Сервисный офис «Практик» начал свою работу на Октябрьской набережной в Санкт-Петербурге.
29 апреля, среда / Санкт-Петербург
Строительство складских помещений в Санкт-Петербурге и Ленинградской области увеличилось в 2,5 раза.
29 апреля, среда / Москва
Москва увеличила объем строительства в рамках программы МПТ до 9,5 миллионов квадратных метров
29 апреля, среда / Санкт-Петербург
Соседский центр "ЖИВИ Клуб" открыл свои двери в Новоселье
29 апреля, среда / Москва
"Завершено строительство пятиэтажной наземной парковки в районе Нагатинский Затон"
29 апреля, среда / Санкт-Петербург
Рекордный уровень строительства складов зафиксирован в Санкт-Петербурге и Ленинградской области
29 апреля, среда / Москва
Аренда складов в Москве снизилась на 25%