Купить торговое помещение 237 м² в БЦ Danilov Plaza
Описание
Предложение на продажу № 60981.
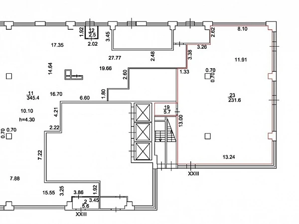
Продажа помещения 237,3 м2, 1 этаж БЦ «Danilov Plaza» - ГАБ Ресторан "ProLunch" по адресу: Новоданиловская наб. дом 6к1.
. Шаговая доступность от ст.м. "Тульская", "Верхние Котлы", "Нагатинская", "Зил". Дорогой ремонт, помещение в отличном состоянии! Панорамные окна, высота 4 м. Есть технологическая вентиляция. Развитая инфраструктура, большой трафик, рядом находится БЦ "Даниловская Мануфактура".
.
. Арендатор ProLunch (Ресторан, столовая)
. Долгосрочный договор аренды на 10 лет (до января 2029г.)
. МАП 770.000 руб. (без НДС)
. Ежегодная индексация 9%.
Торговая недвижимость, Street Retail. 1 линия домов. Ресторанная вытяжка. Витрины. Место для рекламы. Проходное и проездное место.
Арендный бизнес. Окупаемость c индексацией: 9 лет и 3 меc. Ежегодная индексация: 9%. По первому году: 13 лет и 7 меc. Доходность c индексацией: 10.81%. Доходность c индексацией: 10.81%. По первому году: 7.36%. Присутствует арендатор: Ресторан ProLunch. Срок договора: 10 лет.
Без комиссии.
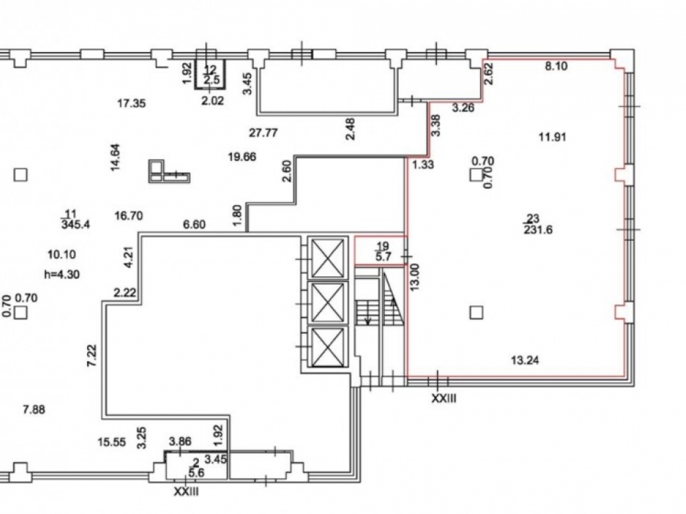
Продажа помещения 237,3 м2, 1 этаж БЦ «Danilov Plaza» - ГАБ Ресторан "ProLunch" по адресу: Новоданиловская наб. дом 6к1.
. Шаговая доступность от ст.м. "Тульская", "Верхние Котлы", "Нагатинская", "Зил". Дорогой ремонт, помещение в отличном состоянии! Панорамные окна, высота 4 м. Есть технологическая вентиляция. Развитая инфраструктура, большой трафик, рядом находится БЦ "Даниловская Мануфактура".
.
. Арендатор ProLunch (Ресторан, столовая)
. Долгосрочный договор аренды на 10 лет (до января 2029г.)
. МАП 770.000 руб. (без НДС)
. Ежегодная индексация 9%.
Торговая недвижимость, Street Retail. 1 линия домов. Ресторанная вытяжка. Витрины. Место для рекламы. Проходное и проездное место.
Арендный бизнес. Окупаемость c индексацией: 9 лет и 3 меc. Ежегодная индексация: 9%. По первому году: 13 лет и 7 меc. Доходность c индексацией: 10.81%. Доходность c индексацией: 10.81%. По первому году: 7.36%. Присутствует арендатор: Ресторан ProLunch. Срок договора: 10 лет.
Без комиссии.
Расположение
г Москва, наб Новоданиловская, д 6 к 1
Тульская
—
17 мин
Верхние Котлы
—
12 мин
ЗИЛ
—
18 мин
Технические характеристики
Параметры
Статус владельца объявления
агентство
Свободные помещения в БЦ Danilov Plaza
Новость дня
Расширение возможностей для B2B-клиентов: Avito вводит новые услуги для строительства складов
На платформе Авито теперь доступна категория "Коммерческое строительство" в сегменте услуг, предлагающая широкий выбор специализированных работ и возведение объектов "под ключ" для бизнеса, что упрощает поиск подрядчиков и субподрядчиков для коммерческих проектов.
Все новости
Вчера — 30 апреля, четверг / Москва
"Бумеранг Капитал" увеличил свою долю в сети кафе-пекарен "Цех 85" до 50%
Вчера — 30 апреля, четверг / Ставропольский
В Кисловодске начался проект строительства инвестиционного отеля "Реликт"
Вчера — 30 апреля, четверг / Москва
Ресторан «Долина 5165» и магазин Sokolov теперь доступны посетителям ТРЦ Avenue Sever
Вчера — 30 апреля, четверг / Москва
"Новый флагманский магазин под названием «Флаувау» открыл свои двери на Мясницкой улице"
Вчера — 30 апреля, четверг / Москва
"Уровень вакансии на складах в Московском регионе достиг 5,4% из-за увеличения предложений по субаренде"
Вчера — 30 апреля, четверг / Москва
"Прогнозируется незначительный прирост числа туристов в первом квартале 2026 года - всего 2,8%"
Вчера — 30 апреля, четверг / Москва
Компания "Ориентир" планирует вложить до 150 млрд рублей в расширение бизнеса и развитие новых секторов.
Вчера — 30 апреля, четверг / Москва
"Завершено строительство наземной парковки на 400 автомобильных мест в парке «Ривер Парк Коломенское»"
Вчера — 30 апреля, четверг / Москва
Скорось открытия новых магазинов «Лэтуаль» снизится - 150 точек закроются к 2026 году.
Вчера — 30 апреля, четверг / Москва
Смайл-бар сети "Белая точка" теперь доступен посетителям ТЦ "Левел Причальный"
29 апреля, среда / Москва
Московский цех открыл производство 3D-принтеров для металлической печати.
29 апреля, среда / Москва
БМ-банк завершил продажу большей части площадей в ТЦ «Весна» на Новом Арбате.
29 апреля, среда / Москва
Перефразированное название: "Сеть магазинов 'Жизньмарт' возобновляет свою деятельность в Челябинске"
29 апреля, среда / Санкт-Петербург
Сервисный офис «Практик» начал свою работу на Октябрьской набережной в Санкт-Петербурге.
29 апреля, среда / Санкт-Петербург
Строительство складских помещений в Санкт-Петербурге и Ленинградской области увеличилось в 2,5 раза.
29 апреля, среда / Москва
Москва увеличила объем строительства в рамках программы МПТ до 9,5 миллионов квадратных метров
29 апреля, среда / Санкт-Петербург
Соседский центр "ЖИВИ Клуб" открыл свои двери в Новоселье
29 апреля, среда / Москва
"Завершено строительство пятиэтажной наземной парковки в районе Нагатинский Затон"
29 апреля, среда / Санкт-Петербург
Рекордный уровень строительства складов зафиксирован в Санкт-Петербурге и Ленинградской области
29 апреля, среда / Москва
Аренда складов в Москве снизилась на 25%