Купить ПСН 148 м² в бизнес-квартале Прокшино
ID 1342539
Цена
79 268 096 ₽
Ставка
535 595 ₽ / м²
Площадь
148 м²
Этаж
1 из -
ИФНС
7751
агентство недвижимости
г Москва, Сосенское п, кв-л 35, д 10
На карте
Прокшино
Филатов луг
—
26 мин
Коммунарка
—
31 мин
Описание
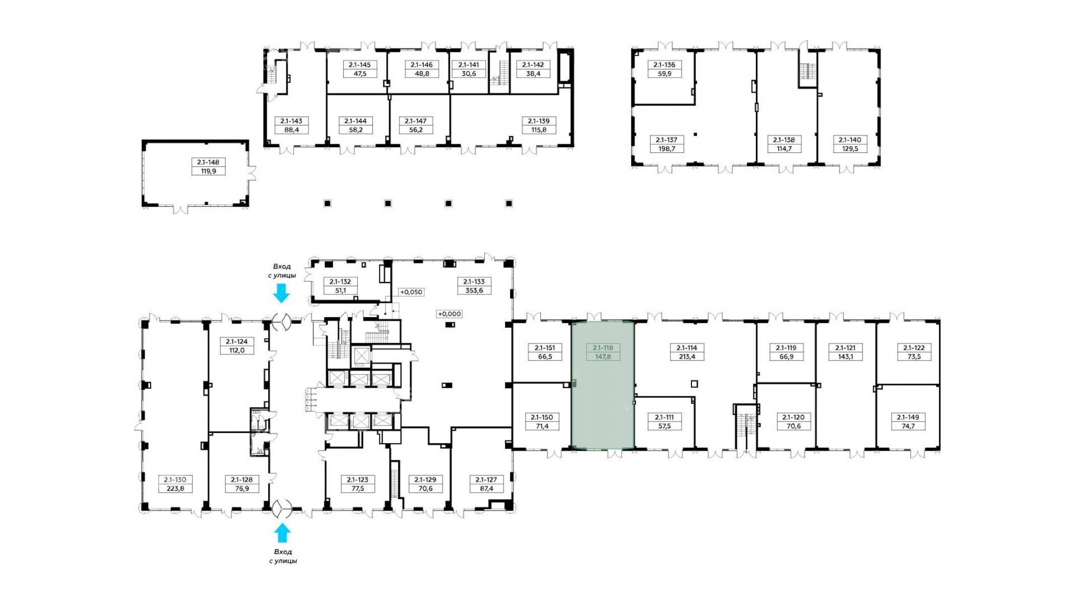
Лот №642581 Делимся комиссией с коллегами! Предлагается к продаже помещение площадью 147,8 м² на первом этаже бизнес-квартала «Прокшино» в Новой Москве. Объект подходит для размещения офиса, представительства, штаб-квартиры, IT- или медиакомпании, а также может быть использован как часть бизнес-центра.
Здание общей площадью 35 544 м² включает 21 093 м² офисных и 2 334 м² торговых площадей. Высота потолков достигает 3,4 м, а в представительских офисах — до 4,9 м. Для удобства предусмотрена парковка: 137 машино-мест в подземном паркинге и 174 гостевых места наземно.
Бизнес-квартал «Прокшино» относится к классу «А» и отличается уникальной архитектурой, современными инженерными решениями и высокой энергоэффективностью. В здании установлена BMS-система, центральное кондиционирование, приточно-вытяжная вентиляция с очисткой воздуха. Панорамные виды, представительские офисы с террасами до 743 м², собственная благоустроенная территория с пешеходной улицей, кафе и стрит-ритейлом дополняют преимущества объекта. Инфраструктура включает лобби, beauty-bar, коворкинги, конференц-зоны, электрозарядки, вип-лифты, кладовые, серверные помещения и мокрые точки в офисах.
Локация обеспечивает отличную транспортную доступность: 1 минута пешком от станции метро «Прокшино», удобный выезд на Киевское и Калужское шоссе, 15 минут до аэропорта Внуково. Рядом расположены жилые комплексы «Прокшино» и «Испанские кварталы» с населением более 58 000 человек. Объект входит в состав мультифункционального городского кластера с развитой жилой, деловой и спортивной инфраструктурой.
Срок сдачи объекта запланирован на III квартал 2026 года.
Чтобы получить ПОДРОБНУЮ ПРЕЗЕНТАЦИЮ С ПЛАНИРОВКОЙ И ФОТОГРАФИЯМИ на этот объект, звоните. Высылаем в течение 15 минут по запросу!
Уважаемые коллеги, мы работаем по этому объекту с посредниками и делимся комиссией в соответствии с нашей партнерской программой!
☎ Конт. лицо: НОВОСТРОЙКИ , доб. 211, ЛОТ №642581
Здание общей площадью 35 544 м² включает 21 093 м² офисных и 2 334 м² торговых площадей. Высота потолков достигает 3,4 м, а в представительских офисах — до 4,9 м. Для удобства предусмотрена парковка: 137 машино-мест в подземном паркинге и 174 гостевых места наземно.
Бизнес-квартал «Прокшино» относится к классу «А» и отличается уникальной архитектурой, современными инженерными решениями и высокой энергоэффективностью. В здании установлена BMS-система, центральное кондиционирование, приточно-вытяжная вентиляция с очисткой воздуха. Панорамные виды, представительские офисы с террасами до 743 м², собственная благоустроенная территория с пешеходной улицей, кафе и стрит-ритейлом дополняют преимущества объекта. Инфраструктура включает лобби, beauty-bar, коворкинги, конференц-зоны, электрозарядки, вип-лифты, кладовые, серверные помещения и мокрые точки в офисах.
Локация обеспечивает отличную транспортную доступность: 1 минута пешком от станции метро «Прокшино», удобный выезд на Киевское и Калужское шоссе, 15 минут до аэропорта Внуково. Рядом расположены жилые комплексы «Прокшино» и «Испанские кварталы» с населением более 58 000 человек. Объект входит в состав мультифункционального городского кластера с развитой жилой, деловой и спортивной инфраструктурой.
Срок сдачи объекта запланирован на III квартал 2026 года.
Чтобы получить ПОДРОБНУЮ ПРЕЗЕНТАЦИЮ С ПЛАНИРОВКОЙ И ФОТОГРАФИЯМИ на этот объект, звоните. Высылаем в течение 15 минут по запросу!
Уважаемые коллеги, мы работаем по этому объекту с посредниками и делимся комиссией в соответствии с нашей партнерской программой!
☎ Конт. лицо: НОВОСТРОЙКИ , доб. 211, ЛОТ №642581
Расположение
г Москва, Сосенское п, кв-л 35, д 10
Прокшино
Филатов луг
—
26 мин
Коммунарка
—
31 мин
Технические характеристики
Параметры
Статус владельца объявления
агентство
Класс
a
Свободные помещения в Бизнес-квартал Прокшино
Новость дня
Расширение возможностей для B2B-клиентов: Avito вводит новые услуги для строительства складов
На платформе Авито теперь доступна категория "Коммерческое строительство" в сегменте услуг, предлагающая широкий выбор специализированных работ и возведение объектов "под ключ" для бизнеса, что упрощает поиск подрядчиков и субподрядчиков для коммерческих проектов.
Все новости
Вчера — 30 апреля, четверг / Москва
"Бумеранг Капитал" увеличил свою долю в сети кафе-пекарен "Цех 85" до 50%
Вчера — 30 апреля, четверг / Ставропольский
В Кисловодске начался проект строительства инвестиционного отеля "Реликт"
Вчера — 30 апреля, четверг / Москва
Ресторан «Долина 5165» и магазин Sokolov теперь доступны посетителям ТРЦ Avenue Sever
Вчера — 30 апреля, четверг / Москва
"Новый флагманский магазин под названием «Флаувау» открыл свои двери на Мясницкой улице"
Вчера — 30 апреля, четверг / Москва
"Уровень вакансии на складах в Московском регионе достиг 5,4% из-за увеличения предложений по субаренде"
Вчера — 30 апреля, четверг / Москва
"Прогнозируется незначительный прирост числа туристов в первом квартале 2026 года - всего 2,8%"
Вчера — 30 апреля, четверг / Москва
Компания "Ориентир" планирует вложить до 150 млрд рублей в расширение бизнеса и развитие новых секторов.
Вчера — 30 апреля, четверг / Москва
"Завершено строительство наземной парковки на 400 автомобильных мест в парке «Ривер Парк Коломенское»"
Вчера — 30 апреля, четверг / Москва
Скорось открытия новых магазинов «Лэтуаль» снизится - 150 точек закроются к 2026 году.
Вчера — 30 апреля, четверг / Москва
Смайл-бар сети "Белая точка" теперь доступен посетителям ТЦ "Левел Причальный"
29 апреля, среда / Москва
Московский цех открыл производство 3D-принтеров для металлической печати.
29 апреля, среда / Москва
БМ-банк завершил продажу большей части площадей в ТЦ «Весна» на Новом Арбате.
29 апреля, среда / Москва
Перефразированное название: "Сеть магазинов 'Жизньмарт' возобновляет свою деятельность в Челябинске"
29 апреля, среда / Санкт-Петербург
Сервисный офис «Практик» начал свою работу на Октябрьской набережной в Санкт-Петербурге.
29 апреля, среда / Санкт-Петербург
Строительство складских помещений в Санкт-Петербурге и Ленинградской области увеличилось в 2,5 раза.
29 апреля, среда / Москва
Москва увеличила объем строительства в рамках программы МПТ до 9,5 миллионов квадратных метров
29 апреля, среда / Санкт-Петербург
Соседский центр "ЖИВИ Клуб" открыл свои двери в Новоселье
29 апреля, среда / Москва
"Завершено строительство пятиэтажной наземной парковки в районе Нагатинский Затон"
29 апреля, среда / Санкт-Петербург
Рекордный уровень строительства складов зафиксирован в Санкт-Петербурге и Ленинградской области
29 апреля, среда / Москва
Аренда складов в Москве снизилась на 25%