Снять склад 3600 м²
ID 1418772
Цена
3 542 000 ₽/мес
Ставка
11 807 ₽ / м² / год
Площадь
3600 м²
Класс
не указан
Этаж
2 из -
ИФНС
7727
агентство недвижимости
г Москва, ул Поляны, д 73
На карте
Описание
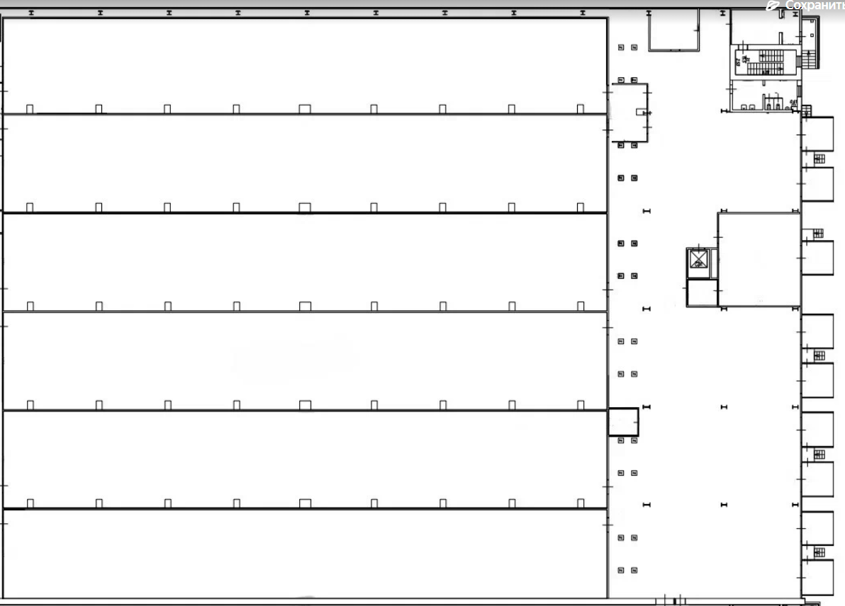
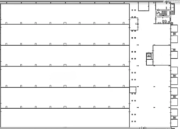
Арт. 108787137 Предлагается в аренду складское помещение -3600 м2 (возможно увеличение)
Общая зона 1000 м2 погрузки-разгрузки с большим количеством ворот:
4 под фуру, 8 под малотоннажную технику.
Полы -Антипыль.
Скоростные паллето-подъемники.
Помещение оборудовано стеллажами,входят в стоимость аренды.
Так же в стоимость аренды входит ОРЕХ (содержание территории, эксплуатационное содержание, обеспечение пропускного режима) и НДС!
Оплата коммунальных услуг -только за электроэнергию!
Есть офисные помещения.
Возможность использовать услуги складского оператора, находящегося на той же территории в том числе услугами по транспортной доставке.
Удобное расположение складского комплекса в 20 минутах ПЕШКОМ от м. Бульвар Адмирала Ушакова, и м. Улица Горчакова.
11 минут от МКАД.
Так же рядом проходит Солнцево-Бутово-Варшавского шоссе- удобный выход на Калужское/Киевское шоссе не выезжая на МКАД.
Рядом располагаются продуктовые магазины,кафе.
Общая зона 1000 м2 погрузки-разгрузки с большим количеством ворот:
4 под фуру, 8 под малотоннажную технику.
Полы -Антипыль.
Скоростные паллето-подъемники.
Помещение оборудовано стеллажами,входят в стоимость аренды.
Так же в стоимость аренды входит ОРЕХ (содержание территории, эксплуатационное содержание, обеспечение пропускного режима) и НДС!
Оплата коммунальных услуг -только за электроэнергию!
Есть офисные помещения.
Возможность использовать услуги складского оператора, находящегося на той же территории в том числе услугами по транспортной доставке.
Удобное расположение складского комплекса в 20 минутах ПЕШКОМ от м. Бульвар Адмирала Ушакова, и м. Улица Горчакова.
11 минут от МКАД.
Так же рядом проходит Солнцево-Бутово-Варшавского шоссе- удобный выход на Калужское/Киевское шоссе не выезжая на МКАД.
Рядом располагаются продуктовые магазины,кафе.
Расположение
г Москва, ул Поляны, д 73
Технические характеристики
Новость дня
Все новости
Сегодня — 21 апреля, вторник / Москва
Сокращение объема инвестиций в недвижимость Московского региона за первый квартал на 20%
Сегодня — 21 апреля, вторник / Москва
"Компания «Магнит» начала производство замороженных полуфабрикатов на основе теста"
Сегодня — 21 апреля, вторник / Москва
"Открытие производства компрессионного трикотажа в парке "Руднево" в рамках индустриализации".
Сегодня — 21 апреля, вторник / Москва
Бизнес-центр "Кубик" в Мякинино приобретен компанией "ВИМ Сбережения"
Сегодня — 21 апреля, вторник / Москва
Parametr оборудован корпусом формата "флекс бокс" для промпарка Кувекино.
Сегодня — 21 апреля, вторник / Москва
Объем новых торговых помещений в Москве уменьшился до 9,5 тыс. квадратных метров за первый квартал
Сегодня — 21 апреля, вторник / Красноярский
"Ozon открыл новый склад в Красноярском крае"
Вчера — 20 апреля, понедельник / Санкт-Петербург
«"Охта Групп" внесла изменения в дизайн лофт-квартала "Скороход"»
Вчера — 20 апреля, понедельник / Санкт-Петербург
"Реставрация исторической трансформаторной подстанции в Петербурге завершена"
Вчера — 20 апреля, понедельник / Москва
Собственость на российскую сеть кофеен Cofix может быть передана новому владельцу
Вчера — 20 апреля, понедельник / Москва
UPECO приобрела аренду площади в размере 966 квадратных метров в бизнес-парке "Сколково Парк".
Вчера — 20 апреля, понедельник / Москва
"Реконструкция ТРЦ «Европа» стартует в Калининграде"
Вчера — 20 апреля, понедельник / Москва
"Площадь ОЭЗ «Технополис Москва» увеличилась на 38 гектаров"
Вчера — 20 апреля, понедельник / Москва
"Строительство крытого футбольного манежа в Восточном Административном Округе обойдется в 220 миллионов рублей"
Вчера — 20 апреля, понедельник / Москва
В Краснопахорском районе откроется торговая и бытовая зона площадью свыше 800 квадратных метров.
Вчера — 20 апреля, понедельник / Москва
ГК ФСК запустила новый завод по производству строительных материалов в Зеленограде.
Вчера — 20 апреля, понедельник / Санкт-Петербург
Логистическая компания арендовала офисное помещение площадью 730 квадратных метров в бизнес-центре Leader Tower
Вчера — 20 апреля, понедельник / Санкт-Петербург
"Подрядчик выбран для восстановления XIX века почтовой станции в Ленинградской области"
17 апреля, пятница / Москва
"Компания, связанная с Олегом Дерипаской, отозвала свое управление гостиничным комплексом «Имеретинский» в Сириусе"
17 апреля, пятница / Москва
"Выручка компании X5 Group увеличилась на 11,3% за первый квартал"