Описание
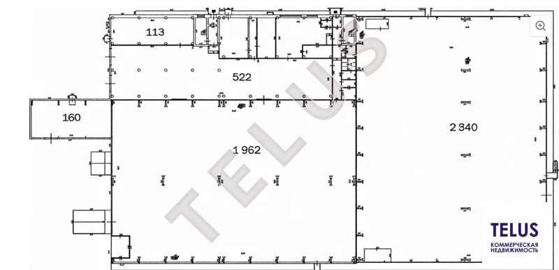
Производственно-складской комплекс площадью 7794 м2 на участке 3 га в собственности. Инженерные коммуникации центральные. Электрическая мощность 1,5 МВт (1500 кВт), две ТП, газ по границе. Асфальтированная дорога. Территория огорожена и охраняется. 6 кран балок для крупногабаритных грузов до 20 тонн. Парковка на 100 машин. Комплекс включает в себя основной корпус 6646 м2, два ремонтных и слесарных цеха общей площадью 1000 м2 и здание охраны 116 м2. Бетонные полы, металлокаркас, сендвич-панели, потолки до 14 метров, 5 ворот в ноль, возможен пандус. 5 км от МКАД по Дмитровскому шоссе, 5 минут на авто до станции МЦД-1 Новодачная. Объект №. AFY-901104608
Расположение
Московская обл, г Долгопрудный, Транспортный проезд, д 5
Новодачная
—
23 мин
Долгопрудная
—
32 мин
Марк
—
32 мин
Технические характеристики
Новость дня
Все новости
Сегодня — 21 апреля, вторник / Москва
Сокращение объема инвестиций в недвижимость Московского региона за первый квартал на 20%
Сегодня — 21 апреля, вторник / Москва
"Компания «Магнит» начала производство замороженных полуфабрикатов на основе теста"
Сегодня — 21 апреля, вторник / Москва
"Открытие производства компрессионного трикотажа в парке "Руднево" в рамках индустриализации".
Сегодня — 21 апреля, вторник / Москва
Бизнес-центр "Кубик" в Мякинино приобретен компанией "ВИМ Сбережения"
Сегодня — 21 апреля, вторник / Москва
Parametr оборудован корпусом формата "флекс бокс" для промпарка Кувекино.
Сегодня — 21 апреля, вторник / Москва
Объем новых торговых помещений в Москве уменьшился до 9,5 тыс. квадратных метров за первый квартал
Сегодня — 21 апреля, вторник / Красноярский
"Ozon открыл новый склад в Красноярском крае"
Вчера — 20 апреля, понедельник / Санкт-Петербург
«"Охта Групп" внесла изменения в дизайн лофт-квартала "Скороход"»
Вчера — 20 апреля, понедельник / Санкт-Петербург
"Реставрация исторической трансформаторной подстанции в Петербурге завершена"
Вчера — 20 апреля, понедельник / Москва
Собственость на российскую сеть кофеен Cofix может быть передана новому владельцу
Вчера — 20 апреля, понедельник / Москва
UPECO приобрела аренду площади в размере 966 квадратных метров в бизнес-парке "Сколково Парк".
Вчера — 20 апреля, понедельник / Москва
"Реконструкция ТРЦ «Европа» стартует в Калининграде"
Вчера — 20 апреля, понедельник / Москва
"Площадь ОЭЗ «Технополис Москва» увеличилась на 38 гектаров"
Вчера — 20 апреля, понедельник / Москва
"Строительство крытого футбольного манежа в Восточном Административном Округе обойдется в 220 миллионов рублей"
Вчера — 20 апреля, понедельник / Москва
В Краснопахорском районе откроется торговая и бытовая зона площадью свыше 800 квадратных метров.
Вчера — 20 апреля, понедельник / Москва
ГК ФСК запустила новый завод по производству строительных материалов в Зеленограде.
Вчера — 20 апреля, понедельник / Санкт-Петербург
Логистическая компания арендовала офисное помещение площадью 730 квадратных метров в бизнес-центре Leader Tower
Вчера — 20 апреля, понедельник / Санкт-Петербург
"Подрядчик выбран для восстановления XIX века почтовой станции в Ленинградской области"
17 апреля, пятница / Москва
"Компания, связанная с Олегом Дерипаской, отозвала свое управление гостиничным комплексом «Имеретинский» в Сириусе"
17 апреля, пятница / Москва
"Выручка компании X5 Group увеличилась на 11,3% за первый квартал"