Описание
Предложение в аренду № 63601.
Парковка: городская.
Предлагаем в аренду торговое помещение на Волгоградском проспекте. До м.Пролетарская 5 минут пешком. Первая линия, отличная видимость.
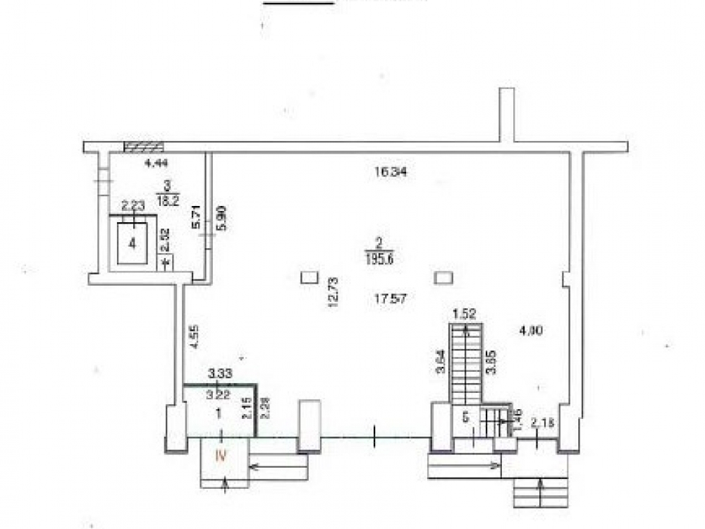
. Помещение на первом этаже с отдельным входом. Свободная планировка, витринное остекление. Вход с пандусом с фасада и служебный со двора. Потолки 3м. Выделенная мощность 99,4квт. Центральные коммуникации.
. Помещение освобождается по согласованию.
Торговая недвижимость, Street Retail. 1 линия домов. Витрины. Место для рекламы. Зона разгрузки. Проходное и проездное место.
Без комиссии.
Парковка: городская.
Предлагаем в аренду торговое помещение на Волгоградском проспекте. До м.Пролетарская 5 минут пешком. Первая линия, отличная видимость.
. Помещение на первом этаже с отдельным входом. Свободная планировка, витринное остекление. Вход с пандусом с фасада и служебный со двора. Потолки 3м. Выделенная мощность 99,4квт. Центральные коммуникации.
. Помещение освобождается по согласованию.
Торговая недвижимость, Street Retail. 1 линия домов. Витрины. Место для рекламы. Зона разгрузки. Проходное и проездное место.
Без комиссии.
Расположение
г Москва, пр-кт Волгоградский, д 9 стр 1
Крестьянская застава
Пролетарская
—
6 мин
Волгоградский проспект
—
11 мин
Технические характеристики
Новость дня
Все новости
Вчера — 15 апреля, среда / Москва
"Сеть садовых центров «Лемана ПРО» расширяется с открытием нового филиала в Жуковском"
Вчера — 15 апреля, среда / Москва
"Ozon запустил новый логистический центр в Ватутинках"
Вчера — 15 апреля, среда / Москва
"Открытие супермаркета Eurospar в торговом центре «АФИ Галерея» на станции метро Белорусская"
Вчера — 15 апреля, среда / Москва
"Падение спроса на коммерческую недвижимость в новостройках Москвы почти на треть"
Вчера — 15 апреля, среда / Москва
Новый филиал Сбербанка открылся в Торгово-развлекательном центре «Щёлковский»
Вчера — 15 апреля, среда / Москва
"Откроется сервисный офис площадью 4,5 тыс. кв. м в бизнес-центре Dubinin’Sky"
Вчера — 15 апреля, среда / Санкт-Петербург
Сделки на складском рынке Петербурга упали на 80% в первом квартале
Вчера — 15 апреля, среда / Москва
"Компания 'Росспиртпром' приобрела долю в 23,99% Иткульского спиртзавода в Алтайском крае"
Вчера — 15 апреля, среда / Самарская
Сеть «Монетка» расширила свою присутствие, открыв магазины в Самаре и селах Самарской области
Вчера — 15 апреля, среда / Москва
Падение чистой прибыли сети Rendez-Vous на 93% в 2025 году.
14 апреля, вторник / Санкт-Петербург
Планируется развитие культурной инфраструктуры на Ново-Адмиралтейском острове: открытие концертного зала и музея
14 апреля, вторник / Санкт-Петербург
Объем доступных складских площадей в Санкт-Петербурге достиг 5,8 миллиона квадратных метров
14 апреля, вторник / Москва
"«Авивир» переезжает в деловой квартал 'Сколково Парк' в качестве резидента"
14 апреля, вторник / Москва
"Производство российских микрофокусных рентгеновских устройств стартовало в ОЭЗ «Технополис Москва»"
14 апреля, вторник / Москва
"Рост рынка торговой недвижимости притормозил"
14 апреля, вторник / Москва
«Строительная компания "Галс-Девелопмент" планирует возведение первого бизнес-центра в районе "Южный порт"»
14 апреля, вторник / Москва
"«Роснефть» расширяет свои активы, приобретая компанию «Саянскхимпласт», специализирующуюся на производстве ПВХ"
14 апреля, вторник / Москва
"Первый магазин смысловой 226 открывается в пространстве Яндекс-01"
14 апреля, вторник / Москва
"Askona преобразует сеть магазинов в помещения размером от 600 до 1,500 квадратных метров"