Купить ПСН 574 м²
ID 1016220
Цена
217 110 000 ₽
Ставка
378 240 ₽ / м²
Площадь
574 м²
Этаж
1 из -
ИФНС
7724
агентство недвижимости
г Москва, км МКАД 25-й, д 2
На карте
Домодедовская
—
13 мин
Описание
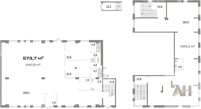
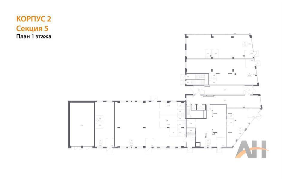
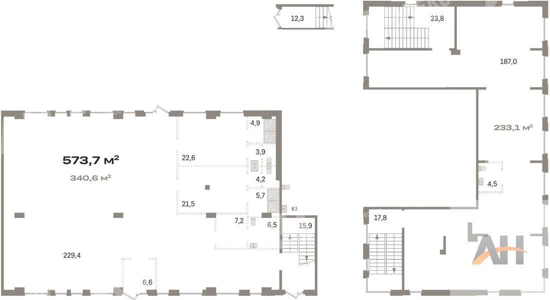
Лот №935759 Предлагается к продаже коммерческое помещение площадью 573,70 кв. м., расположенное на первом этаже в корпусе 2 первой очереди строящегося комплекса «Квартал Герцена». Объект находится по адресу: 25-26 км МКАД, ул., д. 2. Общее количество этажей в здании — 30.
Помещение имеет статус свободного назначения, что позволяет разместить практически любой вид бизнеса. Оно оптимально подойдет для медицинского центра, салона красоты, парикмахерской, офиса, ресторана, бара, банка, предприятий бытового обслуживания, торговых площадей или магазина.
Сдача объекта в эксплуатацию запланирована на четвертый квартал 2027 года. Высота потолков в помещении составляет 4,00 метра, что создает дополнительные возможности для планировки и оформления интерьера.
Чтобы получить ПОДРОБНУЮ ПРЕЗЕНТАЦИЮ С ПЛАНИРОВКОЙ И ФОТОГРАФИЯМИ на этот объект, звоните. Высылаем в течение 15 минут по запросу!
☎ Конт. лицо: НОВОСТРОЙКИ , доб. 211, ЛОТ №935759
Помещение имеет статус свободного назначения, что позволяет разместить практически любой вид бизнеса. Оно оптимально подойдет для медицинского центра, салона красоты, парикмахерской, офиса, ресторана, бара, банка, предприятий бытового обслуживания, торговых площадей или магазина.
Сдача объекта в эксплуатацию запланирована на четвертый квартал 2027 года. Высота потолков в помещении составляет 4,00 метра, что создает дополнительные возможности для планировки и оформления интерьера.
Чтобы получить ПОДРОБНУЮ ПРЕЗЕНТАЦИЮ С ПЛАНИРОВКОЙ И ФОТОГРАФИЯМИ на этот объект, звоните. Высылаем в течение 15 минут по запросу!
☎ Конт. лицо: НОВОСТРОЙКИ , доб. 211, ЛОТ №935759
Расположение
г Москва, км МКАД 25-й, д 2
Домодедовская
—
13 мин
Технические характеристики
Параметры
Статус владельца объявления
агентство
Новость дня
Расширение возможностей для B2B-клиентов: Avito вводит новые услуги для строительства складов
На платформе Авито теперь доступна категория "Коммерческое строительство" в сегменте услуг, предлагающая широкий выбор специализированных работ и возведение объектов "под ключ" для бизнеса, что упрощает поиск подрядчиков и субподрядчиков для коммерческих проектов.
Все новости
Сегодня — 5 мая, вторник / Москва
"Сбербанк и Альфа-банк подали в суд на производителя обоев «Артекс» с требованием объявить его банкротом"
Сегодня — 5 мая, вторник / Красноярский
"Магазин «ВкусВилл» открыл отдел shop-in-shop в Красноярске через партнерство"
Сегодня — 5 мая, вторник / Адыгея
Строительство жилого комплекса на территории туристического парка "Дегуакская поляна" в Адыгее начнется архитектурным проектом от "Семьи" объемом 360 тыс. квадратных метров.
Сегодня — 5 мая, вторник / Москва
"Прогнозируется достижение рекордной площади 500 тыс. кв. м под light industrial в Московском регионе к 2026 году"
Сегодня — 5 мая, вторник / Астраханская
Фитнес-клуб DDX Fitness открылся в Торгово-Развлекательном Центре «Ярмарка» в городе Астрахань.
Сегодня — 5 мая, вторник / Москва
"Объем спроса на офисные помещения в Москве сократился вдвое за последний год"
Сегодня — 5 мая, вторник / Москва
"Рост стоимости отделки офисов в Москве превышает уровень инфляции"
Сегодня — 5 мая, вторник / Москва
В России впервые за 20 лет не было открыто ни одной новой гостиницы в первом квартале
Сегодня — 5 мая, вторник / Москва
Спрос на услуги аренды апартаментов в Санкт-Петербурге упал на четверть.
Сегодня — 5 мая, вторник / Москва
"Сеть магазинов 'Лента' запустила свой первый розничный магазин специализированных товаров для ремонта, дачи и сада в Шушарах"
Вчера — 4 мая, понедельник / Москва
Вложения в недвижимость России за первую половину текущего года составили 169,5 миллиарда рублей.
Вчера — 4 мая, понедельник / Москва
Российский складской рынок продолжает расти: площадь складских помещений превысит 60 млн кв. м к концу 2026 года
Вчера — 4 мая, понедельник / Москва
"Компания "Галс-Девелопмент" получила одобрение на строительство делового центра "Дубининский"."
Вчера — 4 мая, понедельник / Москва
Инвестиционный фонд "Бумеранг Капитал" стал владельцем половины сети кофеен "Цех 85"
Вчера — 4 мая, понедельник / Краснодарский
В Анапе откроется первый отель с инновационными IT-сервисами
Вчера — 4 мая, понедельник / Москва
Планируется строительство торгового центра площадью свыше 6 тыс. кв. м в Краснопахорском районе Москвы.
Вчера — 4 мая, понедельник / Москва
Смена собственника у клубов «Дикая орхидея» и «Дефиле»
Вчера — 4 мая, понедельник / Вологодская
"Прекращена деятельность "наливаек" и магазинов электронных сигарет в Вологодской области"
Вчера — 4 мая, понедельник / Москва
"Exeed перемещает производство из Подмосковья на площадку АГР в Шушарах"
Вчера — 4 мая, понедельник / Москва
На юге Москвы запланировано строительство ТПУ "Кленовый бульвар" на площади 2 гектара.