Описание
Предложение на продажу № 61358.
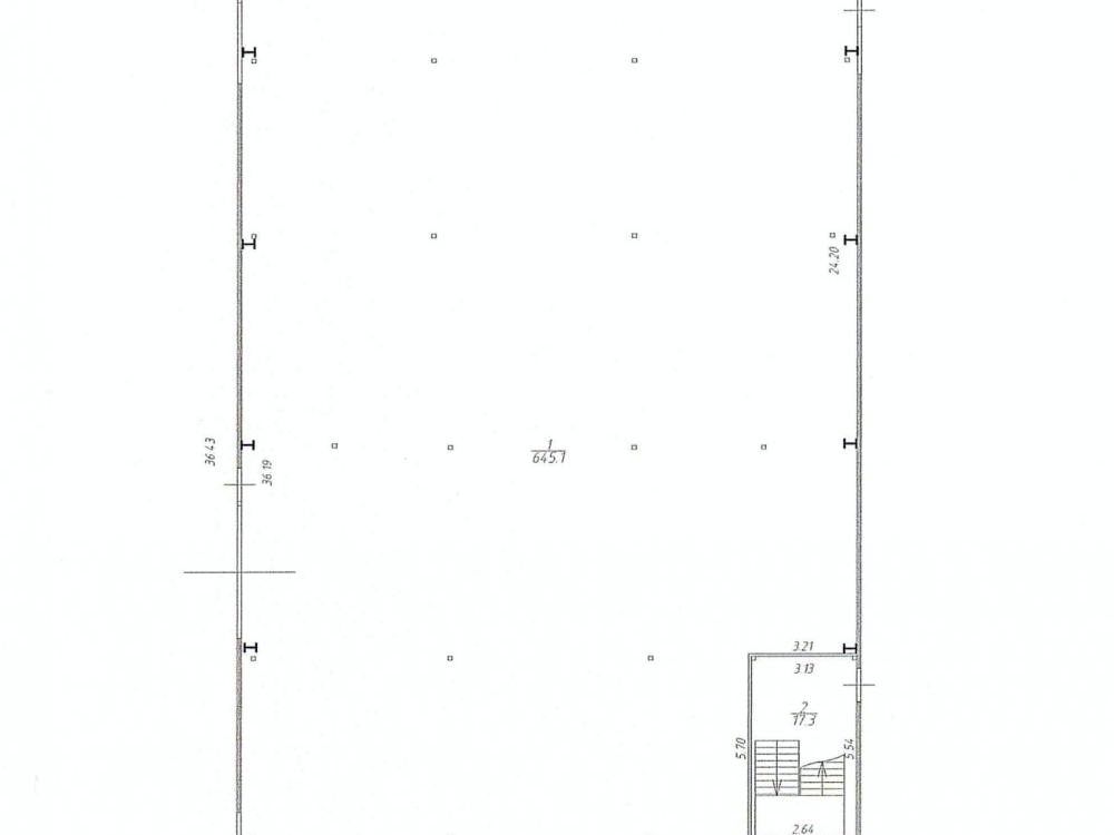
Продается новый теплый склад 2024 года постройки 1462 кв.м. по полу. (24х60м)
. Колонны только по периметру
. Потолки от 6м
. Полы - антипыль
. Автоматические промышленные секционные ворота 4,2м х 4м,
. Электричество 300 квт
. Промышленный септик 25 кубов
. Скважина
. Отопление локально
. Доcтуп 24/7
. Асфальт до ворот. Возможно устройство пандуса для фур.
. Парковка: на улице, бесплатная, подходит для грузового транспорта.
. Подъезд и стоянка для фур
. Огромная гостевая парковка.
. Офис, раздевалки М и Ж, 2 санузла, кухня,
. В пешей доступности электричка, автобусы, места массового проживания работников. Рядом Горьковское шоссе ( М7) и М12,
.
. На сегодня это единственный современный объект находящийся в черте города на небольшом отдалении 27км от МКАД , в центральной части города, с наличием большой электрической мощности.
.
. Расположение: М.О. г. Лосино-Петровский, ул. Чкалова, стр. 52.
. Коммуникации: Выделенная электрическая мощность 300 Квт, вода, канализация.
. Форма сделки: ДКП.
.
Без комиссии.
Продается новый теплый склад 2024 года постройки 1462 кв.м. по полу. (24х60м)
. Колонны только по периметру
. Потолки от 6м
. Полы - антипыль
. Автоматические промышленные секционные ворота 4,2м х 4м,
. Электричество 300 квт
. Промышленный септик 25 кубов
. Скважина
. Отопление локально
. Доcтуп 24/7
. Асфальт до ворот. Возможно устройство пандуса для фур.
. Парковка: на улице, бесплатная, подходит для грузового транспорта.
. Подъезд и стоянка для фур
. Огромная гостевая парковка.
. Офис, раздевалки М и Ж, 2 санузла, кухня,
. В пешей доступности электричка, автобусы, места массового проживания работников. Рядом Горьковское шоссе ( М7) и М12,
.
. На сегодня это единственный современный объект находящийся в черте города на небольшом отдалении 27км от МКАД , в центральной части города, с наличием большой электрической мощности.
.
. Расположение: М.О. г. Лосино-Петровский, ул. Чкалова, стр. 52.
. Коммуникации: Выделенная электрическая мощность 300 Квт, вода, канализация.
. Форма сделки: ДКП.
.
Без комиссии.
Расположение
Московская обл, г Лосино-Петровский, ул Чкалова, д 42 к 1
Новокосино
—
90 мин
Технические характеристики
Параметры
Статус владельца объявления
агентство
Новость дня
Все новости
8 мая, пятница / Москва
Усадьбу XVIII–XIX веков в центре Москвы выставили на аукцион «Дом.РФ»
8 мая, пятница / Москва
Бизнес-центр площадью 43,3 тыс. кв. м открыли в окрестностях Филевского парка.
8 мая, пятница / Крым
Гостиница на полуострове Крым выставлена на продажу по цене 117,7 миллиона рублей.
8 мая, пятница / Москва
В Нагатинской пойме откроется фитнес-клуб в гостиничном комплексе
8 мая, пятница / Москва
"Сменился владелец Торгового центра «Гудзон»"
8 мая, пятница / Москва
"Открытие обновленного футбольного комплекса в СберСити"
8 мая, пятница / Нижегородская
В Нижнем Новгороде будет восстановлен исторический здание для коммерческой аренды.
8 мая, пятница / Архангельская
Офисное здание в центре Архангельска выставлено на торги площадкой «Дом.РФ»
8 мая, пятница / Москва
Группа "Гранд НН" из Нижнего Новгорода продает пять компаний за 3,3 миллиарда рублей.
8 мая, пятница / Москва
Москва увеличила площадь жилой недвижимости на более чем 250 тыс. кв. м с начала года по Межевому плану территории.
7 мая, четверг / Москва
"Маркетплейсы занимают всего 9 % рынка онлайн-продаж продуктов питания"
7 мая, четверг / Москва
"ТРК «Зеленопарк» в Подмосковье выставлен на продажу компанией «Сбербанк капитал»"
7 мая, четверг / Москва
X5 Group планирует приобрести часть акций Zotman Pizza.
7 мая, четверг / Москва
"Уровень вакантности в офисном сегменте рынка Москвы достиг 5,3%"
7 мая, четверг / Москва
"В Московском регионе спрос на склады вырос на 70% благодаря онлайн-торговле и логистике"
7 мая, четверг / Москва
"Снижение объема розничных продаж на 0,5% за первый квартал"
7 мая, четверг / Москва
Планируется строительство девятиэтажного делового центра площадью 16 тыс. кв. м в Щукино.
7 мая, четверг / Москва
Развенчивание мифов: Пять исторических домов в районе Арбата пройдут капитальный ремонт.
7 мая, четверг / Москва
Продажа ТЦ "Летний сад" в Москве группой "Эталон" привела к потере в 2,2 млрд рублей.
7 мая, четверг / Москва
Предприятие "Свобода" под угрозой банкротства из-за задолженности в 125 миллионов рублей