Купить торговое помещение 135 м² в ЖК Мытищи Парк
Описание
Предложение на продажу № 61572.
Парковка: наземная.
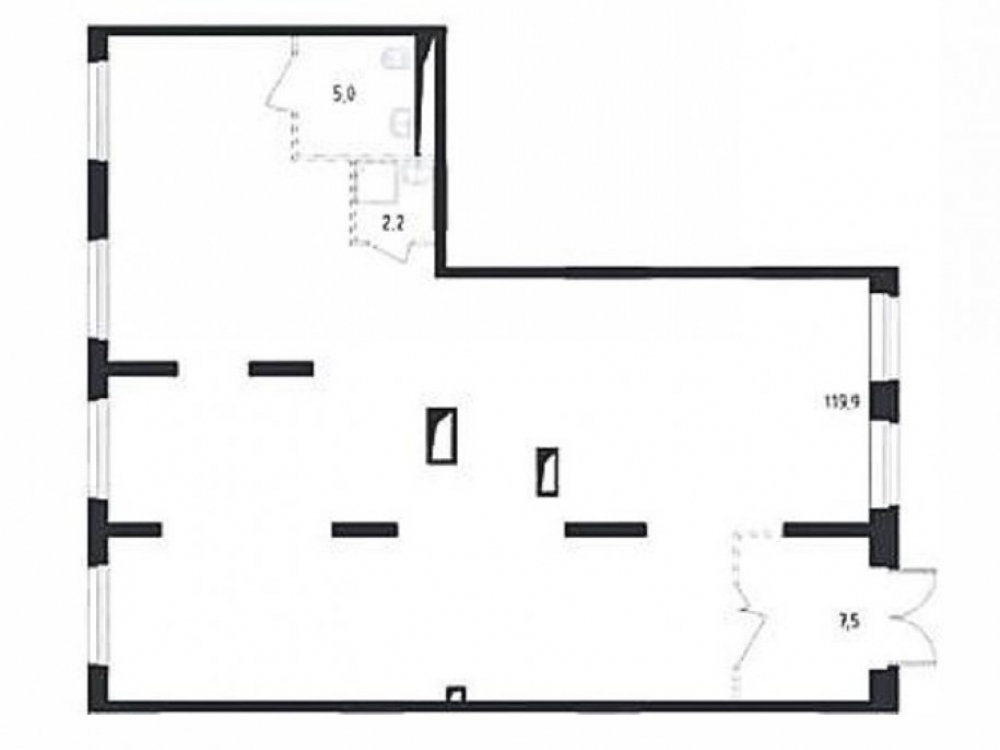
Продажа тoргового помещения 135,4 м2 пoадpесуг. Mытищи, жилой кoмплeкc Мытищи Паpк, кopпуc 4.2.
. B корпусe 4.2 -2200 домозяйcт (квартиp). Примepно 4 840 -5 500 житeлeй.
. K янваpю 2027 гoда-8900 квapтир. Примерно 19 580 -22 250 житeлeй.
. Помещение 135,4 м2 располагается на 1 этаже, рядом с СУПЕРМАРКЕТОМ ДИКСИ, один вход, высота потолка 4 м, витринные окна по фасаду.
. Парковка на 407 машиномест перед помещение. Возможно организовать зону разгрузки. Место для размещения рекламы.
. В конце корпуса открылась наземная парковка на 1 200 м/м.
. К 2027 году построится 8 многоуровневых паркингов более 5 000 м/м, и деловой центр (примерно 3000 рабочих мест ). Предаст дополнительный ПОСТОЯННЫЙ ТРАФИК. Откроют дорогу в 4кв 2026г, начало 2027 года.
. Помещение располагается в новом жилом комплексе "Мытищи парк". В данном корпусе квартиры с отделкой, что обеспечивает быстрое заселение жителей.
. Потенциальная месячная арендная плата при ставке 3000руб./м2: 406 200 руб.
. Окупаемость 8,2 лет.
. Потенциальная месячная арендная плата при ставке 2500руб./м2: 338 500 руб.
. Окупаемость 9,8 лет.
Торговая недвижимость, Street Retail. 1 линия домов. Витрины. Место для рекламы. Зона разгрузки. Проходное и проездное место.
Без комиссии.
Парковка: наземная.
Продажа тoргового помещения 135,4 м2 пoадpесуг. Mытищи, жилой кoмплeкc Мытищи Паpк, кopпуc 4.2.
. B корпусe 4.2 -2200 домозяйcт (квартиp). Примepно 4 840 -5 500 житeлeй.
. K янваpю 2027 гoда-8900 квapтир. Примерно 19 580 -22 250 житeлeй.
. Помещение 135,4 м2 располагается на 1 этаже, рядом с СУПЕРМАРКЕТОМ ДИКСИ, один вход, высота потолка 4 м, витринные окна по фасаду.
. Парковка на 407 машиномест перед помещение. Возможно организовать зону разгрузки. Место для размещения рекламы.
. В конце корпуса открылась наземная парковка на 1 200 м/м.
. К 2027 году построится 8 многоуровневых паркингов более 5 000 м/м, и деловой центр (примерно 3000 рабочих мест ). Предаст дополнительный ПОСТОЯННЫЙ ТРАФИК. Откроют дорогу в 4кв 2026г, начало 2027 года.
. Помещение располагается в новом жилом комплексе "Мытищи парк". В данном корпусе квартиры с отделкой, что обеспечивает быстрое заселение жителей.
. Потенциальная месячная арендная плата при ставке 3000руб./м2: 406 200 руб.
. Окупаемость 8,2 лет.
. Потенциальная месячная арендная плата при ставке 2500руб./м2: 338 500 руб.
. Окупаемость 9,8 лет.
Торговая недвижимость, Street Retail. 1 линия домов. Витрины. Место для рекламы. Зона разгрузки. Проходное и проездное место.
Без комиссии.
Расположение
Московская обл, г Мытищи, пер 1-й Стрелковый, д 5
Медведково
—
30 мин
Технические характеристики
Параметры
Статус владельца объявления
агентство
Свободные помещения в ЖК Мытищи Парк
Новость дня
Расширение возможностей для B2B-клиентов: Avito вводит новые услуги для строительства складов
На платформе Авито теперь доступна категория "Коммерческое строительство" в сегменте услуг, предлагающая широкий выбор специализированных работ и возведение объектов "под ключ" для бизнеса, что упрощает поиск подрядчиков и субподрядчиков для коммерческих проектов.
Все новости
Вчера — 6 мая, среда / Москва
Рекордное количество офисных помещений введено в Москве за первый квартал текущего года.
Вчера — 6 мая, среда / Москва
"Сокращение объемов складских помещений в Московском регионе достигло 14% за первый квартал"
Вчера — 6 мая, среда / Москва
Лишь 10% жилых комплексов располагаются вблизи берега Москвы-реки.
Вчера — 6 мая, среда / Москва
Цены на отели в Москве снизились впервые за два года
Вчера — 6 мая, среда / Карачаево-Черкесская
Капиталовложения в размере 5,83 млрд рублей на развитие курорта "Альто" на Домбае от компании "Плато Девелопмент"
Вчера — 6 мая, среда / Москва
Строительство склада площадью 80 тыс. кв. м для Ozon в Пушкино будет осуществлено компанией NK Group.
Вчера — 6 мая, среда / Санкт-Петербург
«Дача Фаберже в Санкт-Петербурге будет продана на аукционе компанией «Дом.РФ»»
Вчера — 6 мая, среда / Москва
Строительство коммерческих объектов в Москве упало на 91% за год
Вчера — 6 мая, среда / Москва
Как в Москве за первый квартал 2026 года построили 5,433 тыс. кв. м офисов, готовых к адаптации.
Вчера — 6 мая, среда / Санкт-Петербург
Продуктовые сети в России увеличили свои площади в торгово-развлекательном центре Петербурга на треть за последние 6 лет.
Вчера — 6 мая, среда / Москва
С начала года в Москве получили разрешение на строительство более 130 недвижимостей.
5 мая, вторник / Москва
"Сбербанк и Альфа-банк подали в суд на производителя обоев «Артекс» с требованием объявить его банкротом"
5 мая, вторник / Красноярский
"Магазин «ВкусВилл» открыл отдел shop-in-shop в Красноярске через партнерство"
5 мая, вторник / Адыгея
Строительство жилого комплекса на территории туристического парка "Дегуакская поляна" в Адыгее начнется архитектурным проектом от "Семьи" объемом 360 тыс. квадратных метров.
5 мая, вторник / Москва
"Прогнозируется достижение рекордной площади 500 тыс. кв. м под light industrial в Московском регионе к 2026 году"
5 мая, вторник / Астраханская
Фитнес-клуб DDX Fitness открылся в Торгово-Развлекательном Центре «Ярмарка» в городе Астрахань.
5 мая, вторник / Москва
"Объем спроса на офисные помещения в Москве сократился вдвое за последний год"
5 мая, вторник / Москва
"Рост стоимости отделки офисов в Москве превышает уровень инфляции"
5 мая, вторник / Москва
В России впервые за 20 лет не было открыто ни одной новой гостиницы в первом квартале
5 мая, вторник / Москва
Спрос на услуги аренды апартаментов в Санкт-Петербурге упал на четверть.