Главная
Аренда производственных помещений в Москве и МО
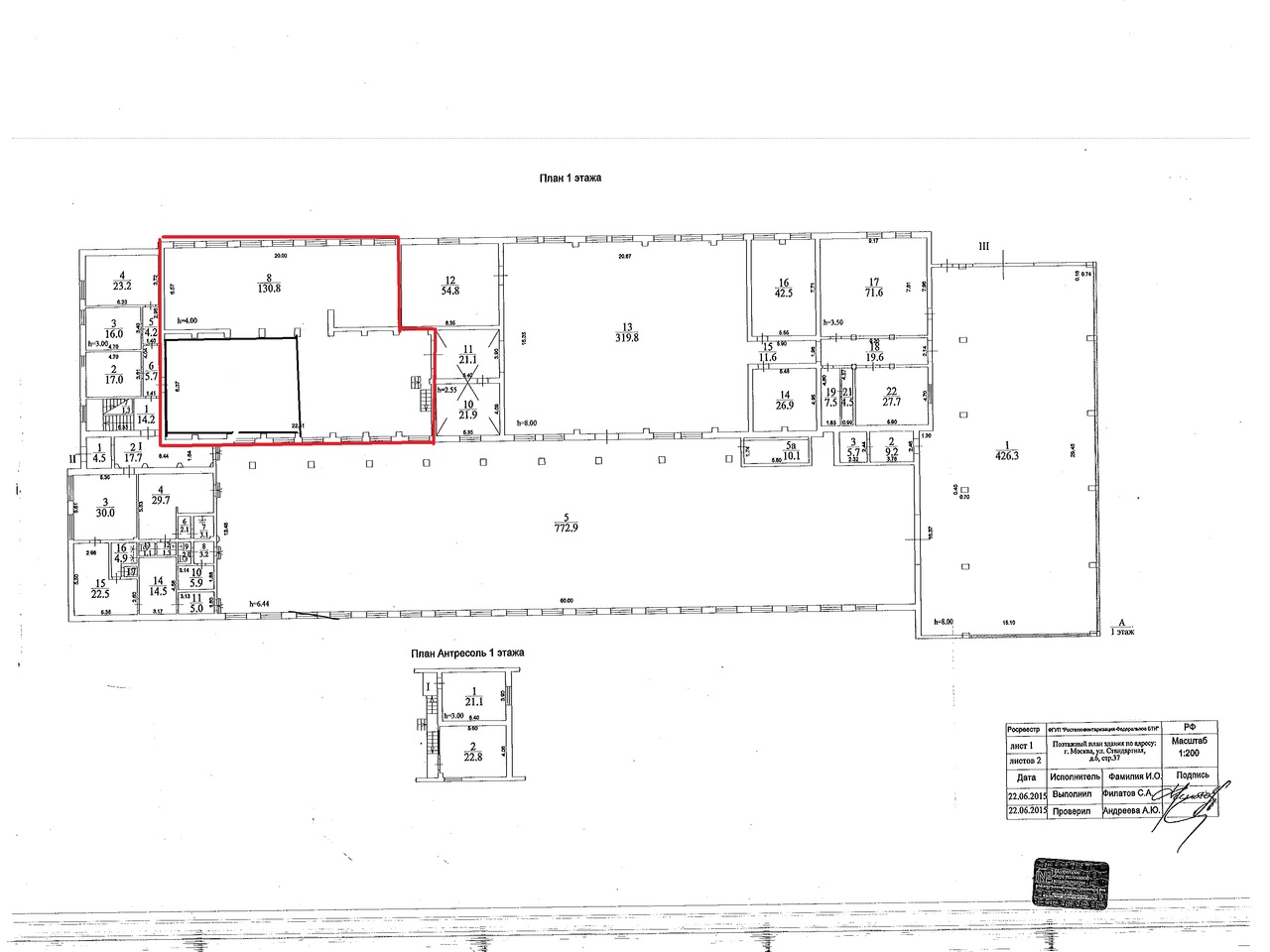
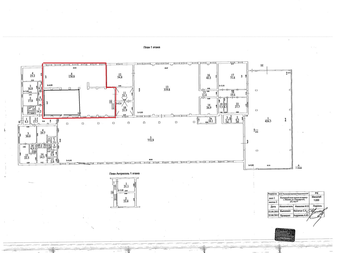
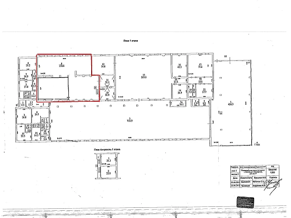
Производственное помещение 322 м² в Москва, Стандартная, 6
Снять производственное помещение 322 м² в Москва, Стандартная, 6
ID 1048324
Цена
214 667 ₽/мес
Ставка
8 000 ₽ / м² / год
Площадь
322 м²
Этаж
1 из 2
ИФНС
7715
агентство недвижимости
г Москва, ул Стандартная, соор 6
На карте
Алтуфьево
Бибирево
Описание
Территория имущественного комплекса "Бескудниковский комбинат строительных материалов". Прямая аренда от собственника. ТРЕБУЕТСЯ КАПИТАЛЬНЙ РЕМОНТ КРОВЛИПод производство или склад предлагается в аренду помещение на 1-м этаже БЕЗ отопления общей площадью 322,00 кв.м. (ПОД МЕТАЛЛОПРИЕМКУ И АВТОСЕРВИС НЕ CДАЕТСЯ). Данный блок состоит из 2-х залов и нескольких комнат, а также антресоль 43,9 м2. Высота 4 м. Есть ворота. Пол - бетон / производственная плитка. Воды и канализации нет в помещении. Планировка открытая, состояние помещения – требует ремонта.Ворота шириной 3,5м. Высота потолков – 6,54 м. Парковка на территории (въезд платный). Режим работы круглосуточный.Производственный комплекс расположен в непосредственной близости от МКАД, рядом станция МЦД Бескудниково. Отдельно оплачиваются коммунальные платежи. Электрические мощности предоставляются по запросу. Арендная ставка включает НДС. Территория находится под круглосуточной охраной. Контроль доступа. При необходимости ремонта предоставляются арендные каникулы. Обеспечительный взнос 2 месячные арендные платы.НЕОБХОДИМО ОБОРУДОВАТЬ И ПОСТАВИТЬ НА УЧЕТ ПОЖАРНУЮ СИГНАЛИЗАЦИЮ. Лот № 000002933
Расположение
г Москва, ул Стандартная, соор 6
Алтуфьево
Бибирево
Технические характеристики
Новость дня
Все новости
Сегодня — 21 апреля, вторник / Москва
Сокращение объема инвестиций в недвижимость Московского региона за первый квартал на 20%
Сегодня — 21 апреля, вторник / Москва
"Компания «Магнит» начала производство замороженных полуфабрикатов на основе теста"
Сегодня — 21 апреля, вторник / Москва
"Открытие производства компрессионного трикотажа в парке "Руднево" в рамках индустриализации".
Сегодня — 21 апреля, вторник / Москва
Бизнес-центр "Кубик" в Мякинино приобретен компанией "ВИМ Сбережения"
Сегодня — 21 апреля, вторник / Москва
Parametr оборудован корпусом формата "флекс бокс" для промпарка Кувекино.
Сегодня — 21 апреля, вторник / Москва
Объем новых торговых помещений в Москве уменьшился до 9,5 тыс. квадратных метров за первый квартал
Сегодня — 21 апреля, вторник / Красноярский
"Ozon открыл новый склад в Красноярском крае"
Вчера — 20 апреля, понедельник / Санкт-Петербург
«"Охта Групп" внесла изменения в дизайн лофт-квартала "Скороход"»
Вчера — 20 апреля, понедельник / Санкт-Петербург
"Реставрация исторической трансформаторной подстанции в Петербурге завершена"
Вчера — 20 апреля, понедельник / Москва
Собственость на российскую сеть кофеен Cofix может быть передана новому владельцу
Вчера — 20 апреля, понедельник / Москва
UPECO приобрела аренду площади в размере 966 квадратных метров в бизнес-парке "Сколково Парк".
Вчера — 20 апреля, понедельник / Москва
"Реконструкция ТРЦ «Европа» стартует в Калининграде"
Вчера — 20 апреля, понедельник / Москва
"Площадь ОЭЗ «Технополис Москва» увеличилась на 38 гектаров"
Вчера — 20 апреля, понедельник / Москва
"Строительство крытого футбольного манежа в Восточном Административном Округе обойдется в 220 миллионов рублей"
Вчера — 20 апреля, понедельник / Москва
В Краснопахорском районе откроется торговая и бытовая зона площадью свыше 800 квадратных метров.
Вчера — 20 апреля, понедельник / Москва
ГК ФСК запустила новый завод по производству строительных материалов в Зеленограде.
Вчера — 20 апреля, понедельник / Санкт-Петербург
Логистическая компания арендовала офисное помещение площадью 730 квадратных метров в бизнес-центре Leader Tower
Вчера — 20 апреля, понедельник / Санкт-Петербург
"Подрядчик выбран для восстановления XIX века почтовой станции в Ленинградской области"
17 апреля, пятница / Москва
"Компания, связанная с Олегом Дерипаской, отозвала свое управление гостиничным комплексом «Имеретинский» в Сириусе"
17 апреля, пятница / Москва
"Выручка компании X5 Group увеличилась на 11,3% за первый квартал"