Снять ПСН 7488 м² в пгт Столбовая
ID 1056479
Цена
7 488 000 ₽/мес
Ставка
12 000 ₽ / м² / год
Площадь
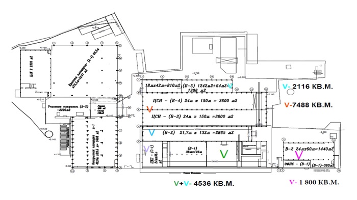
7488 м²
Этаж
1 из -
ИФНС
5043
агентство недвижимости
Московская обл, г Чехов, пгт Столбовая, ул Большая
На карте
Описание
Аренда производственно-складского комплекса 7488 м² в Чехове (рп. Столбовая)
Готовое решение для производства или складской логистики
✅ Ключевые преимущества:
✔ Готовая инфраструктура для стекольного производства
✔ Уникальное оснащение:
Линия промышленной обработки стекла (резка, закалка, фрезеровка, триплексы)
Оборудование для стеклопакетов, окраски и печати
Опция: аренда или выкуп техники
✔ Гибкость формата:
Возможность деления площади
Увеличение мощности при необходимости
🏭 Технические параметры:
• Общая площадь: 7200 м² (150×48 м)
• Два пролета по 150×24 м
• Высота потолков: 8 м
• Нагрузка на пол: 5 т/м²
• Кран-балки: 3 тн и 5 тн
• АБК: 288 м²
⚡ Коммуникации:
• Электроснабжение: 3,4 МВт с возможностью увеличения
• Газопровод на территории – для производственных нужд
• Бетонные полы – долговечность и надежность
🚚 Логистика:
• Трое ворот – удобная погрузка
• Открытая планировка – свобода для организации пространства
💡 Условия:
• Аренда/выкуп оборудования по отдельному согласованию
• Деление площади под задачи арендатора Объект №3100-979929.
Готовое решение для производства или складской логистики
✅ Ключевые преимущества:
✔ Готовая инфраструктура для стекольного производства
✔ Уникальное оснащение:
Линия промышленной обработки стекла (резка, закалка, фрезеровка, триплексы)
Оборудование для стеклопакетов, окраски и печати
Опция: аренда или выкуп техники
✔ Гибкость формата:
Возможность деления площади
Увеличение мощности при необходимости
🏭 Технические параметры:
• Общая площадь: 7200 м² (150×48 м)
• Два пролета по 150×24 м
• Высота потолков: 8 м
• Нагрузка на пол: 5 т/м²
• Кран-балки: 3 тн и 5 тн
• АБК: 288 м²
⚡ Коммуникации:
• Электроснабжение: 3,4 МВт с возможностью увеличения
• Газопровод на территории – для производственных нужд
• Бетонные полы – долговечность и надежность
🚚 Логистика:
• Трое ворот – удобная погрузка
• Открытая планировка – свобода для организации пространства
💡 Условия:
• Аренда/выкуп оборудования по отдельному согласованию
• Деление площади под задачи арендатора Объект №3100-979929.
Расположение
Московская обл, г Чехов, пгт Столбовая, ул Большая
Технические характеристики
Новость дня
Все новости
Вчера — 8 мая, пятница / Москва
Усадьбу XVIII–XIX веков в центре Москвы выставили на аукцион «Дом.РФ»
Вчера — 8 мая, пятница / Москва
Бизнес-центр площадью 43,3 тыс. кв. м открыли в окрестностях Филевского парка.
Вчера — 8 мая, пятница / Крым
Гостиница на полуострове Крым выставлена на продажу по цене 117,7 миллиона рублей.
Вчера — 8 мая, пятница / Москва
В Нагатинской пойме откроется фитнес-клуб в гостиничном комплексе
Вчера — 8 мая, пятница / Москва
"Сменился владелец Торгового центра «Гудзон»"
Вчера — 8 мая, пятница / Москва
"Открытие обновленного футбольного комплекса в СберСити"
Вчера — 8 мая, пятница / Нижегородская
В Нижнем Новгороде будет восстановлен исторический здание для коммерческой аренды.
Вчера — 8 мая, пятница / Архангельская
Офисное здание в центре Архангельска выставлено на торги площадкой «Дом.РФ»
Вчера — 8 мая, пятница / Москва
Группа "Гранд НН" из Нижнего Новгорода продает пять компаний за 3,3 миллиарда рублей.
Вчера — 8 мая, пятница / Москва
Москва увеличила площадь жилой недвижимости на более чем 250 тыс. кв. м с начала года по Межевому плану территории.
7 мая, четверг / Москва
"Маркетплейсы занимают всего 9 % рынка онлайн-продаж продуктов питания"
7 мая, четверг / Москва
"ТРК «Зеленопарк» в Подмосковье выставлен на продажу компанией «Сбербанк капитал»"
7 мая, четверг / Москва
X5 Group планирует приобрести часть акций Zotman Pizza.
7 мая, четверг / Москва
"Уровень вакантности в офисном сегменте рынка Москвы достиг 5,3%"
7 мая, четверг / Москва
"В Московском регионе спрос на склады вырос на 70% благодаря онлайн-торговле и логистике"
7 мая, четверг / Москва
"Снижение объема розничных продаж на 0,5% за первый квартал"
7 мая, четверг / Москва
Планируется строительство девятиэтажного делового центра площадью 16 тыс. кв. м в Щукино.
7 мая, четверг / Москва
Развенчивание мифов: Пять исторических домов в районе Арбата пройдут капитальный ремонт.
7 мая, четверг / Москва
Продажа ТЦ "Летний сад" в Москве группой "Эталон" привела к потере в 2,2 млрд рублей.
7 мая, четверг / Москва
Предприятие "Свобода" под угрозой банкротства из-за задолженности в 125 миллионов рублей