Купить 2к квартиру 64 м² в ЖК Матвеевский парк
Описание
Продаётся 2-комн.квартира площадью 64.80 кв.м на 4 этаже 31 этажного дома (Корпус 4.3, секция 3) проекта ПИК Матвеевский парк. Светлый просторный подъезд на уровне земли, функциональная планировка, большие окна, с отделкой.
«Матвеевский парк» — проект «Серии плюс» в районе Очаково-Матвеевское на западе Москвы. Ближайшая станция метро «Аминьевская» находится всего в 3 минутах пешком, а в 20 минутах — МЦД-4 «Очаково».
Архитектура и лобби
Акцентные белые корпуса с большими окнами делают архитектуру квартала мощной и запоминающейся. А в лобби «Матвеевского парка» будет удобная зона ожидания, где можно встретить друзей, курьера или дождаться такси, а также гостевая туалетная комната и колясочная.
Инфраструктура
Проект входит в состав Матвеевского кластера — современного района, где есть всё необходимое для комфортной жизни. Здесь появятся пять новых школ, шесть детских садов, поликлиника и многофункциональный спортивный комплекс. Откроются площадки для мини-футбола и стритбола, а также СпортХаб «Экстрим» — зона площадью более 3 500 м² для любителей экстремальных видов спорта.
Уже открыта часть пешеходного бульвара, где можно гулять, играть с детьми, заниматься спортом и отдыхать у сухого фонтана с ночной подсветкой. Работает современное общественное пространство ОМА с супермаркетом, магазинами, рестораном и интерьерными студиями.
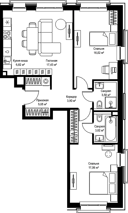
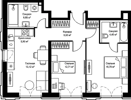
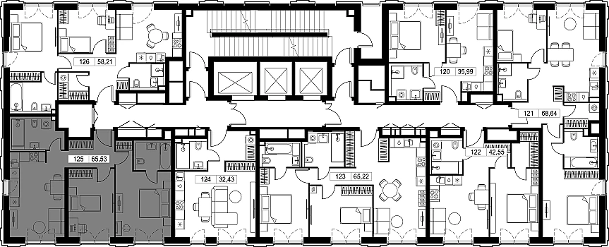
Планировки
В проекте широкий выбор планировок с мастер-спальнями, кухнями-нишами, гардеробными и постирочными. Семьям с детьми понравятся квартиры со спальнями, разнесёнными по разные стороны гостиной. Мы предусмотрели множество вариантов остекления и балконов: есть планировки с панорамными и угловыми окнами, угловыми и классическими балконами. А для тех, кто хочет получить максимум пространства, есть квартиры с потолками до 5,3 метра. Артикул - 971743
«Матвеевский парк» — проект «Серии плюс» в районе Очаково-Матвеевское на западе Москвы. Ближайшая станция метро «Аминьевская» находится всего в 3 минутах пешком, а в 20 минутах — МЦД-4 «Очаково».
Архитектура и лобби
Акцентные белые корпуса с большими окнами делают архитектуру квартала мощной и запоминающейся. А в лобби «Матвеевского парка» будет удобная зона ожидания, где можно встретить друзей, курьера или дождаться такси, а также гостевая туалетная комната и колясочная.
Инфраструктура
Проект входит в состав Матвеевского кластера — современного района, где есть всё необходимое для комфортной жизни. Здесь появятся пять новых школ, шесть детских садов, поликлиника и многофункциональный спортивный комплекс. Откроются площадки для мини-футбола и стритбола, а также СпортХаб «Экстрим» — зона площадью более 3 500 м² для любителей экстремальных видов спорта.
Уже открыта часть пешеходного бульвара, где можно гулять, играть с детьми, заниматься спортом и отдыхать у сухого фонтана с ночной подсветкой. Работает современное общественное пространство ОМА с супермаркетом, магазинами, рестораном и интерьерными студиями.
Планировки
В проекте широкий выбор планировок с мастер-спальнями, кухнями-нишами, гардеробными и постирочными. Семьям с детьми понравятся квартиры со спальнями, разнесёнными по разные стороны гостиной. Мы предусмотрели множество вариантов остекления и балконов: есть планировки с панорамными и угловыми окнами, угловыми и классическими балконами. А для тех, кто хочет получить максимум пространства, есть квартиры с потолками до 5,3 метра. Артикул - 971743
Расположение
г Москва, ш Очаковское, влд 3 к 4
Проспект Вернадского
—
25 мин
Озёрная
—
27 мин
Мичуринский Пр-кт
Мичуринский Пр-кт
Пр-кт Вернадского
—
25 мин
Аминьевская
—
3 мин
Аминьевская
—
3 мин
Технические характеристики
Параметры
Тип сделки
продажа от застройщика
Тип здания
монолитный
Инженерия
лифт
Вид из окна
во двор
Статус владельца объявления
застройщик
Параметры помещения
жилая площадь м²
21.9
площадь кухни м²
18.9
площадь комнат м²
11.5, 10.4
Высота потолков
—
Свободные помещения в ЖК Матвеевский парк
Новость дня
Все новости
Вчера — 26 мая, вторник / Москва
Состав участников XII Фестиваля Плова RRG 2026 был определен
Вчера — 26 мая, вторник / Санкт-Петербург
Дачу Михайловского в Петергофе придется реставрировать по решению суда
Вчера — 26 мая, вторник / Санкт-Петербург
Инвестиции в размере 4,2 млрд рублей направят в новые производства в ОЭЗ Петербурга.
Вчера — 26 мая, вторник / Тверская
"Продажа Бологовского арматурного завода на аукционе за 817,4 млн рублей"
Вчера — 26 мая, вторник / Москва
Аренда 13,2 тыс. кв. м биг-бокса в промпарке "Кувекино"
Вчера — 26 мая, вторник / Москва
"Сеть книжных магазинов 'Буквоед' из Санкт-Петербурга планирует открыть свои первые филиалы в Москве к концу текущего года"
Вчера — 26 мая, вторник / Санкт-Петербург
"Продажа дома отдыха рядом со станцией Сортировочная в Петербурге начнется с цены в 57 млн рублей"
Вчера — 26 мая, вторник / Москва
"Возможная продажа российского бизнеса Reckitt Benckiser компании "Фармстандарт""
Вчера — 26 мая, вторник / Москва
"Продается здание отеля-парка 'Усадьба Морозовка' в Подмосковье"
Вчера — 26 мая, вторник / Санкт-Петербург
Sela планирует открыть свой флагманский магазин на Каменностровском проспекте в Санкт-Петербурге.
25 мая, понедельник / Москва
Большинство конноспортивных клубов находятся в Москве и Санкт-Петербурге.
25 мая, понедельник / Москва
Магазин Familia открылся в районном центре «Место встречи Баку»
25 мая, понедельник / Санкт-Петербург
Сеть "Дринкит" из Москвы планирует запустить корпоративное кафе в Санкт-Петербурге.
25 мая, понедельник / Санкт-Петербург
В Санкт-Петербурге начался процесс восстановления зданий "Ягодного ряда"
25 мая, понедельник / Москва
Снижение стоимости жилья в Дубае на 8%
25 мая, понедельник / Санкт-Петербург
"Число отелей в Санкт-Петербурге увеличено на 1,4 тыс. номеров"
25 мая, понедельник / Москва
Инвестор приобрел все коммерческие площади в бизнес-центре "НУН"
25 мая, понедельник / Санкт-Петербург
"На территории производства «Рыбацкое» в Санкт-Петербурге запланировано строительство light industrial-комплекса"
25 мая, понедельник / Коми
Новая концепция для Индустриального парка «Зеленец» в Коми
25 мая, понедельник / Москва
Как можно перефразировать данное заголовок?