Описание
Продажа готового арендного бизнеса (ГАБ) по адресу: г. Москва, ул. Профсоюзная 152 к 1.
- Окупаемость - #11,5 лет.
- Доходность - 8,7 %/год. Индексация: до 7%
- МАП (месячный арендный поток) - 260 000 руб/мес.
- ДА: до 29.03.2026
- Арендатор: магазин табачной продукции «ТабакВэйп»
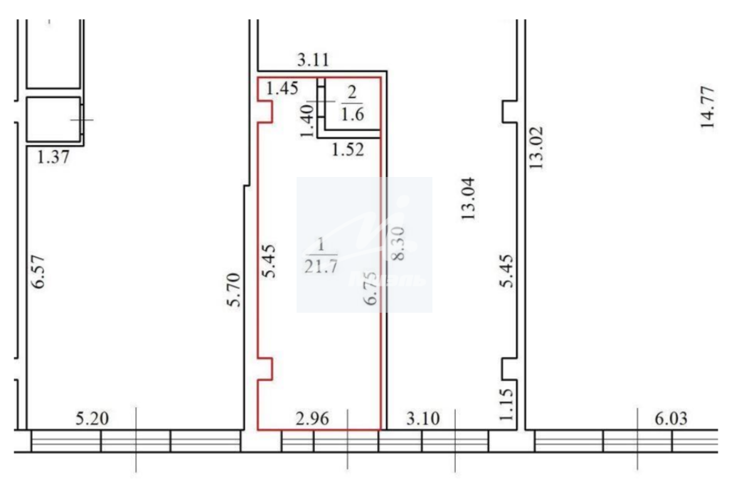
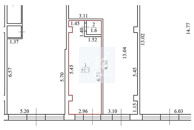
- Общая площадь - 23,3 м2.
- Электрическая мощность - 10 кВт.
- Высота потолков - 3.4 м.
- Первая линия домов ул. Профсоюзная.
- Первый этаж торгового здания
- Отдельный вход
- Большая витрина.
- Помещение и здание после ремонта, в отличном состоянии.
- Развитое сетевое окружение: Почта России, Wildberries, Ароматный Мир, СДЭК, ДоДо
Пицца, Аптека Фармленд, Пятерочка, Аптека Горздрав, ЧИЖИК.
#ГАБ
- Окупаемость - #11,5 лет.
- Доходность - 8,7 %/год. Индексация: до 7%
- МАП (месячный арендный поток) - 260 000 руб/мес.
- ДА: до 29.03.2026
- Арендатор: магазин табачной продукции «ТабакВэйп»
- Общая площадь - 23,3 м2.
- Электрическая мощность - 10 кВт.
- Высота потолков - 3.4 м.
- Первая линия домов ул. Профсоюзная.
- Первый этаж торгового здания
- Отдельный вход
- Большая витрина.
- Помещение и здание после ремонта, в отличном состоянии.
- Развитое сетевое окружение: Почта России, Wildberries, Ароматный Мир, СДЭК, ДоДо
Пицца, Аптека Фармленд, Пятерочка, Аптека Горздрав, ЧИЖИК.
#ГАБ
Расположение
г Москва, ул Профсоюзная, д 152 к 1
Теплый Стан
—
5 мин
Коньково
—
16 мин
Ясенево
—
30 мин
Технические характеристики
Новость дня
Расширение возможностей для B2B-клиентов: Avito вводит новые услуги для строительства складов
На платформе Авито теперь доступна категория "Коммерческое строительство" в сегменте услуг, предлагающая широкий выбор специализированных работ и возведение объектов "под ключ" для бизнеса, что упрощает поиск подрядчиков и субподрядчиков для коммерческих проектов.
Все новости
Сегодня — 4 мая, понедельник / Москва
Вложения в недвижимость России за первую половину текущего года составили 169,5 миллиарда рублей.
Сегодня — 4 мая, понедельник / Москва
Российский складской рынок продолжает расти: площадь складских помещений превысит 60 млн кв. м к концу 2026 года
Сегодня — 4 мая, понедельник / Москва
"Компания "Галс-Девелопмент" получила одобрение на строительство делового центра "Дубининский"."
Сегодня — 4 мая, понедельник / Москва
Инвестиционный фонд "Бумеранг Капитал" стал владельцем половины сети кофеен "Цех 85"
Сегодня — 4 мая, понедельник / Краснодарский
В Анапе откроется первый отель с инновационными IT-сервисами
Сегодня — 4 мая, понедельник / Москва
Планируется строительство торгового центра площадью свыше 6 тыс. кв. м в Краснопахорском районе Москвы.
Сегодня — 4 мая, понедельник / Москва
Смена собственника у клубов «Дикая орхидея» и «Дефиле»
Сегодня — 4 мая, понедельник / Вологодская
"Прекращена деятельность "наливаек" и магазинов электронных сигарет в Вологодской области"
Сегодня — 4 мая, понедельник / Москва
"Exeed перемещает производство из Подмосковья на площадку АГР в Шушарах"
Сегодня — 4 мая, понедельник / Москва
На юге Москвы запланировано строительство ТПУ "Кленовый бульвар" на площади 2 гектара.
30 апреля, четверг / Москва
"Бумеранг Капитал" увеличил свою долю в сети кафе-пекарен "Цех 85" до 50%
30 апреля, четверг / Ставропольский
В Кисловодске начался проект строительства инвестиционного отеля "Реликт"
30 апреля, четверг / Москва
Ресторан «Долина 5165» и магазин Sokolov теперь доступны посетителям ТРЦ Avenue Sever
30 апреля, четверг / Москва
"Новый флагманский магазин под названием «Флаувау» открыл свои двери на Мясницкой улице"
30 апреля, четверг / Москва
"Уровень вакансии на складах в Московском регионе достиг 5,4% из-за увеличения предложений по субаренде"
30 апреля, четверг / Москва
"Прогнозируется незначительный прирост числа туристов в первом квартале 2026 года - всего 2,8%"
30 апреля, четверг / Москва
Компания "Ориентир" планирует вложить до 150 млрд рублей в расширение бизнеса и развитие новых секторов.
30 апреля, четверг / Москва
"Завершено строительство наземной парковки на 400 автомобильных мест в парке «Ривер Парк Коломенское»"
30 апреля, четверг / Москва
Скорось открытия новых магазинов «Лэтуаль» снизится - 150 точек закроются к 2026 году.
30 апреля, четверг / Москва
Смайл-бар сети "Белая точка" теперь доступен посетителям ТЦ "Левел Причальный"