Купить ПСН 170 м² в ЖК на Дмитровском 89
Описание
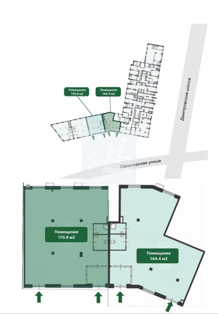
Продажа торгового помещения/помещения свободного назначения по адресу: г. Москва, Дмитровское шоссе, уч. 89.
- Общая площадь - 170,9 м2.
- Высота потолков - 4 м.
- Встроенно-пристроенное торговое помещение.
- 2 отдельных входа на первом этаже 46-ти этажного жилого дома.
- Открытая планировка.
- Витринное остекление.
- Помещение удачно расположено на пешеходной и транспортной артерии.
- Напротив помещения открывается один из крупнейших ТЦ Москвы “AVENUE SEVER” с ожидаемым трафиком 45 000 чел/день.
- Помещение расположено на первой линии вдоль автомобильной дороги.
- В пешей доступности расположены остановки общественного транспорта и станция метро Селигерская с среднесуточным пассажиропотоком 100 тыс. чел.
- Есть возможность покупки соседнего помещения с площадью 144,4 м2 для объединения. (ID 537451)
- Ввод в эксплуатацию - 2 кв. 2027 г.
- Выдача ключей - 2027 г.
- Цена квадратного метра к моменту ввода в эксплуатацию повысится в 2 раза!
#ТП #ПСН
- Общая площадь - 170,9 м2.
- Высота потолков - 4 м.
- Встроенно-пристроенное торговое помещение.
- 2 отдельных входа на первом этаже 46-ти этажного жилого дома.
- Открытая планировка.
- Витринное остекление.
- Помещение удачно расположено на пешеходной и транспортной артерии.
- Напротив помещения открывается один из крупнейших ТЦ Москвы “AVENUE SEVER” с ожидаемым трафиком 45 000 чел/день.
- Помещение расположено на первой линии вдоль автомобильной дороги.
- В пешей доступности расположены остановки общественного транспорта и станция метро Селигерская с среднесуточным пассажиропотоком 100 тыс. чел.
- Есть возможность покупки соседнего помещения с площадью 144,4 м2 для объединения. (ID 537451)
- Ввод в эксплуатацию - 2 кв. 2027 г.
- Выдача ключей - 2027 г.
- Цена квадратного метра к моменту ввода в эксплуатацию повысится в 2 раза!
#ТП #ПСН
Расположение
г Москва, ш Дмитровское, влд 89 стр 2
Технические характеристики
Свободные помещения в ЖК на Дмитровском 89
Новость дня
Расширение возможностей для B2B-клиентов: Avito вводит новые услуги для строительства складов
На платформе Авито теперь доступна категория "Коммерческое строительство" в сегменте услуг, предлагающая широкий выбор специализированных работ и возведение объектов "под ключ" для бизнеса, что упрощает поиск подрядчиков и субподрядчиков для коммерческих проектов.
Все новости
Сегодня — 4 мая, понедельник / Москва
Вложения в недвижимость России за первую половину текущего года составили 169,5 миллиарда рублей.
Сегодня — 4 мая, понедельник / Москва
Российский складской рынок продолжает расти: площадь складских помещений превысит 60 млн кв. м к концу 2026 года
Сегодня — 4 мая, понедельник / Москва
"Компания "Галс-Девелопмент" получила одобрение на строительство делового центра "Дубининский"."
Сегодня — 4 мая, понедельник / Москва
Инвестиционный фонд "Бумеранг Капитал" стал владельцем половины сети кофеен "Цех 85"
Сегодня — 4 мая, понедельник / Краснодарский
В Анапе откроется первый отель с инновационными IT-сервисами
Сегодня — 4 мая, понедельник / Москва
Планируется строительство торгового центра площадью свыше 6 тыс. кв. м в Краснопахорском районе Москвы.
Сегодня — 4 мая, понедельник / Москва
Смена собственника у клубов «Дикая орхидея» и «Дефиле»
Сегодня — 4 мая, понедельник / Вологодская
"Прекращена деятельность "наливаек" и магазинов электронных сигарет в Вологодской области"
Сегодня — 4 мая, понедельник / Москва
"Exeed перемещает производство из Подмосковья на площадку АГР в Шушарах"
Сегодня — 4 мая, понедельник / Москва
На юге Москвы запланировано строительство ТПУ "Кленовый бульвар" на площади 2 гектара.
30 апреля, четверг / Москва
"Бумеранг Капитал" увеличил свою долю в сети кафе-пекарен "Цех 85" до 50%
30 апреля, четверг / Ставропольский
В Кисловодске начался проект строительства инвестиционного отеля "Реликт"
30 апреля, четверг / Москва
Ресторан «Долина 5165» и магазин Sokolov теперь доступны посетителям ТРЦ Avenue Sever
30 апреля, четверг / Москва
"Новый флагманский магазин под названием «Флаувау» открыл свои двери на Мясницкой улице"
30 апреля, четверг / Москва
"Уровень вакансии на складах в Московском регионе достиг 5,4% из-за увеличения предложений по субаренде"
30 апреля, четверг / Москва
"Прогнозируется незначительный прирост числа туристов в первом квартале 2026 года - всего 2,8%"
30 апреля, четверг / Москва
Компания "Ориентир" планирует вложить до 150 млрд рублей в расширение бизнеса и развитие новых секторов.
30 апреля, четверг / Москва
"Завершено строительство наземной парковки на 400 автомобильных мест в парке «Ривер Парк Коломенское»"
30 апреля, четверг / Москва
Скорось открытия новых магазинов «Лэтуаль» снизится - 150 точек закроются к 2026 году.
30 апреля, четверг / Москва
Смайл-бар сети "Белая точка" теперь доступен посетителям ТЦ "Левел Причальный"