Описание
Продается отдельно стоящее здание, расположенное по адресу: Москва, ВАО, р-н Соколиная гора, ул. Вольная, д. 35, стр. 8.
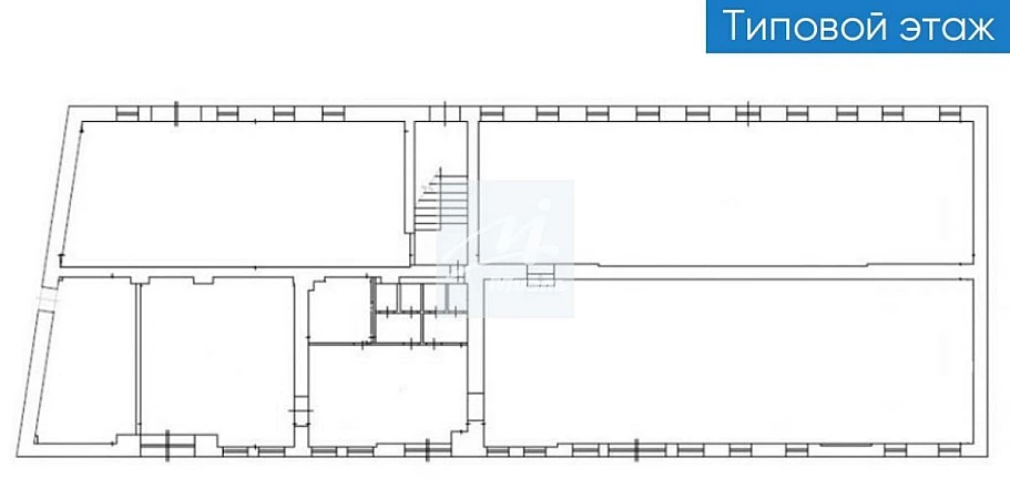
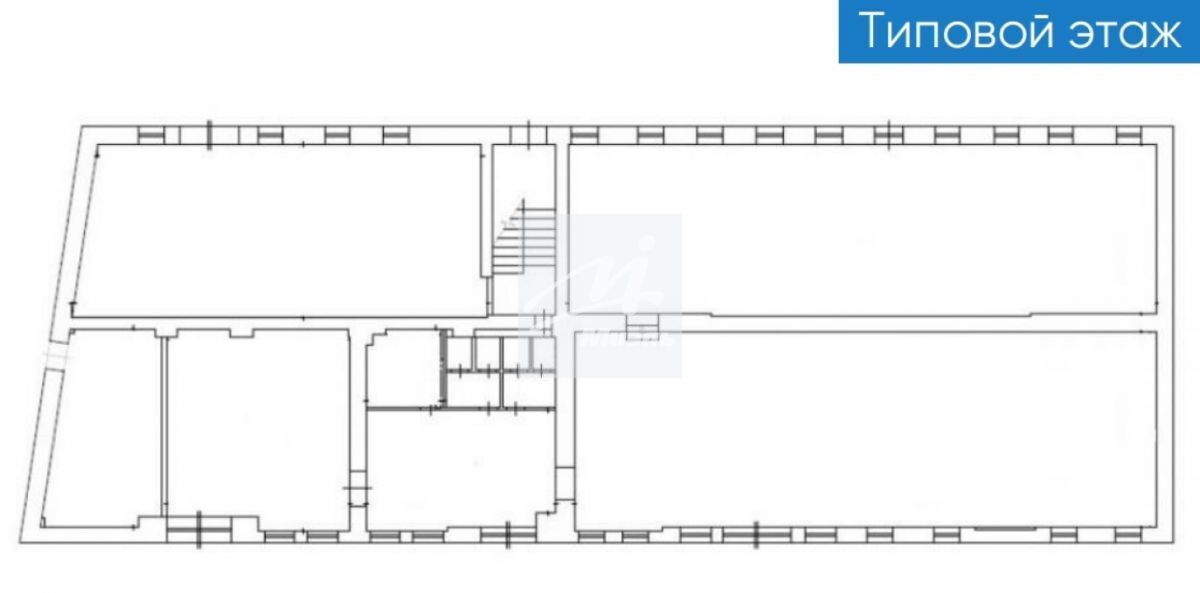
- Площадь здания - 1 539,8 м2.
- Общий ЗУ в аренде до 2061 г.
- ВРИ : Для размещения производственных и административных зданий.
- Электрическая мощность - 149 кВт.
- 3 - этажное здание (без подвала).
- Капитальный ремонт произведен в 2022 г.
- Свободная планировка.
- Коммуникации заменены.
- Новое остекление.
- Наземная парковка.
- 7 отдельных входов с двух сторон здания.
- Высота потолков - от 3 - 8 м.
- Хорошая транспортная развязка.
#ОСЗ #ПСН
- Площадь здания - 1 539,8 м2.
- Общий ЗУ в аренде до 2061 г.
- ВРИ : Для размещения производственных и административных зданий.
- Электрическая мощность - 149 кВт.
- 3 - этажное здание (без подвала).
- Капитальный ремонт произведен в 2022 г.
- Свободная планировка.
- Коммуникации заменены.
- Новое остекление.
- Наземная парковка.
- 7 отдельных входов с двух сторон здания.
- Высота потолков - от 3 - 8 м.
- Хорошая транспортная развязка.
#ОСЗ #ПСН
Расположение
г Москва, ул Вольная, д 35 стр 8
Соколиная Гора
—
12 мин
Семёновская
—
14 мин
Измайлово
—
14 мин
Технические характеристики
Новость дня
Расширение возможностей для B2B-клиентов: Avito вводит новые услуги для строительства складов
На платформе Авито теперь доступна категория "Коммерческое строительство" в сегменте услуг, предлагающая широкий выбор специализированных работ и возведение объектов "под ключ" для бизнеса, что упрощает поиск подрядчиков и субподрядчиков для коммерческих проектов.
Все новости
Вчера — 30 апреля, четверг / Москва
"Бумеранг Капитал" увеличил свою долю в сети кафе-пекарен "Цех 85" до 50%
Вчера — 30 апреля, четверг / Ставропольский
В Кисловодске начался проект строительства инвестиционного отеля "Реликт"
Вчера — 30 апреля, четверг / Москва
Ресторан «Долина 5165» и магазин Sokolov теперь доступны посетителям ТРЦ Avenue Sever
Вчера — 30 апреля, четверг / Москва
"Новый флагманский магазин под названием «Флаувау» открыл свои двери на Мясницкой улице"
Вчера — 30 апреля, четверг / Москва
"Уровень вакансии на складах в Московском регионе достиг 5,4% из-за увеличения предложений по субаренде"
Вчера — 30 апреля, четверг / Москва
"Прогнозируется незначительный прирост числа туристов в первом квартале 2026 года - всего 2,8%"
Вчера — 30 апреля, четверг / Москва
Компания "Ориентир" планирует вложить до 150 млрд рублей в расширение бизнеса и развитие новых секторов.
Вчера — 30 апреля, четверг / Москва
"Завершено строительство наземной парковки на 400 автомобильных мест в парке «Ривер Парк Коломенское»"
Вчера — 30 апреля, четверг / Москва
Скорось открытия новых магазинов «Лэтуаль» снизится - 150 точек закроются к 2026 году.
Вчера — 30 апреля, четверг / Москва
Смайл-бар сети "Белая точка" теперь доступен посетителям ТЦ "Левел Причальный"
29 апреля, среда / Москва
Московский цех открыл производство 3D-принтеров для металлической печати.
29 апреля, среда / Москва
БМ-банк завершил продажу большей части площадей в ТЦ «Весна» на Новом Арбате.
29 апреля, среда / Москва
Перефразированное название: "Сеть магазинов 'Жизньмарт' возобновляет свою деятельность в Челябинске"
29 апреля, среда / Санкт-Петербург
Сервисный офис «Практик» начал свою работу на Октябрьской набережной в Санкт-Петербурге.
29 апреля, среда / Санкт-Петербург
Строительство складских помещений в Санкт-Петербурге и Ленинградской области увеличилось в 2,5 раза.
29 апреля, среда / Москва
Москва увеличила объем строительства в рамках программы МПТ до 9,5 миллионов квадратных метров
29 апреля, среда / Санкт-Петербург
Соседский центр "ЖИВИ Клуб" открыл свои двери в Новоселье
29 апреля, среда / Москва
"Завершено строительство пятиэтажной наземной парковки в районе Нагатинский Затон"
29 апреля, среда / Санкт-Петербург
Рекордный уровень строительства складов зафиксирован в Санкт-Петербурге и Ленинградской области
29 апреля, среда / Москва
Аренда складов в Москве снизилась на 25%