Купить офис 689 м² в бизнес-квартале Прокшино
Описание
Офис 689 м² в бизнес-центре "Прокшино 2-я очередь" (класс B+) - подходит для собственного бизнеса или сдачи в аренду.
Рассчитаем доходность и поможем найти арендатора под этот объект.
Ключевые параметры:
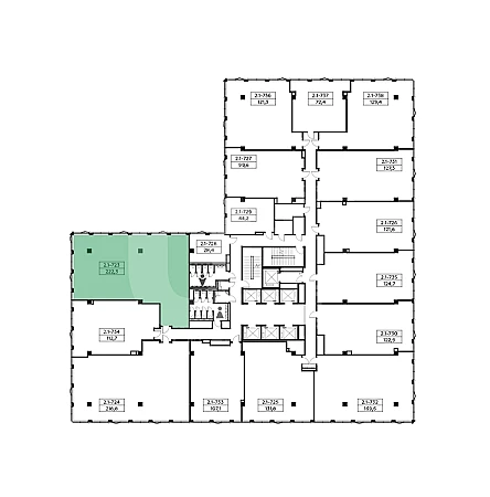
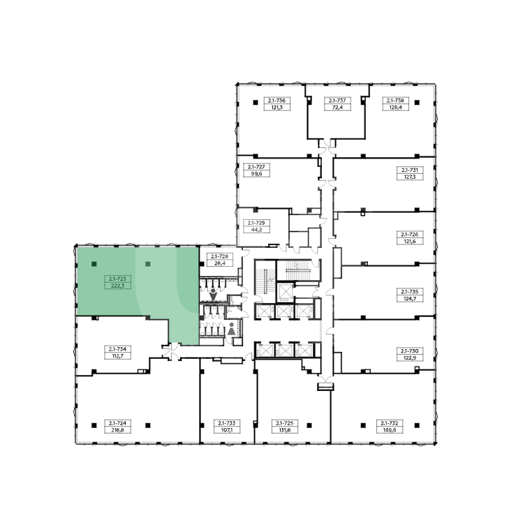
Площадь: 689 м².
Рабочие места: 58-153*.
Планировка: смешанная.
Состояние: под отделку.
Этаж: 7 из 12.
Налоговая: 1.
Метро рядом: м. Мещерская в 2 минутах пешком, м. Говорово в 14 минутах пешком.
Помещение с функциональной смешанной планировкой.
Инженерные системы:
Вентиляция: приточно-вытяжная.
Кондиционирование: центральное.
Охрана: круглосуточная охрана здания.
Бизнес-центр Прокшино (2 очередь) класса В+ расположен рядом с метро Прокшино.
Удобный выезд на:
Киевское шоссе, Калужское шоссе.
Инфраструктура здания:
Торговый центр, панорамный ресторан, фитнес-центр и сервисные службы.
В пешей доступности:
Спортивно-событийный кластер Прокшино, аквакурорт с дайвинг-центром, горнолыжный комплекс и теннисный корт, парк наук с музеем ретроавтомобилей, концертная площадка и киностудия.
Юридические адреса обслуживаются в налоговой №1.
Коммерческие условия:
Стоимость: 162 663 943 руб.
Цена за м²: 236 087 руб.
Налог: включая НДС.
Тип договора: ДКП БНВ
Без комиссии.
По данному объекту:
Поможем рассчитать потенциальную доходность и окупаемость.
Оценим возможный арендный поток по текущему рынку.
При необходимости подберём арендатора.
Если объект рассматривается для инвестиций:
Подберём сопоставимые варианты в этом районе для сравнения.
Поможем оценить ликвидность и перспективу перепродажи.
Позвоните - организуем просмотр, пришлём презентацию и расчёты по доходности и вариантам использования объекта.
*Количество рабочих мест рассчитано автоматически: от 4,5 до 8 м² на человека.
ID объекта: 104197
Рассчитаем доходность и поможем найти арендатора под этот объект.
Ключевые параметры:
Площадь: 689 м².
Рабочие места: 58-153*.
Планировка: смешанная.
Состояние: под отделку.
Этаж: 7 из 12.
Налоговая: 1.
Метро рядом: м. Мещерская в 2 минутах пешком, м. Говорово в 14 минутах пешком.
Помещение с функциональной смешанной планировкой.
Инженерные системы:
Вентиляция: приточно-вытяжная.
Кондиционирование: центральное.
Охрана: круглосуточная охрана здания.
Бизнес-центр Прокшино (2 очередь) класса В+ расположен рядом с метро Прокшино.
Удобный выезд на:
Киевское шоссе, Калужское шоссе.
Инфраструктура здания:
Торговый центр, панорамный ресторан, фитнес-центр и сервисные службы.
В пешей доступности:
Спортивно-событийный кластер Прокшино, аквакурорт с дайвинг-центром, горнолыжный комплекс и теннисный корт, парк наук с музеем ретроавтомобилей, концертная площадка и киностудия.
Юридические адреса обслуживаются в налоговой №1.
Коммерческие условия:
Стоимость: 162 663 943 руб.
Цена за м²: 236 087 руб.
Налог: включая НДС.
Тип договора: ДКП БНВ
Без комиссии.
По данному объекту:
Поможем рассчитать потенциальную доходность и окупаемость.
Оценим возможный арендный поток по текущему рынку.
При необходимости подберём арендатора.
Если объект рассматривается для инвестиций:
Подберём сопоставимые варианты в этом районе для сравнения.
Поможем оценить ликвидность и перспективу перепродажи.
Позвоните - организуем просмотр, пришлём презентацию и расчёты по доходности и вариантам использования объекта.
*Количество рабочих мест рассчитано автоматически: от 4,5 до 8 м² на человека.
ID объекта: 104197
Расположение
г Москва, Сосенское п, кв-л 35, д 10
Озёрная
—
6 мин
Говорово
—
14 мин
Мещерская
—
2 мин
Прокшино
—
1 мин
Филатов луг
—
26 мин
Коммунарка
—
31 мин
Технические характеристики
Параметры
Статус владельца объявления
агентство
Класс
b+
Свободные помещения в Бизнес-квартал Прокшино
Новость дня
Все новости
8 мая, пятница / Москва
Усадьбу XVIII–XIX веков в центре Москвы выставили на аукцион «Дом.РФ»
8 мая, пятница / Москва
Бизнес-центр площадью 43,3 тыс. кв. м открыли в окрестностях Филевского парка.
8 мая, пятница / Крым
Гостиница на полуострове Крым выставлена на продажу по цене 117,7 миллиона рублей.
8 мая, пятница / Москва
В Нагатинской пойме откроется фитнес-клуб в гостиничном комплексе
8 мая, пятница / Москва
"Сменился владелец Торгового центра «Гудзон»"
8 мая, пятница / Москва
"Открытие обновленного футбольного комплекса в СберСити"
8 мая, пятница / Нижегородская
В Нижнем Новгороде будет восстановлен исторический здание для коммерческой аренды.
8 мая, пятница / Архангельская
Офисное здание в центре Архангельска выставлено на торги площадкой «Дом.РФ»
8 мая, пятница / Москва
Группа "Гранд НН" из Нижнего Новгорода продает пять компаний за 3,3 миллиарда рублей.
8 мая, пятница / Москва
Москва увеличила площадь жилой недвижимости на более чем 250 тыс. кв. м с начала года по Межевому плану территории.
7 мая, четверг / Москва
"Маркетплейсы занимают всего 9 % рынка онлайн-продаж продуктов питания"
7 мая, четверг / Москва
"ТРК «Зеленопарк» в Подмосковье выставлен на продажу компанией «Сбербанк капитал»"
7 мая, четверг / Москва
X5 Group планирует приобрести часть акций Zotman Pizza.
7 мая, четверг / Москва
"Уровень вакантности в офисном сегменте рынка Москвы достиг 5,3%"
7 мая, четверг / Москва
"В Московском регионе спрос на склады вырос на 70% благодаря онлайн-торговле и логистике"
7 мая, четверг / Москва
"Снижение объема розничных продаж на 0,5% за первый квартал"
7 мая, четверг / Москва
Планируется строительство девятиэтажного делового центра площадью 16 тыс. кв. м в Щукино.
7 мая, четверг / Москва
Развенчивание мифов: Пять исторических домов в районе Арбата пройдут капитальный ремонт.
7 мая, четверг / Москва
Продажа ТЦ "Летний сад" в Москве группой "Эталон" привела к потере в 2,2 млрд рублей.
7 мая, четверг / Москва
Предприятие "Свобода" под угрозой банкротства из-за задолженности в 125 миллионов рублей