Описание
Предложение на продажу № 35662.
Продается готовый арендный бизнес с федеральными сетевыми арендаторами на долгосрочных договорах аренды.
. Отдельно стоящее здание на Лобненской, д. 14 в САО/Дмитровский
.
. Сложившийся жилой массив, активный и постоянный покупательский спрос
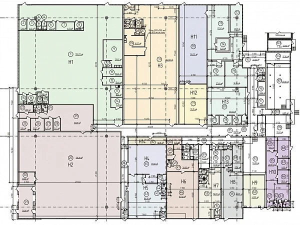
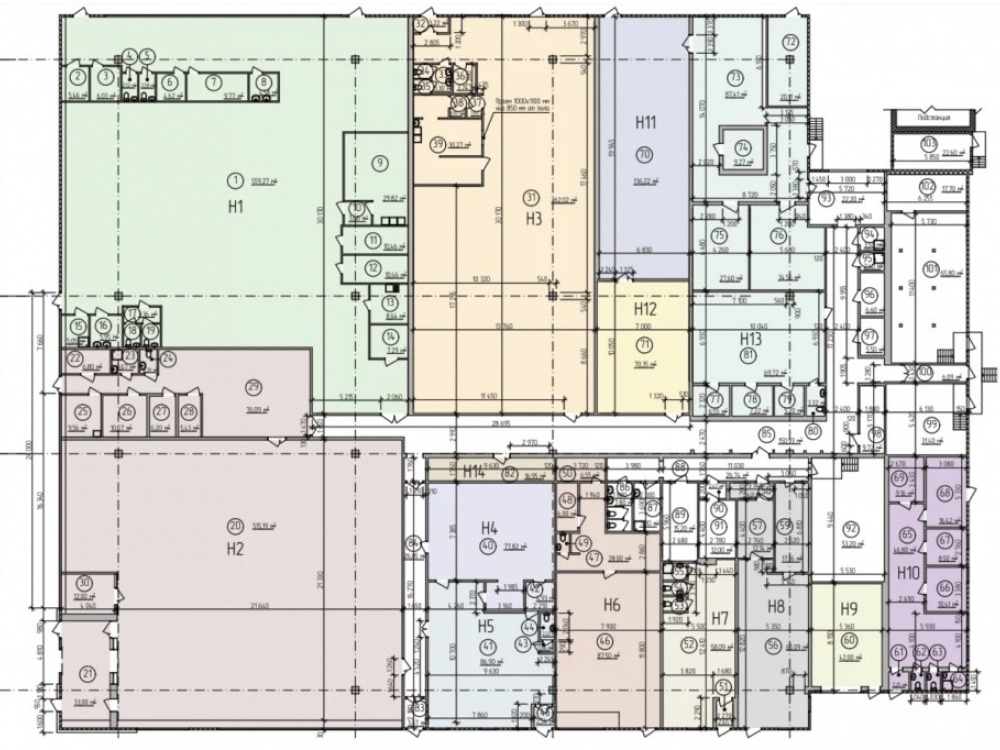
. Арендаторы: Пятерочка, ВкусВилл.Доставка, Яндекс.Лавка, пиццерия Папа Джонс, алкомаркет Винлаб, ПВЗ OZON/Wildberries и другие
.
. Характеристики объекта:
. Площадь 2 611 м² (1 этаж, без подвала )
. Высота потолков 6 м
. Сетка колонн 12*12 м и 12*18 м (свободная планировка)
. Витринное остекление по периметру отличная видимость и презентабельный фасад
. Несколько отдельных входов + дебаркадер
. Каждое помещение
. Торговый блок в жилом массиве, с сетевым арендатором
. Большой паркинг рядом с помещением, круглосуточный доступ
. Большие витрины и место для вывески
. Высота потолков 6 метров, свободная планировка сеткой колонн (18х18м)
. Круглосуточная работа и отсутствие ограничений по сферам деятельности (нежилое торговое здание)
.
. Инженерные коммуникации:
. Электрическая мощность 600 кВт
. Центральное отопление, водоснабжение, канализация
. Парковка по периметру здания
.
. Дополнительные преимущества:
. Готовый арендный бизнес с надежными арендаторами
. Прямая купля-продажа, без обременений
. Высокая ликвидность и доходность
. С арендаторами заключены долгосрочные договоры аренды на 5-10 лет
. Помещения имеют отдельный кадастр. Обеспечены всеми коммуникациями, канализацией и электричеством.
Торговая недвижимость, Street Retail. 1 линия домов. Торговый центр. Витрины. Место для рекламы. Зона разгрузки. Проходное и проездное место.
Арендный бизнес. Окупаемость c индексацией: 7 лет и 2 меc. Ежегодная индексация: 5%. По первому году: 8 лет и 5 меc. Доходность c индексацией: 13.95%. Доходность c индексацией: 13.95%. По первому году: 11.88%. Присутствует арендатор: Папа Джонс, Wildberries, ВкусВилл - Даркстор, Яндекс.Лавка, ПВЗ Озон, Пятёрочка, Винный магазин , Строительная компания. Срок договора: 10 лет.
Без комиссии.
Продается готовый арендный бизнес с федеральными сетевыми арендаторами на долгосрочных договорах аренды.
. Отдельно стоящее здание на Лобненской, д. 14 в САО/Дмитровский
.
. Сложившийся жилой массив, активный и постоянный покупательский спрос
. Арендаторы: Пятерочка, ВкусВилл.Доставка, Яндекс.Лавка, пиццерия Папа Джонс, алкомаркет Винлаб, ПВЗ OZON/Wildberries и другие
.
. Характеристики объекта:
. Площадь 2 611 м² (1 этаж, без подвала )
. Высота потолков 6 м
. Сетка колонн 12*12 м и 12*18 м (свободная планировка)
. Витринное остекление по периметру отличная видимость и презентабельный фасад
. Несколько отдельных входов + дебаркадер
. Каждое помещение
. Торговый блок в жилом массиве, с сетевым арендатором
. Большой паркинг рядом с помещением, круглосуточный доступ
. Большие витрины и место для вывески
. Высота потолков 6 метров, свободная планировка сеткой колонн (18х18м)
. Круглосуточная работа и отсутствие ограничений по сферам деятельности (нежилое торговое здание)
.
. Инженерные коммуникации:
. Электрическая мощность 600 кВт
. Центральное отопление, водоснабжение, канализация
. Парковка по периметру здания
.
. Дополнительные преимущества:
. Готовый арендный бизнес с надежными арендаторами
. Прямая купля-продажа, без обременений
. Высокая ликвидность и доходность
. С арендаторами заключены долгосрочные договоры аренды на 5-10 лет
. Помещения имеют отдельный кадастр. Обеспечены всеми коммуникациями, канализацией и электричеством.
Торговая недвижимость, Street Retail. 1 линия домов. Торговый центр. Витрины. Место для рекламы. Зона разгрузки. Проходное и проездное место.
Арендный бизнес. Окупаемость c индексацией: 7 лет и 2 меc. Ежегодная индексация: 5%. По первому году: 8 лет и 5 меc. Доходность c индексацией: 13.95%. Доходность c индексацией: 13.95%. По первому году: 11.88%. Присутствует арендатор: Папа Джонс, Wildberries, ВкусВилл - Даркстор, Яндекс.Лавка, ПВЗ Озон, Пятёрочка, Винный магазин , Строительная компания. Срок договора: 10 лет.
Без комиссии.
Расположение
г Москва, ул Лобненская, д 14
Ховрино
—
15 мин
Ховрино
—
15 мин
Лианозово
—
16 мин
Марк
—
17 мин
Лианозово
—
22 мин
Технические характеристики
Параметры
Статус владельца объявления
агентство
Новость дня
Расширение возможностей для B2B-клиентов: Avito вводит новые услуги для строительства складов
На платформе Авито теперь доступна категория "Коммерческое строительство" в сегменте услуг, предлагающая широкий выбор специализированных работ и возведение объектов "под ключ" для бизнеса, что упрощает поиск подрядчиков и субподрядчиков для коммерческих проектов.
Все новости
Вчера — 6 мая, среда / Москва
Рекордное количество офисных помещений введено в Москве за первый квартал текущего года.
Вчера — 6 мая, среда / Москва
"Сокращение объемов складских помещений в Московском регионе достигло 14% за первый квартал"
Вчера — 6 мая, среда / Москва
Лишь 10% жилых комплексов располагаются вблизи берега Москвы-реки.
Вчера — 6 мая, среда / Москва
Цены на отели в Москве снизились впервые за два года
Вчера — 6 мая, среда / Карачаево-Черкесская
Капиталовложения в размере 5,83 млрд рублей на развитие курорта "Альто" на Домбае от компании "Плато Девелопмент"
Вчера — 6 мая, среда / Москва
Строительство склада площадью 80 тыс. кв. м для Ozon в Пушкино будет осуществлено компанией NK Group.
Вчера — 6 мая, среда / Санкт-Петербург
«Дача Фаберже в Санкт-Петербурге будет продана на аукционе компанией «Дом.РФ»»
Вчера — 6 мая, среда / Москва
Строительство коммерческих объектов в Москве упало на 91% за год
Вчера — 6 мая, среда / Москва
Как в Москве за первый квартал 2026 года построили 5,433 тыс. кв. м офисов, готовых к адаптации.
Вчера — 6 мая, среда / Санкт-Петербург
Продуктовые сети в России увеличили свои площади в торгово-развлекательном центре Петербурга на треть за последние 6 лет.
Вчера — 6 мая, среда / Москва
С начала года в Москве получили разрешение на строительство более 130 недвижимостей.
5 мая, вторник / Москва
"Сбербанк и Альфа-банк подали в суд на производителя обоев «Артекс» с требованием объявить его банкротом"
5 мая, вторник / Красноярский
"Магазин «ВкусВилл» открыл отдел shop-in-shop в Красноярске через партнерство"
5 мая, вторник / Адыгея
Строительство жилого комплекса на территории туристического парка "Дегуакская поляна" в Адыгее начнется архитектурным проектом от "Семьи" объемом 360 тыс. квадратных метров.
5 мая, вторник / Москва
"Прогнозируется достижение рекордной площади 500 тыс. кв. м под light industrial в Московском регионе к 2026 году"
5 мая, вторник / Астраханская
Фитнес-клуб DDX Fitness открылся в Торгово-Развлекательном Центре «Ярмарка» в городе Астрахань.
5 мая, вторник / Москва
"Объем спроса на офисные помещения в Москве сократился вдвое за последний год"
5 мая, вторник / Москва
"Рост стоимости отделки офисов в Москве превышает уровень инфляции"
5 мая, вторник / Москва
В России впервые за 20 лет не было открыто ни одной новой гостиницы в первом квартале
5 мая, вторник / Москва
Спрос на услуги аренды апартаментов в Санкт-Петербурге упал на четверть.