Купить ПСН 64 м²
ID 1226074
Цена
33 000 000 ₽
Ставка
515 625 ₽ / м²
Площадь
64 м²
Этаж
1 из -
ИФНС
7704
агентство недвижимости
г Москва, ул Новый Арбат, д 30/9
На карте
Смоленская
Смоленская
Баррикадная
—
11 мин
Описание
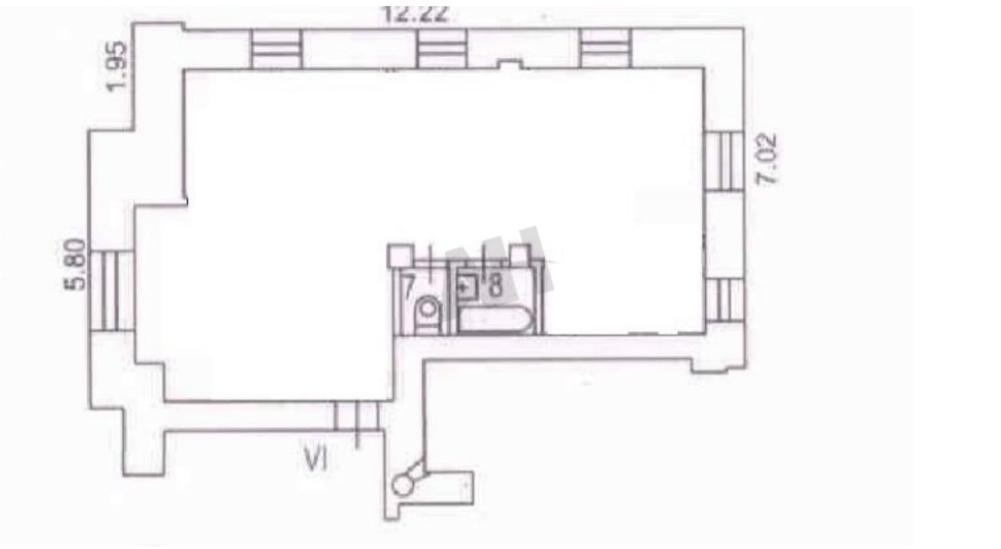
Лот №968333 Продается помещение площадью 64 квадратных метра, расположенное на пересечении Нового Арбата и Садового кольца. Угловое расположение обеспечивает хорошую видимость и стабильный пешеходный и автомобильный поток
Район отличается удобным расположением и развитой инфраструктурой. Рядом находятся здание Правительства РФ, отель Marriott, ФГБУ НМИЦ РК (Национальный медицинский исследовательский центр реабилитации и курортологии), офисные здания, магазины и кафе. В пяти минутах ходьбы — станция метро “Смоленская”, что делает объект легко доступным для сотрудников и клиентов
Во дворе предусмотрена парковка для посетителей. Помещение находится на первом этаже, имеет отдельный вход и витринные окна на фасад, что удобно для торговли, услуг, офиса или шоурума
Сейчас помещение арендует Wildberries, что подтверждает востребованность локации и стабильность арендного спроса
Чтобы получить ПОДРОБНУЮ ПРЕЗЕНТАЦИЮ С ПЛАНИРОВКОЙ И ФОТОГРАФИЯМИ на этот объект, звоните. Высылаем в течение 15 минут по запросу!
☎ Конт. лицо: Наталья Евгеньевна, доб. 258, ЛОТ №968333
Район отличается удобным расположением и развитой инфраструктурой. Рядом находятся здание Правительства РФ, отель Marriott, ФГБУ НМИЦ РК (Национальный медицинский исследовательский центр реабилитации и курортологии), офисные здания, магазины и кафе. В пяти минутах ходьбы — станция метро “Смоленская”, что делает объект легко доступным для сотрудников и клиентов
Во дворе предусмотрена парковка для посетителей. Помещение находится на первом этаже, имеет отдельный вход и витринные окна на фасад, что удобно для торговли, услуг, офиса или шоурума
Сейчас помещение арендует Wildberries, что подтверждает востребованность локации и стабильность арендного спроса
Чтобы получить ПОДРОБНУЮ ПРЕЗЕНТАЦИЮ С ПЛАНИРОВКОЙ И ФОТОГРАФИЯМИ на этот объект, звоните. Высылаем в течение 15 минут по запросу!
☎ Конт. лицо: Наталья Евгеньевна, доб. 258, ЛОТ №968333
Расположение
г Москва, ул Новый Арбат, д 30/9
Смоленская
Смоленская
Баррикадная
—
11 мин
Технические характеристики
Параметры
Статус владельца объявления
агентство
Новость дня
Расширение возможностей для B2B-клиентов: Avito вводит новые услуги для строительства складов
На платформе Авито теперь доступна категория "Коммерческое строительство" в сегменте услуг, предлагающая широкий выбор специализированных работ и возведение объектов "под ключ" для бизнеса, что упрощает поиск подрядчиков и субподрядчиков для коммерческих проектов.
Все новости
Сегодня — 5 мая, вторник / Москва
"Сеть магазинов 'Лента' запустила свой первый розничный магазин специализированных товаров для ремонта, дачи и сада в Шушарах"
Вчера — 4 мая, понедельник / Москва
Вложения в недвижимость России за первую половину текущего года составили 169,5 миллиарда рублей.
Вчера — 4 мая, понедельник / Москва
Российский складской рынок продолжает расти: площадь складских помещений превысит 60 млн кв. м к концу 2026 года
Вчера — 4 мая, понедельник / Москва
"Компания "Галс-Девелопмент" получила одобрение на строительство делового центра "Дубининский"."
Вчера — 4 мая, понедельник / Москва
Инвестиционный фонд "Бумеранг Капитал" стал владельцем половины сети кофеен "Цех 85"
Вчера — 4 мая, понедельник / Краснодарский
В Анапе откроется первый отель с инновационными IT-сервисами
Вчера — 4 мая, понедельник / Москва
Планируется строительство торгового центра площадью свыше 6 тыс. кв. м в Краснопахорском районе Москвы.
Вчера — 4 мая, понедельник / Москва
Смена собственника у клубов «Дикая орхидея» и «Дефиле»
Вчера — 4 мая, понедельник / Вологодская
"Прекращена деятельность "наливаек" и магазинов электронных сигарет в Вологодской области"
Вчера — 4 мая, понедельник / Москва
"Exeed перемещает производство из Подмосковья на площадку АГР в Шушарах"
Вчера — 4 мая, понедельник / Москва
На юге Москвы запланировано строительство ТПУ "Кленовый бульвар" на площади 2 гектара.
30 апреля, четверг / Москва
"Бумеранг Капитал" увеличил свою долю в сети кафе-пекарен "Цех 85" до 50%
30 апреля, четверг / Ставропольский
В Кисловодске начался проект строительства инвестиционного отеля "Реликт"
30 апреля, четверг / Москва
Ресторан «Долина 5165» и магазин Sokolov теперь доступны посетителям ТРЦ Avenue Sever
30 апреля, четверг / Москва
"Новый флагманский магазин под названием «Флаувау» открыл свои двери на Мясницкой улице"
30 апреля, четверг / Москва
"Уровень вакансии на складах в Московском регионе достиг 5,4% из-за увеличения предложений по субаренде"
30 апреля, четверг / Москва
"Прогнозируется незначительный прирост числа туристов в первом квартале 2026 года - всего 2,8%"
30 апреля, четверг / Москва
Компания "Ориентир" планирует вложить до 150 млрд рублей в расширение бизнеса и развитие новых секторов.
30 апреля, четверг / Москва
"Завершено строительство наземной парковки на 400 автомобильных мест в парке «Ривер Парк Коломенское»"
30 апреля, четверг / Москва
Скорось открытия новых магазинов «Лэтуаль» снизится - 150 точек закроются к 2026 году.