Снять офис 1048 м² в особняке Пересветов переулок 8
Описание
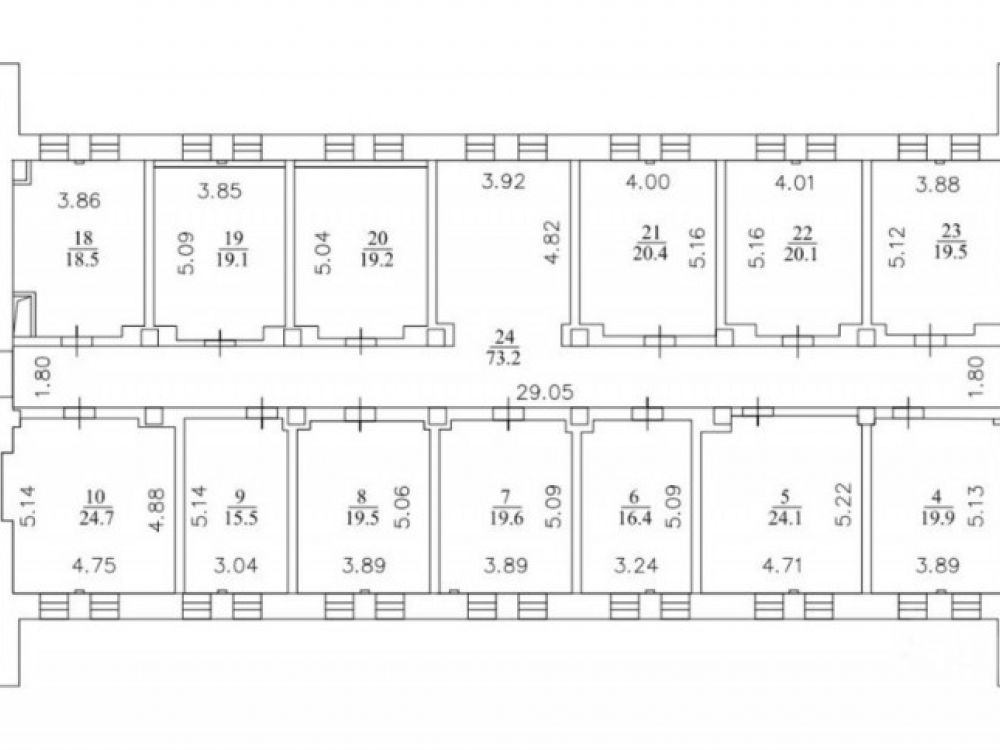
Предложение в аренду № 62539.
Предлагается в аренду помещение на третьем и четвертом этажах в 4-х этажном административном здании.
.
. Арендуемая площадь с учетом коридорного коэффициента 12% 1 174,5 м2 Кабинетная планировка. Возможна перепланировка, организация и оформление пространства под задачи вашего бизнеса.
.
. Рабочее состояние. На время выполнения ремонта возможно предоставление арендных каникул. Арендная ставка 20 000 руб. за м2 в год, включая НДС и эксплуатационные расходы.
.
. ОПЛАЧИВАЮТСЯ ОТДЕЛЬНО: коммунальные платежи и связь.
Без комиссии.
Предлагается в аренду помещение на третьем и четвертом этажах в 4-х этажном административном здании.
.
. Арендуемая площадь с учетом коридорного коэффициента 12% 1 174,5 м2 Кабинетная планировка. Возможна перепланировка, организация и оформление пространства под задачи вашего бизнеса.
.
. Рабочее состояние. На время выполнения ремонта возможно предоставление арендных каникул. Арендная ставка 20 000 руб. за м2 в год, включая НДС и эксплуатационные расходы.
.
. ОПЛАЧИВАЮТСЯ ОТДЕЛЬНО: коммунальные платежи и связь.
Без комиссии.
Расположение
г Москва, пер Пересветов, д 8
Автозаводская
—
10 мин
Автозаводская
—
10 мин
Дубровка
—
12 мин
Технические характеристики
Свободные помещения в Особняк Пересветов переулок 8
Новость дня
Все новости
Вчера — 28 апреля, вторник / Москва
"Появление двух новых брендов на российском рынке в начале 2026 года"
Вчера — 28 апреля, вторник / Москва
27-этажный бизнес-центр класса А в Коммунарке завершает процесс утверждения своего архитектурного дизайна
Вчера — 28 апреля, вторник / Москва
Перефразированное название статьи: "Открытие первого флагманского магазина Lumique в «Авиапарке»"
Вчера — 28 апреля, вторник / Москва
"Подольская фабрика офсетной печати выставляет на приватизацию 49% своих акций"
Вчера — 28 апреля, вторник / Москва
Самострои в ЮВАО: площадь почти 4 тыс. кв. м за первый квартал
Вчера — 28 апреля, вторник / Москва
Иск на 11,7 млрд рублей подан банком «Санкт-Петербург» к структуре «Гранели»
Вчера — 28 апреля, вторник / Москва
"«Яндекс Фабрика» запускает цепь офлайн-магазинов в Москве"
Вчера — 28 апреля, вторник / Москва
Детская сеть магазинов "Кораблик" столкнулась с финансовыми трудностями
Вчера — 28 апреля, вторник / Москва
Снижение загрузки премиум отелей Москвы в первом квартале до 69,4%
Вчера — 28 апреля, вторник / Крым
"Продается комплекс солнечных электростанций на полуострове Крым"
27 апреля, понедельник / Москва
Гастропространство «НеДетский» на 630 посадочных мест открылось в Центральном детском магазине на Лубянке.
27 апреля, понедельник / Москва
"FORMA завершает продажу всех офисных помещений в бизнес-центре «ЛЕЙКС»"
27 апреля, понедельник / Москва
"Прогноз: восстановление офисного рынка Москвы ожидается к 2028 году"
27 апреля, понедельник / Москва
Проект строительства промышленного парка с двумя зданиями на востоке Москвы.
27 апреля, понедельник / Москва
Бизнес-центр площадью 22,7 тыс. кв. м открылся в Нагатинской пойме.
27 апреля, понедельник / Самарская
Недостроенный птицеводческий комплекс "Евробиотех" в Самарской области ищет покупателя
27 апреля, понедельник / Москва
"Планируется строительство восьмиэтажной автостоянки с коммерческими помещениями на 465 машиномест в Новой Москве"
27 апреля, понедельник / Москва
"«Монарх» приобрел участок площадью 1,36 га на территории бывшего Карачаровского механического завода"
27 апреля, понедельник / Москва
"Производство растительного молока от Сварщицы Екатерины"
27 апреля, понедельник / Москва
"Будущее магазинов Gate 31 под угрозой из-за финансовых трудностей"