Купить готовый бизнес 273 м²
ID 1281291
Цена
40 845 000 ₽
Ставка
149 615 ₽ / м²
Площадь
273 м²
Этаж
2 из -
агентство недвижимости
г Москва, ул Рабочая, д 91
На карте
Москва-Товарная
—
17 мин
Описание
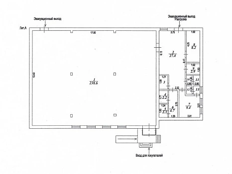
Лот №985872 Предлагаются помещения ГАБ в производственно-складском комплексе в 17 мин от м.Площадь Ильича, м.Римская, ст.Москва-Товарная (МЦД). Отличная транспортная доступность с ТТК, Нижегородской ул., шоссе Энтузиастов, Волгоградского проспекта.
Отдельно стоящее 3-этажное здание на территории производственно-складского комплекса, высота потолков 4,5 м, шаг колонн 6х6 м, пол бетон, нагрузка 2 т/ м², 2 грузовых подъемника (3500 кг), зона разгрузки, пандус.
Центральные коммуникации, вода, канализация, отопление, вентиляция, противопожарная сигнализация. Электричества достаточно для любых проектов.
Здание находится на огороженной территории, доступ 24/7, круглосуточная охрана, видео наблюдение. Парковка на территории, въезд для разгрузки бесплатно, въезд фур с 8 до 20.
Все помещения сданы в аренду, окупаемость 8-8,5 лет. Продажа по ДКП, возможна РАССРОЧКА и промышленная ИПОТЕКА.
Оперативный показ, звоните!
В цену не включено: эксплуатационные расходы.
Чтобы получить ПОДРОБНУЮ ПРЕЗЕНТАЦИЮ С ПЛАНИРОВКОЙ И ФОТОГРАФИЯМИ на этот объект, звоните. Высылаем в течение 15 минут по запросу!
☎ Конт. лицо: Андрей Валерьевич, доб. 253, ЛОТ №985872
Отдельно стоящее 3-этажное здание на территории производственно-складского комплекса, высота потолков 4,5 м, шаг колонн 6х6 м, пол бетон, нагрузка 2 т/ м², 2 грузовых подъемника (3500 кг), зона разгрузки, пандус.
Центральные коммуникации, вода, канализация, отопление, вентиляция, противопожарная сигнализация. Электричества достаточно для любых проектов.
Здание находится на огороженной территории, доступ 24/7, круглосуточная охрана, видео наблюдение. Парковка на территории, въезд для разгрузки бесплатно, въезд фур с 8 до 20.
Все помещения сданы в аренду, окупаемость 8-8,5 лет. Продажа по ДКП, возможна РАССРОЧКА и промышленная ИПОТЕКА.
Оперативный показ, звоните!
В цену не включено: эксплуатационные расходы.
Чтобы получить ПОДРОБНУЮ ПРЕЗЕНТАЦИЮ С ПЛАНИРОВКОЙ И ФОТОГРАФИЯМИ на этот объект, звоните. Высылаем в течение 15 минут по запросу!
☎ Конт. лицо: Андрей Валерьевич, доб. 253, ЛОТ №985872
Расположение
г Москва, ул Рабочая, д 91
Москва-Товарная
—
17 мин
Технические характеристики
Параметры
Статус владельца объявления
агентство
Новость дня
Расширение возможностей для B2B-клиентов: Avito вводит новые услуги для строительства складов
На платформе Авито теперь доступна категория "Коммерческое строительство" в сегменте услуг, предлагающая широкий выбор специализированных работ и возведение объектов "под ключ" для бизнеса, что упрощает поиск подрядчиков и субподрядчиков для коммерческих проектов.
Все новости
Вчера — 6 мая, среда / Москва
Рекордное количество офисных помещений введено в Москве за первый квартал текущего года.
Вчера — 6 мая, среда / Москва
"Сокращение объемов складских помещений в Московском регионе достигло 14% за первый квартал"
Вчера — 6 мая, среда / Москва
Лишь 10% жилых комплексов располагаются вблизи берега Москвы-реки.
Вчера — 6 мая, среда / Москва
Цены на отели в Москве снизились впервые за два года
Вчера — 6 мая, среда / Карачаево-Черкесская
Капиталовложения в размере 5,83 млрд рублей на развитие курорта "Альто" на Домбае от компании "Плато Девелопмент"
Вчера — 6 мая, среда / Москва
Строительство склада площадью 80 тыс. кв. м для Ozon в Пушкино будет осуществлено компанией NK Group.
Вчера — 6 мая, среда / Санкт-Петербург
«Дача Фаберже в Санкт-Петербурге будет продана на аукционе компанией «Дом.РФ»»
Вчера — 6 мая, среда / Москва
Строительство коммерческих объектов в Москве упало на 91% за год
Вчера — 6 мая, среда / Москва
Как в Москве за первый квартал 2026 года построили 5,433 тыс. кв. м офисов, готовых к адаптации.
Вчера — 6 мая, среда / Санкт-Петербург
Продуктовые сети в России увеличили свои площади в торгово-развлекательном центре Петербурга на треть за последние 6 лет.
Вчера — 6 мая, среда / Москва
С начала года в Москве получили разрешение на строительство более 130 недвижимостей.
5 мая, вторник / Москва
"Сбербанк и Альфа-банк подали в суд на производителя обоев «Артекс» с требованием объявить его банкротом"
5 мая, вторник / Красноярский
"Магазин «ВкусВилл» открыл отдел shop-in-shop в Красноярске через партнерство"
5 мая, вторник / Адыгея
Строительство жилого комплекса на территории туристического парка "Дегуакская поляна" в Адыгее начнется архитектурным проектом от "Семьи" объемом 360 тыс. квадратных метров.
5 мая, вторник / Москва
"Прогнозируется достижение рекордной площади 500 тыс. кв. м под light industrial в Московском регионе к 2026 году"
5 мая, вторник / Астраханская
Фитнес-клуб DDX Fitness открылся в Торгово-Развлекательном Центре «Ярмарка» в городе Астрахань.
5 мая, вторник / Москва
"Объем спроса на офисные помещения в Москве сократился вдвое за последний год"
5 мая, вторник / Москва
"Рост стоимости отделки офисов в Москве превышает уровень инфляции"
5 мая, вторник / Москва
В России впервые за 20 лет не было открыто ни одной новой гостиницы в первом квартале
5 мая, вторник / Москва
Спрос на услуги аренды апартаментов в Санкт-Петербурге упал на четверть.