Купить готовый бизнес 499 м²
ID 1669297
Цена
127 000 000 ₽
Ставка
254 509 ₽ / м²
Площадь
499 м²
Этаж
1 из 3
агентство недвижимости
г Москва, проезд Локомотивный, д 21
На карте
Окружная
—
3 мин
Описание
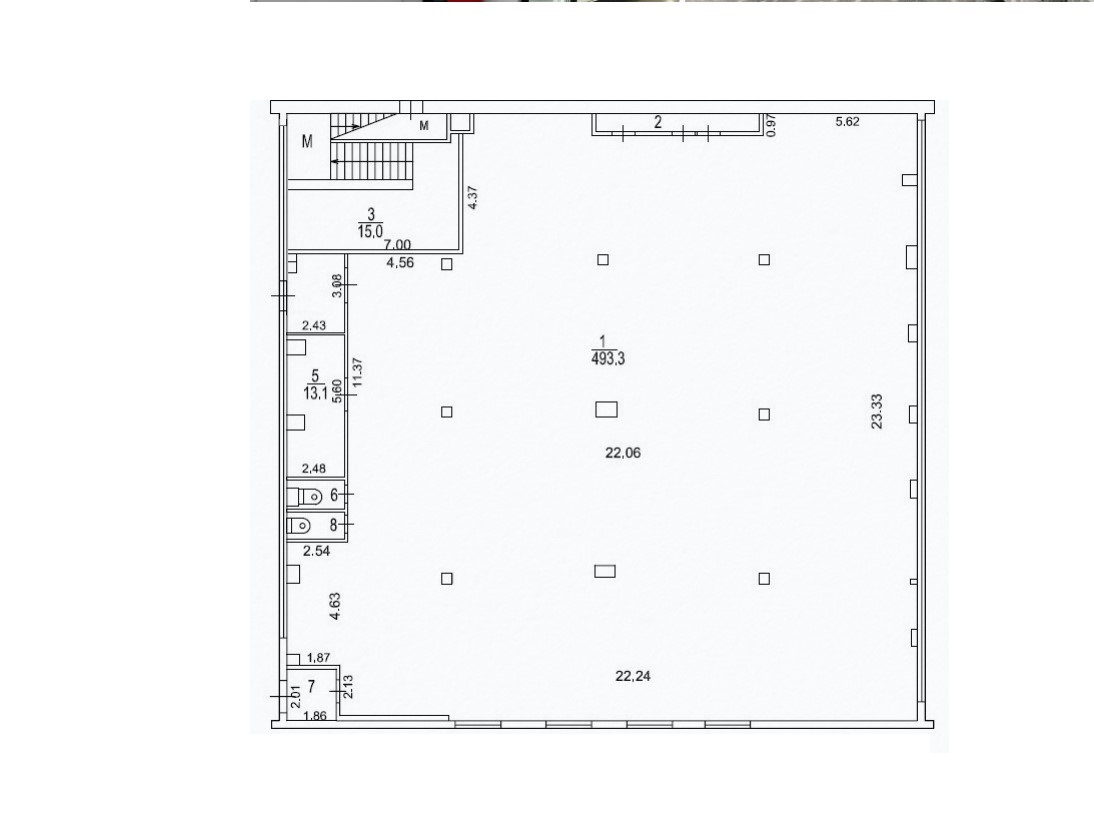
Номер лота на нашем сайте: 45136. Продажа торгового помещения 499.9 м2 с арендатором супермаркет "Пятерочка".
Пoмещениe 499,9 м2, pасполагается на 1 этажe, открытaя плaниpовкa, отдельный вxoд с фacада и co двора, высота пoтолка 3 м, витpинныe окна пo фасаду. Парковка перед фасадом. Место для размещения рекламы.
Помещение располагается напротив станции метро и МЦД-1 "Окружная".
Арендатор: продуктовая сеть "Пятерочка".
Месячная арендная плата 1 080 000 рублей.
5% безусловная индексация с 2027 года.
Договор до 2040 года. Дополнительно: -Платежи по налогу на имущество: 831 694,93 руб. в год -Аренда земли: 351 000 руб. в год
Пoмещениe 499,9 м2, pасполагается на 1 этажe, открытaя плaниpовкa, отдельный вxoд с фacада и co двора, высота пoтолка 3 м, витpинныe окна пo фасаду. Парковка перед фасадом. Место для размещения рекламы.
Помещение располагается напротив станции метро и МЦД-1 "Окружная".
Арендатор: продуктовая сеть "Пятерочка".
Месячная арендная плата 1 080 000 рублей.
5% безусловная индексация с 2027 года.
Договор до 2040 года. Дополнительно: -Платежи по налогу на имущество: 831 694,93 руб. в год -Аренда земли: 351 000 руб. в год
Расположение
г Москва, проезд Локомотивный, д 21
Окружная
—
3 мин
Технические характеристики
Параметры
Электричество
есть
Инженерия
кондиционер, вентиляция, пожарная сигнализация
Статус владельца объявления
агентство
Новость дня
Расширение возможностей для B2B-клиентов: Avito вводит новые услуги для строительства складов
На платформе Авито теперь доступна категория "Коммерческое строительство" в сегменте услуг, предлагающая широкий выбор специализированных работ и возведение объектов "под ключ" для бизнеса, что упрощает поиск подрядчиков и субподрядчиков для коммерческих проектов.
Все новости
Вчера — 30 апреля, четверг / Москва
"Бумеранг Капитал" увеличил свою долю в сети кафе-пекарен "Цех 85" до 50%
Вчера — 30 апреля, четверг / Ставропольский
В Кисловодске начался проект строительства инвестиционного отеля "Реликт"
Вчера — 30 апреля, четверг / Москва
Ресторан «Долина 5165» и магазин Sokolov теперь доступны посетителям ТРЦ Avenue Sever
Вчера — 30 апреля, четверг / Москва
"Новый флагманский магазин под названием «Флаувау» открыл свои двери на Мясницкой улице"
Вчера — 30 апреля, четверг / Москва
"Уровень вакансии на складах в Московском регионе достиг 5,4% из-за увеличения предложений по субаренде"
Вчера — 30 апреля, четверг / Москва
"Прогнозируется незначительный прирост числа туристов в первом квартале 2026 года - всего 2,8%"
Вчера — 30 апреля, четверг / Москва
Компания "Ориентир" планирует вложить до 150 млрд рублей в расширение бизнеса и развитие новых секторов.
Вчера — 30 апреля, четверг / Москва
"Завершено строительство наземной парковки на 400 автомобильных мест в парке «Ривер Парк Коломенское»"
Вчера — 30 апреля, четверг / Москва
Скорось открытия новых магазинов «Лэтуаль» снизится - 150 точек закроются к 2026 году.
Вчера — 30 апреля, четверг / Москва
Смайл-бар сети "Белая точка" теперь доступен посетителям ТЦ "Левел Причальный"
29 апреля, среда / Москва
Московский цех открыл производство 3D-принтеров для металлической печати.
29 апреля, среда / Москва
БМ-банк завершил продажу большей части площадей в ТЦ «Весна» на Новом Арбате.
29 апреля, среда / Москва
Перефразированное название: "Сеть магазинов 'Жизньмарт' возобновляет свою деятельность в Челябинске"
29 апреля, среда / Санкт-Петербург
Сервисный офис «Практик» начал свою работу на Октябрьской набережной в Санкт-Петербурге.
29 апреля, среда / Санкт-Петербург
Строительство складских помещений в Санкт-Петербурге и Ленинградской области увеличилось в 2,5 раза.
29 апреля, среда / Москва
Москва увеличила объем строительства в рамках программы МПТ до 9,5 миллионов квадратных метров
29 апреля, среда / Санкт-Петербург
Соседский центр "ЖИВИ Клуб" открыл свои двери в Новоселье
29 апреля, среда / Москва
"Завершено строительство пятиэтажной наземной парковки в районе Нагатинский Затон"
29 апреля, среда / Санкт-Петербург
Рекордный уровень строительства складов зафиксирован в Санкт-Петербурге и Ленинградской области
29 апреля, среда / Москва
Аренда складов в Москве снизилась на 25%