Снять торговое помещение 72 м² в ЖК Дзен-кварталы
Описание
Аренда от застройщика А101!
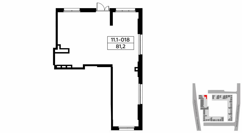
Сдается помещение площадью 72.70. на 1-м этаже ЖК «Дзен-кварталы».
Технические характеристики помещения:
- Помещение свободного назначения с отдельным входом и окнами с видом во двор;
- Без отделки;
- Высокий потолок 4.88 м;
- Свободная планировка;
- Помещение обеспечено коммуникациями: электричество, отопление, водоснабжение, канализация;
- Выделенная электрическая мощность — 15 кВт.
Помещение не сдается в аренду под ПВЗ. Арендные каникулы предоставляются по запросу.
Жилой район «Дзен-кварталы» возводится на юго-западе Москвы в 650 метрах сразу от двух действующих станций метро: «Новомосковская» и «Потапово». Здесь предусмотрен удобный выезд на скоростную трассу СБВ (дублёр МКАД). Всего 2,5 км до Калужского шоссе, 9,5 км до Киевского шоссе и 7,5 км до МКАД.
Новый, активно развивающийся жилой район расположен вдоль Ивановского пруда и реки Варварки. Здесь появится набережная с пешеходным мостом, парк, прогулочные улицы, площади и скверы.
В жилом районе, который возводится по концепции «15-минутный город», прогнозируются активный трафик и платёжеспособная аудитория, заинтересованная в развитой инфраструктуре и качественном сервисе. Всё необходимое для комфортной жизни будет находиться в минутах от дома.
В рамках проекта построят современный образовательный центр и 2 детских сада. Рядом уже работают школа Москомспорта, другие образовательные учреждения, поликлиники.
Ожидаемая численность населения — 14 500 человек.
Всю конкурентную аналитику относительно вашего бизнеса, при приобретении помещения, можно запросить у менеджера А101.
Сдается помещение площадью 72.70. на 1-м этаже ЖК «Дзен-кварталы».
Технические характеристики помещения:
- Помещение свободного назначения с отдельным входом и окнами с видом во двор;
- Без отделки;
- Высокий потолок 4.88 м;
- Свободная планировка;
- Помещение обеспечено коммуникациями: электричество, отопление, водоснабжение, канализация;
- Выделенная электрическая мощность — 15 кВт.
Помещение не сдается в аренду под ПВЗ. Арендные каникулы предоставляются по запросу.
Жилой район «Дзен-кварталы» возводится на юго-западе Москвы в 650 метрах сразу от двух действующих станций метро: «Новомосковская» и «Потапово». Здесь предусмотрен удобный выезд на скоростную трассу СБВ (дублёр МКАД). Всего 2,5 км до Калужского шоссе, 9,5 км до Киевского шоссе и 7,5 км до МКАД.
Новый, активно развивающийся жилой район расположен вдоль Ивановского пруда и реки Варварки. Здесь появится набережная с пешеходным мостом, парк, прогулочные улицы, площади и скверы.
В жилом районе, который возводится по концепции «15-минутный город», прогнозируются активный трафик и платёжеспособная аудитория, заинтересованная в развитой инфраструктуре и качественном сервисе. Всё необходимое для комфортной жизни будет находиться в минутах от дома.
В рамках проекта построят современный образовательный центр и 2 детских сада. Рядом уже работают школа Москомспорта, другие образовательные учреждения, поликлиники.
Ожидаемая численность населения — 14 500 человек.
Всю конкурентную аналитику относительно вашего бизнеса, при приобретении помещения, можно запросить у менеджера А101.
Расположение
г Москва, г Троицк, гск Комплекс, д 3, кв 1
Технические характеристики
Свободные помещения в ЖК Дзен-кварталы
Новость дня
Расширение возможностей для B2B-клиентов: Avito вводит новые услуги для строительства складов
На платформе Авито теперь доступна категория "Коммерческое строительство" в сегменте услуг, предлагающая широкий выбор специализированных работ и возведение объектов "под ключ" для бизнеса, что упрощает поиск подрядчиков и субподрядчиков для коммерческих проектов.
Все новости
Сегодня — 30 апреля, четверг / Москва
"Бумеранг Капитал" увеличил свою долю в сети кафе-пекарен "Цех 85" до 50%
Сегодня — 30 апреля, четверг / Ставропольский
В Кисловодске начался проект строительства инвестиционного отеля "Реликт"
Сегодня — 30 апреля, четверг / Москва
Ресторан «Долина 5165» и магазин Sokolov теперь доступны посетителям ТРЦ Avenue Sever
Сегодня — 30 апреля, четверг / Москва
"Новый флагманский магазин под названием «Флаувау» открыл свои двери на Мясницкой улице"
Сегодня — 30 апреля, четверг / Москва
"Уровень вакансии на складах в Московском регионе достиг 5,4% из-за увеличения предложений по субаренде"
Сегодня — 30 апреля, четверг / Москва
"Прогнозируется незначительный прирост числа туристов в первом квартале 2026 года - всего 2,8%"
Сегодня — 30 апреля, четверг / Москва
Компания "Ориентир" планирует вложить до 150 млрд рублей в расширение бизнеса и развитие новых секторов.
Сегодня — 30 апреля, четверг / Москва
"Завершено строительство наземной парковки на 400 автомобильных мест в парке «Ривер Парк Коломенское»"
Сегодня — 30 апреля, четверг / Москва
Скорось открытия новых магазинов «Лэтуаль» снизится - 150 точек закроются к 2026 году.
Сегодня — 30 апреля, четверг / Москва
Смайл-бар сети "Белая точка" теперь доступен посетителям ТЦ "Левел Причальный"
Вчера — 29 апреля, среда / Москва
Московский цех открыл производство 3D-принтеров для металлической печати.
Вчера — 29 апреля, среда / Москва
БМ-банк завершил продажу большей части площадей в ТЦ «Весна» на Новом Арбате.
Вчера — 29 апреля, среда / Москва
Перефразированное название: "Сеть магазинов 'Жизньмарт' возобновляет свою деятельность в Челябинске"
Вчера — 29 апреля, среда / Санкт-Петербург
Сервисный офис «Практик» начал свою работу на Октябрьской набережной в Санкт-Петербурге.
Вчера — 29 апреля, среда / Санкт-Петербург
Строительство складских помещений в Санкт-Петербурге и Ленинградской области увеличилось в 2,5 раза.
Вчера — 29 апреля, среда / Москва
Москва увеличила объем строительства в рамках программы МПТ до 9,5 миллионов квадратных метров
Вчера — 29 апреля, среда / Санкт-Петербург
Соседский центр "ЖИВИ Клуб" открыл свои двери в Новоселье
Вчера — 29 апреля, среда / Москва
"Завершено строительство пятиэтажной наземной парковки в районе Нагатинский Затон"
Вчера — 29 апреля, среда / Санкт-Петербург
Рекордный уровень строительства складов зафиксирован в Санкт-Петербурге и Ленинградской области
Вчера — 29 апреля, среда / Москва
Аренда складов в Москве снизилась на 25%