Описание
Предложение в аренду № 62888.
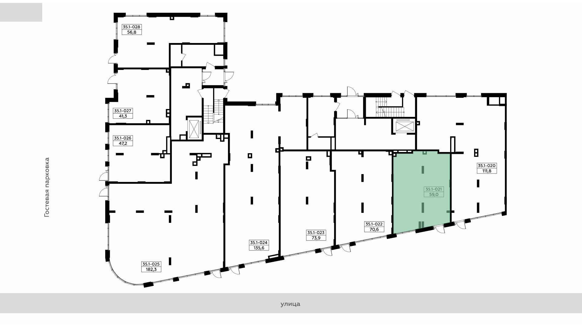
К аренде помещение свободного назначения 75 м2 на 1 этаже в Деловом квартале "Юпорт", проспект Андропова, 11, корпус 1.
. Вход с парковки через центральный лобби, возможно сделать отдельные входные группы с улицы.
.
. Базовые условия: 15 % с товарооборота в сравнении с фиксой 35000 рублей за 1 кв.м в год + НДС 20%,(доплата положительной разницы)
. Эксплуатационные расходы учтены.
. - Панорамное остекление,
. - Отдельные входные группы с зонами разгрузки,
. - Высота потолков от 5 м,
. - Места под вывески на фасаде,
. - Уличное пространство для летней веранды.
.
. Во всех корпусах в местах общего пользования выполнена дизайнерская отделка
. (лобби, лестницы, коридоры на каждом этаже, С/У на каждом этаже)
. -Помещения передаются в состоянии Shell core(без ремонта);
. - Предоставляется комфортное время на ремонт (арендные каникулы);
. - Помещения оснащены радиаторами отопления, системой пожарной безопасности,
. вентиляцией и кондиционированием (без внутренних блоков);
. - В каждом здании лифт из центрального лобби 1100*2100 см (г.п 630 кг);
. - Нагрузка на перекрытия 250 кг/м2;
. - Паркинг вдоль всех корпусов стихийный, муниципальный;
. - Ввод комплекса зданий в эксплуатацию – Объект введен в эксплуатацию, получены
. права на собственность.
.
. Общественно-деловое пространство в самом престижном районе Южного округа Москвы,
. окруженного с трех сторон излучиной Москвы реки.
. Малоэтажная застройка бизнес класса на легендарной набережной, с видом на реку и
. Южный ландшафтный парк «Острова мечты».
. Относительно автомобильного потока, здания расположены на 1-й линии проспекта Андропова по вечерней стороне из центра Москвы.
. Деловой квартал «ЮПОРТ» представляет из себя галерею трехэтажных отдельно стоящих зданий в цепочке с Южным речным вокзалом. Престижная локация, функциональная стильная планировка, фасады, витражное остекление– делают рабочее пространство выгодно привлекательным для размещения любого бизнеса.
.
. «ЮПОРТ» расположен в Нагатинском затоне, на набережной уникального полуострова Москвы:
. • 6 минут пешком от Острова Мечты
. • 9 минут пешком от метро «Технопарк»
. • 5 минут на авто от ТТК
. • 10 минут на авто от центра Москвы
. • Открытие ст. метро «Остров мечты» в 2027 г. на территории Южного ландшафтного парка (3 минуты пешком).
Торговая недвижимость, Street Retail. 1 линия домов. Витрины. Место для рекламы. Проходное и проездное место.
Без комиссии.
К аренде помещение свободного назначения 75 м2 на 1 этаже в Деловом квартале "Юпорт", проспект Андропова, 11, корпус 1.
. Вход с парковки через центральный лобби, возможно сделать отдельные входные группы с улицы.
.
. Базовые условия: 15 % с товарооборота в сравнении с фиксой 35000 рублей за 1 кв.м в год + НДС 20%,(доплата положительной разницы)
. Эксплуатационные расходы учтены.
. - Панорамное остекление,
. - Отдельные входные группы с зонами разгрузки,
. - Высота потолков от 5 м,
. - Места под вывески на фасаде,
. - Уличное пространство для летней веранды.
.
. Во всех корпусах в местах общего пользования выполнена дизайнерская отделка
. (лобби, лестницы, коридоры на каждом этаже, С/У на каждом этаже)
. -Помещения передаются в состоянии Shell core(без ремонта);
. - Предоставляется комфортное время на ремонт (арендные каникулы);
. - Помещения оснащены радиаторами отопления, системой пожарной безопасности,
. вентиляцией и кондиционированием (без внутренних блоков);
. - В каждом здании лифт из центрального лобби 1100*2100 см (г.п 630 кг);
. - Нагрузка на перекрытия 250 кг/м2;
. - Паркинг вдоль всех корпусов стихийный, муниципальный;
. - Ввод комплекса зданий в эксплуатацию – Объект введен в эксплуатацию, получены
. права на собственность.
.
. Общественно-деловое пространство в самом престижном районе Южного округа Москвы,
. окруженного с трех сторон излучиной Москвы реки.
. Малоэтажная застройка бизнес класса на легендарной набережной, с видом на реку и
. Южный ландшафтный парк «Острова мечты».
. Относительно автомобильного потока, здания расположены на 1-й линии проспекта Андропова по вечерней стороне из центра Москвы.
. Деловой квартал «ЮПОРТ» представляет из себя галерею трехэтажных отдельно стоящих зданий в цепочке с Южным речным вокзалом. Престижная локация, функциональная стильная планировка, фасады, витражное остекление– делают рабочее пространство выгодно привлекательным для размещения любого бизнеса.
.
. «ЮПОРТ» расположен в Нагатинском затоне, на набережной уникального полуострова Москвы:
. • 6 минут пешком от Острова Мечты
. • 9 минут пешком от метро «Технопарк»
. • 5 минут на авто от ТТК
. • 10 минут на авто от центра Москвы
. • Открытие ст. метро «Остров мечты» в 2027 г. на территории Южного ландшафтного парка (3 минуты пешком).
Торговая недвижимость, Street Retail. 1 линия домов. Витрины. Место для рекламы. Проходное и проездное место.
Без комиссии.
Расположение
г Москва, пр-кт Андропова, д 11 к 2
Технопарк
—
10 мин
Коломенская
—
19 мин
Кленовый бульвар
—
20 мин
Технические характеристики
Новость дня
Все новости
Вчера — 27 апреля, понедельник / Москва
Гастропространство «НеДетский» на 630 посадочных мест открылось в Центральном детском магазине на Лубянке.
Вчера — 27 апреля, понедельник / Москва
"FORMA завершает продажу всех офисных помещений в бизнес-центре «ЛЕЙКС»"
Вчера — 27 апреля, понедельник / Москва
"Прогноз: восстановление офисного рынка Москвы ожидается к 2028 году"
Вчера — 27 апреля, понедельник / Москва
Проект строительства промышленного парка с двумя зданиями на востоке Москвы.
Вчера — 27 апреля, понедельник / Москва
Бизнес-центр площадью 22,7 тыс. кв. м открылся в Нагатинской пойме.
Вчера — 27 апреля, понедельник / Самарская
Недостроенный птицеводческий комплекс "Евробиотех" в Самарской области ищет покупателя
Вчера — 27 апреля, понедельник / Москва
"Планируется строительство восьмиэтажной автостоянки с коммерческими помещениями на 465 машиномест в Новой Москве"
Вчера — 27 апреля, понедельник / Москва
"«Монарх» приобрел участок площадью 1,36 га на территории бывшего Карачаровского механического завода"
Вчера — 27 апреля, понедельник / Москва
"Производство растительного молока от Сварщицы Екатерины"
Вчера — 27 апреля, понедельник / Москва
"Будущее магазинов Gate 31 под угрозой из-за финансовых трудностей"
Вчера — 27 апреля, понедельник / Воронежская
Название статьи: "Открытие клубов Spirit Fitness площадью не менее 1,6 тыс. кв. м в Воронеже и Липецке"
24 апреля, пятница / Москва
"Продажа бывшего офиса ПСБ на Таганке на аукционе"
24 апреля, пятница / Москва
Компания Level Group планирует создать в юго-восточной части Москвы Многофункциональный комплекс с отелем, термальным центром и спортивными объектами
24 апреля, пятница / Москва
"Более миллиона квадратных метров складских помещений доступны для использования в Московском регионе"
24 апреля, пятница / Санкт-Петербург
Инвестиции в петербургскую недвижимость уменьшились на 9% за первый квартал
24 апреля, пятница / Москва
В Бутырском районе планируют построить бизнес-центр с амфитеатром.
24 апреля, пятница / Москва
"ГК «Калашников» приобрела часть акций десяти швейных фабрик"
24 апреля, пятница / Москва
"«Восток Инвестиции» приобрел долю в 20% компании Tasty Coffee"
24 апреля, пятница / Москва
Магазин «М.Косметик» открыл свой первый филиал в Краснодарском крае, специализирующийся на товарах для дома.
24 апреля, пятница / Москва
В Тверском районе Москвы планируется создание дворцово-садового комплекса с водоемом рядом с жилым домом.