Описание
Предложение в аренду № 62904.
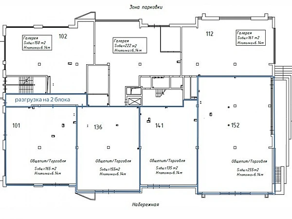
К аренде помещение свободного назначения 710 м2 на 1 этаже с видом на набережную в Деловом квартале "Юпорт", проспект Андропова, 11, корпус 5
.
. 1этаж(ритейл) 710 м2:
. • с набережной, блоки 165м2, 155м2, 135 м2, 255 м2, высота потолка 6м, отдельный вход;
.
. Базовые условия: 15 % с товарооборота в сравнении с фиксой 35000 рублей за 1 кв.м в год + НДС 20%,(доплата положительной разницы)
. Эксплуатационные расходы учтены.
. - Панорамное остекление,
. - Отдельные входные группы с зонами разгрузки,
. - Высота потолков от 5 м,
. - Места под вывески на фасаде,
. - Уличное пространство для летней веранды.
.
. Во всех корпусах в местах общего пользования выполнена дизайнерская отделка
. (лобби, лестницы, коридоры на каждом этаже, С/У на каждом этаже)
. -Помещения передаются в состоянии Shell core(без ремонта);
. - Предоставляется комфортное время на ремонт (арендные каникулы);
. - Помещения оснащены радиаторами отопления, системой пожарной безопасности,
. вентиляцией и кондиционированием (без внутренних блоков);
. - В каждом здании лифт из центрального лобби 1100*2100 см (г.п 630 кг);
. - Нагрузка на перекрытия 250 кг/м2;
. - Паркинг вдоль всех корпусов стихийный, муниципальный;
. - Ввод комплекса зданий в эксплуатацию – Объект введен в эксплуатацию, получены
. права на собственность.
.
. Общественно-деловое пространство в самом престижном районе Южного округа Москвы,
. окруженного с трех сторон излучиной Москвы реки.
. Малоэтажная застройка бизнес класса на легендарной набережной, с видом на реку и
. Южный ландшафтный парк «Острова мечты».
. Относительно автомобильного потока, здания расположены на 1-й линии проспекта Андропова по вечерней стороне из центра Москвы.
. Деловой квартал «ЮПОРТ» представляет из себя галерею трехэтажных отдельно стоящих зданий в цепочке с Южным речным вокзалом. Престижная локация, функциональная стильная планировка, фасады, витражное остекление– делают рабочее пространство выгодно привлекательным для размещения любого бизнеса.
.
. «ЮПОРТ» расположен в Нагатинском затоне, на набережной уникального полуострова Москвы:
. • 6 минут пешком от Острова Мечты
. • 9 минут пешком от метро «Технопарк»
. • 5 минут на авто от ТТК
. • 10 минут на авто от центра Москвы
. • Открытие ст. метро «Остров мечты» в 2027 г. на территории Южного ландшафтного парка (3 минуты пешком).
Торговая недвижимость, Street Retail. 1 линия домов. Витрины. Место для рекламы. Проходное и проездное место.
Без комиссии.
К аренде помещение свободного назначения 710 м2 на 1 этаже с видом на набережную в Деловом квартале "Юпорт", проспект Андропова, 11, корпус 5
.
. 1этаж(ритейл) 710 м2:
. • с набережной, блоки 165м2, 155м2, 135 м2, 255 м2, высота потолка 6м, отдельный вход;
.
. Базовые условия: 15 % с товарооборота в сравнении с фиксой 35000 рублей за 1 кв.м в год + НДС 20%,(доплата положительной разницы)
. Эксплуатационные расходы учтены.
. - Панорамное остекление,
. - Отдельные входные группы с зонами разгрузки,
. - Высота потолков от 5 м,
. - Места под вывески на фасаде,
. - Уличное пространство для летней веранды.
.
. Во всех корпусах в местах общего пользования выполнена дизайнерская отделка
. (лобби, лестницы, коридоры на каждом этаже, С/У на каждом этаже)
. -Помещения передаются в состоянии Shell core(без ремонта);
. - Предоставляется комфортное время на ремонт (арендные каникулы);
. - Помещения оснащены радиаторами отопления, системой пожарной безопасности,
. вентиляцией и кондиционированием (без внутренних блоков);
. - В каждом здании лифт из центрального лобби 1100*2100 см (г.п 630 кг);
. - Нагрузка на перекрытия 250 кг/м2;
. - Паркинг вдоль всех корпусов стихийный, муниципальный;
. - Ввод комплекса зданий в эксплуатацию – Объект введен в эксплуатацию, получены
. права на собственность.
.
. Общественно-деловое пространство в самом престижном районе Южного округа Москвы,
. окруженного с трех сторон излучиной Москвы реки.
. Малоэтажная застройка бизнес класса на легендарной набережной, с видом на реку и
. Южный ландшафтный парк «Острова мечты».
. Относительно автомобильного потока, здания расположены на 1-й линии проспекта Андропова по вечерней стороне из центра Москвы.
. Деловой квартал «ЮПОРТ» представляет из себя галерею трехэтажных отдельно стоящих зданий в цепочке с Южным речным вокзалом. Престижная локация, функциональная стильная планировка, фасады, витражное остекление– делают рабочее пространство выгодно привлекательным для размещения любого бизнеса.
.
. «ЮПОРТ» расположен в Нагатинском затоне, на набережной уникального полуострова Москвы:
. • 6 минут пешком от Острова Мечты
. • 9 минут пешком от метро «Технопарк»
. • 5 минут на авто от ТТК
. • 10 минут на авто от центра Москвы
. • Открытие ст. метро «Остров мечты» в 2027 г. на территории Южного ландшафтного парка (3 минуты пешком).
Торговая недвижимость, Street Retail. 1 линия домов. Витрины. Место для рекламы. Проходное и проездное место.
Без комиссии.
Расположение
г Москва, пр-кт Андропова, д 11 к 2
Технопарк
—
10 мин
Коломенская
—
19 мин
Кленовый бульвар
—
20 мин
Технические характеристики
Новость дня
Все новости
24 апреля, пятница / Москва
"Продажа бывшего офиса ПСБ на Таганке на аукционе"
24 апреля, пятница / Москва
Компания Level Group планирует создать в юго-восточной части Москвы Многофункциональный комплекс с отелем, термальным центром и спортивными объектами
24 апреля, пятница / Москва
"Более миллиона квадратных метров складских помещений доступны для использования в Московском регионе"
24 апреля, пятница / Санкт-Петербург
Инвестиции в петербургскую недвижимость уменьшились на 9% за первый квартал
24 апреля, пятница / Москва
В Бутырском районе планируют построить бизнес-центр с амфитеатром.
24 апреля, пятница / Москва
"ГК «Калашников» приобрела часть акций десяти швейных фабрик"
24 апреля, пятница / Москва
"«Восток Инвестиции» приобрел долю в 20% компании Tasty Coffee"
24 апреля, пятница / Москва
Магазин «М.Косметик» открыл свой первый филиал в Краснодарском крае, специализирующийся на товарах для дома.
24 апреля, пятница / Москва
В Тверском районе Москвы планируется создание дворцово-садового комплекса с водоемом рядом с жилым домом.
24 апреля, пятница / Москва
"Компания 'Росспиртпром' находится в процессе обсуждения возможности приобретения компании Stellar Group"
23 апреля, четверг / Москва
STONE предлагает комплексный ремонт офисных помещений по цене от 85 тыс. руб. за квадратный метр.
23 апреля, четверг / Краснодарский
"Продаётся агрокомбинат «Тепличный» в Краснодаре за 2,8 млрд рублей"
23 апреля, четверг / Москва
Nike увеличил срок действия исключительных прав на свои бренды в России до 2036 года
23 апреля, четверг / Москва
Расширение площади флагманского магазина AMAZING RED в ТРЦ "Авиапарк"
23 апреля, четверг / Москва
"Магазин «Азбука вкуса» теперь работает круглосуточно в ЖК «Остров»"
23 апреля, четверг / Москва
"Появится комьюнити-центр с крышным огородом в районе Прокшино"
23 апреля, четверг / Москва
"Разработчик жилищного проекта "Дом.РФ" продал земельные участки общей площадью 175 гектаров в 24 регионах за первый квартал"
23 апреля, четверг / Москва
"Снижение инвестиций в коммерческую недвижимость России в первом квартале на 64%"
23 апреля, четверг / Татарстан
В Казани будет возведен самый просторный президентский люкс России
23 апреля, четверг / Москва
В галерее «Чкалов» появились уголки с итальянскими и паназиатскими блюдами.