Снять ПСН 69 м²
ID 1417752
Цена
3 304 790 ₽/мес
Ставка
574 746 ₽ / м² / год
Площадь
69 м²
Этаж
1 из -
ИФНС
7703
агентство недвижимости
г Москва, б-р Никитский, д 6/20
На карте
Арбатская
—
1 мин
Арбатская
—
1 мин
Описание
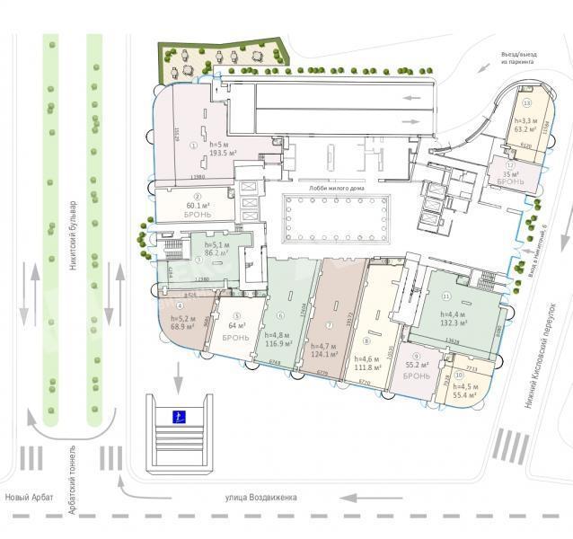
Лот №1008298 Предлагаем в аренду коммерческое помещение 68.9 м2 в престижном бизнес-доме «Никитский 6»!
Идеальное расположение в самом сердце Москвы — на пересечении улицы Воздвиженка и Никитского бульвара, напротив станции метро «Арбатская». Всего 5 минут пешком до Большой Никитской улицы и знаменитых Патриарших прудов.
Преимущества помещения:
✅ Отдельный вход с фасада
✅ Витринные окна и свободная планировка
✅ Высота потолков — 5.2 м
✅ Возможность размещения вывески
✅ Наличие мокрой точки
✅ Достаточная электрическая мощность для любого вида бизнеса
Высокий пешеходный трафик, соседство с деловыми, культурными и образовательными центрами, а также отличная транспортная доступность (метро и наземный транспорт в шаговой доступности) гарантируют максимальную проходимость и интерес со стороны клиентов.
Идеально подойдёт для бутика, кафе, салона, офиса или show-room!
Стоимость аренды: 574746 руб/м2/год (3304790 руб в месяц) УСН. В цену включено: эксплуатационные расходы. В цену не включено: затраты на электричество, коммунальные расходы, уборка.
Чтобы получить ПОДРОБНУЮ ПРЕЗЕНТАЦИЮ С ПЛАНИРОВКОЙ И ФОТОГРАФИЯМИ на этот объект, звоните. Высылаем в течение 15 минут по запросу!
☎ Конт. лицо: Алексей Владимирович, доб. 217, ЛОТ №1008298
Идеальное расположение в самом сердце Москвы — на пересечении улицы Воздвиженка и Никитского бульвара, напротив станции метро «Арбатская». Всего 5 минут пешком до Большой Никитской улицы и знаменитых Патриарших прудов.
Преимущества помещения:
✅ Отдельный вход с фасада
✅ Витринные окна и свободная планировка
✅ Высота потолков — 5.2 м
✅ Возможность размещения вывески
✅ Наличие мокрой точки
✅ Достаточная электрическая мощность для любого вида бизнеса
Высокий пешеходный трафик, соседство с деловыми, культурными и образовательными центрами, а также отличная транспортная доступность (метро и наземный транспорт в шаговой доступности) гарантируют максимальную проходимость и интерес со стороны клиентов.
Идеально подойдёт для бутика, кафе, салона, офиса или show-room!
Стоимость аренды: 574746 руб/м2/год (3304790 руб в месяц) УСН. В цену включено: эксплуатационные расходы. В цену не включено: затраты на электричество, коммунальные расходы, уборка.
Чтобы получить ПОДРОБНУЮ ПРЕЗЕНТАЦИЮ С ПЛАНИРОВКОЙ И ФОТОГРАФИЯМИ на этот объект, звоните. Высылаем в течение 15 минут по запросу!
☎ Конт. лицо: Алексей Владимирович, доб. 217, ЛОТ №1008298
Расположение
г Москва, б-р Никитский, д 6/20
Арбатская
—
1 мин
Арбатская
—
1 мин
Технические характеристики
Новость дня
Все новости
Сегодня — 28 апреля, вторник / Москва
"Появление двух новых брендов на российском рынке в начале 2026 года"
Сегодня — 28 апреля, вторник / Москва
27-этажный бизнес-центр класса А в Коммунарке завершает процесс утверждения своего архитектурного дизайна
Сегодня — 28 апреля, вторник / Москва
Перефразированное название статьи: "Открытие первого флагманского магазина Lumique в «Авиапарке»"
Сегодня — 28 апреля, вторник / Москва
"Подольская фабрика офсетной печати выставляет на приватизацию 49% своих акций"
Сегодня — 28 апреля, вторник / Москва
Самострои в ЮВАО: площадь почти 4 тыс. кв. м за первый квартал
Сегодня — 28 апреля, вторник / Москва
Иск на 11,7 млрд рублей подан банком «Санкт-Петербург» к структуре «Гранели»
Сегодня — 28 апреля, вторник / Москва
"«Яндекс Фабрика» запускает цепь офлайн-магазинов в Москве"
Сегодня — 28 апреля, вторник / Москва
Детская сеть магазинов "Кораблик" столкнулась с финансовыми трудностями
Сегодня — 28 апреля, вторник / Москва
Снижение загрузки премиум отелей Москвы в первом квартале до 69,4%
Сегодня — 28 апреля, вторник / Крым
"Продается комплекс солнечных электростанций на полуострове Крым"
Вчера — 27 апреля, понедельник / Москва
Гастропространство «НеДетский» на 630 посадочных мест открылось в Центральном детском магазине на Лубянке.
Вчера — 27 апреля, понедельник / Москва
"FORMA завершает продажу всех офисных помещений в бизнес-центре «ЛЕЙКС»"
Вчера — 27 апреля, понедельник / Москва
"Прогноз: восстановление офисного рынка Москвы ожидается к 2028 году"
Вчера — 27 апреля, понедельник / Москва
Проект строительства промышленного парка с двумя зданиями на востоке Москвы.
Вчера — 27 апреля, понедельник / Москва
Бизнес-центр площадью 22,7 тыс. кв. м открылся в Нагатинской пойме.
Вчера — 27 апреля, понедельник / Самарская
Недостроенный птицеводческий комплекс "Евробиотех" в Самарской области ищет покупателя
Вчера — 27 апреля, понедельник / Москва
"Планируется строительство восьмиэтажной автостоянки с коммерческими помещениями на 465 машиномест в Новой Москве"
Вчера — 27 апреля, понедельник / Москва
"«Монарх» приобрел участок площадью 1,36 га на территории бывшего Карачаровского механического завода"
Вчера — 27 апреля, понедельник / Москва
"Производство растительного молока от Сварщицы Екатерины"
Вчера — 27 апреля, понедельник / Москва
"Будущее магазинов Gate 31 под угрозой из-за финансовых трудностей"