Снять офис 221 м² в деловом центре Башня Империя
ID 1459995
Цена
1 348 100 ₽/мес
Ставка
73 200 ₽ / м² / год
Площадь
221 м²
Класс
A
Этаж
51 из 59
ИФНС
7703
агентство недвижимости
г Москва, наб Пресненская, д 6 стр 2
На карте
Кутузовская
—
6 мин
Деловой центр
—
2 мин
Деловой центр
—
2 мин
Деловой центр
—
2 мин
Москва-Сити
—
2 мин
Москва-Сити
—
2 мин
Описание
Предлагаем в аренду офис на 19 - 49 сотрудников в бизнес-центре "Башня Империя".
Разработаем планировку под вашу команду бесплатно с неограниченными правками.
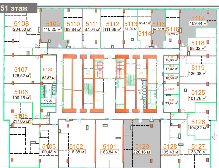
Площадь: 221 м².
Состояние: готов к въезду.
Арендная плата: 1 348 100 руб./мес.
Ставка: 73 200 руб./м²/год (включая эксплуатацию).
Налогообложение: включая НДС.
Коммунальные расходы: оплачиваются по факту.
Тип аренды: Прямая аренда.
Этаж: 51 из 59.
Помещение с функциональной смешанной планировкой.
Вентиляция: приточно-вытяжная.
Кондиционирование: центральное.
Охрана: круглосуточная охрана здания.
Пожарная сигнализация: спринклерная система.
Бизнес-центр Башня Империя класса A расположен рядом с метро Деловой центр и Москва-Сити.
Удобный выезд на:
ТТК.
Инфраструктура здания:
Подземная (1700 мест) и наземная (218 мест) парковки, кафе и ресторан, фитнес-клуб, продуктовый магазин, торговая галерея, 30 скоростных лифтов.
В пешей доступности:
ТЦ Афимолл Сити, Пресненская набережная.
Юридические адреса обслуживаются в налоговой №3.
Звоните или пишите в чат - организуем просмотр в день обращения и направим презентацию по объекту.
Этот лот состоит из нескольких помещений: 110 кв. м. и 111 кв. м.
Бесплатно разработаем планировку под вашу команду, рассчитаем оптимальную рассадку и зонирование.
*Количество рабочих мест рассчитано автоматически: от 4,5 до 12 м² на человека.
ID объекта: 030487
Разработаем планировку под вашу команду бесплатно с неограниченными правками.
Площадь: 221 м².
Состояние: готов к въезду.
Арендная плата: 1 348 100 руб./мес.
Ставка: 73 200 руб./м²/год (включая эксплуатацию).
Налогообложение: включая НДС.
Коммунальные расходы: оплачиваются по факту.
Тип аренды: Прямая аренда.
Этаж: 51 из 59.
Помещение с функциональной смешанной планировкой.
Вентиляция: приточно-вытяжная.
Кондиционирование: центральное.
Охрана: круглосуточная охрана здания.
Пожарная сигнализация: спринклерная система.
Бизнес-центр Башня Империя класса A расположен рядом с метро Деловой центр и Москва-Сити.
Удобный выезд на:
ТТК.
Инфраструктура здания:
Подземная (1700 мест) и наземная (218 мест) парковки, кафе и ресторан, фитнес-клуб, продуктовый магазин, торговая галерея, 30 скоростных лифтов.
В пешей доступности:
ТЦ Афимолл Сити, Пресненская набережная.
Юридические адреса обслуживаются в налоговой №3.
Звоните или пишите в чат - организуем просмотр в день обращения и направим презентацию по объекту.
Этот лот состоит из нескольких помещений: 110 кв. м. и 111 кв. м.
Бесплатно разработаем планировку под вашу команду, рассчитаем оптимальную рассадку и зонирование.
*Количество рабочих мест рассчитано автоматически: от 4,5 до 12 м² на человека.
ID объекта: 030487
Расположение
г Москва, наб Пресненская, д 6 стр 2
Кутузовская
—
6 мин
Деловой центр
—
2 мин
Деловой центр
—
2 мин
Деловой центр
—
2 мин
Москва-Сити
—
2 мин
Москва-Сити
—
2 мин
Технические характеристики
Параметры
Статус владельца объявления
агентство
Класс
a
Свободные помещения в Деловой центр Башня Империя
Новость дня
Расширение возможностей для B2B-клиентов: Avito вводит новые услуги для строительства складов
На платформе Авито теперь доступна категория "Коммерческое строительство" в сегменте услуг, предлагающая широкий выбор специализированных работ и возведение объектов "под ключ" для бизнеса, что упрощает поиск подрядчиков и субподрядчиков для коммерческих проектов.
Все новости
30 апреля, четверг / Москва
"Бумеранг Капитал" увеличил свою долю в сети кафе-пекарен "Цех 85" до 50%
30 апреля, четверг / Ставропольский
В Кисловодске начался проект строительства инвестиционного отеля "Реликт"
30 апреля, четверг / Москва
Ресторан «Долина 5165» и магазин Sokolov теперь доступны посетителям ТРЦ Avenue Sever
30 апреля, четверг / Москва
"Новый флагманский магазин под названием «Флаувау» открыл свои двери на Мясницкой улице"
30 апреля, четверг / Москва
"Уровень вакансии на складах в Московском регионе достиг 5,4% из-за увеличения предложений по субаренде"
30 апреля, четверг / Москва
"Прогнозируется незначительный прирост числа туристов в первом квартале 2026 года - всего 2,8%"
30 апреля, четверг / Москва
Компания "Ориентир" планирует вложить до 150 млрд рублей в расширение бизнеса и развитие новых секторов.
30 апреля, четверг / Москва
"Завершено строительство наземной парковки на 400 автомобильных мест в парке «Ривер Парк Коломенское»"
30 апреля, четверг / Москва
Скорось открытия новых магазинов «Лэтуаль» снизится - 150 точек закроются к 2026 году.
30 апреля, четверг / Москва
Смайл-бар сети "Белая точка" теперь доступен посетителям ТЦ "Левел Причальный"
29 апреля, среда / Москва
Московский цех открыл производство 3D-принтеров для металлической печати.
29 апреля, среда / Москва
БМ-банк завершил продажу большей части площадей в ТЦ «Весна» на Новом Арбате.
29 апреля, среда / Москва
Перефразированное название: "Сеть магазинов 'Жизньмарт' возобновляет свою деятельность в Челябинске"
29 апреля, среда / Санкт-Петербург
Сервисный офис «Практик» начал свою работу на Октябрьской набережной в Санкт-Петербурге.
29 апреля, среда / Санкт-Петербург
Строительство складских помещений в Санкт-Петербурге и Ленинградской области увеличилось в 2,5 раза.
29 апреля, среда / Москва
Москва увеличила объем строительства в рамках программы МПТ до 9,5 миллионов квадратных метров
29 апреля, среда / Санкт-Петербург
Соседский центр "ЖИВИ Клуб" открыл свои двери в Новоселье
29 апреля, среда / Москва
"Завершено строительство пятиэтажной наземной парковки в районе Нагатинский Затон"
29 апреля, среда / Санкт-Петербург
Рекордный уровень строительства складов зафиксирован в Санкт-Петербурге и Ленинградской области
29 апреля, среда / Москва
Аренда складов в Москве снизилась на 25%