Описание
Номер объекта: 541048. 1-я линия домов. Предлагается к продаже торговое помещение на 1-м этаже в Торговом центре расположенном в районе массовой жилой застройки Филевский парк.
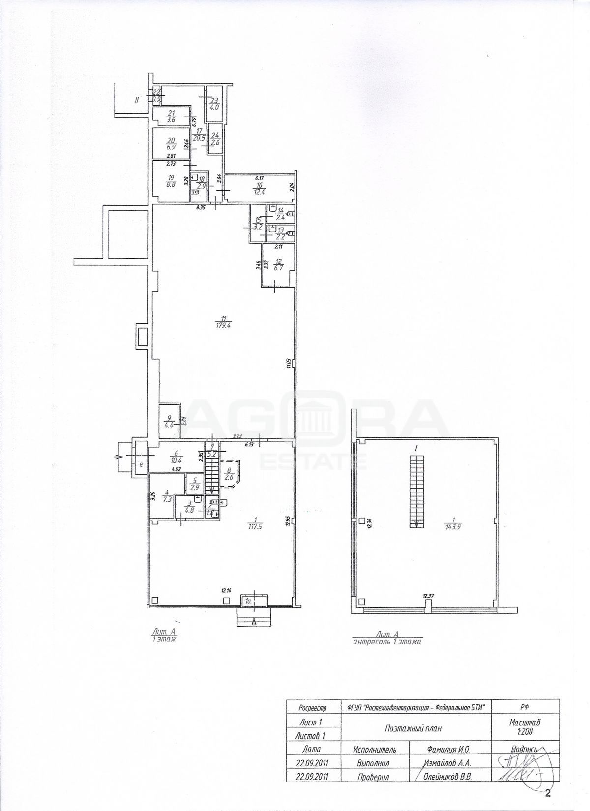
Общая площадь 560 кв.м.
1 этаж - 416,1 кв.м и антресоль 143,9 кв.м. 3 входа: 2 с фасада. Высота потолка на первом этаже 7,5 м, 3 м – антресоль. Возможно увеличение арендопригодной площади на 270 кв.м. за счет строительства антресоли.
Есть свой собственный погрузо-разгрузочный дебаркадер.
Кондиционирование, приточно-вытяжная вентиляция. Эл. мощность - 240 кВт. Зальная планировка. Современный фасад, витринное остекление. Помещение с ремонтом. Земля - собственность. Парковка наземная - 45 м/м.
Торговый центр - единственный крупный торговый центр в районе «Филевский парк», благодаря чему его статистика посещаемости намного выше других центров. Торговый центр располагает большим количеством объектов инфраструктуры, что обеспечивает большой стабильный поток потенциальных покупателей. В число арендаторов входят: супермаркет продовольственных товаров Лента, ресторан (включающий в себя бильярд, летнюю веранду, караоке, боулинг), сауна, салон красоты, церковная лавка, химчистка, магазин мебели, ломбард, аптека, магазин хозяйственных товаров, автомойка, шиномонтаж, фитнес-клуб и множество других арендаторов. В комплексе ведется круглосуточная охрана.
В непосредственной близости расположены остановки общественного транспорта.
Потенциальная доходность 10% годовых.
Объект № 541048
Общая площадь 560 кв.м.
1 этаж - 416,1 кв.м и антресоль 143,9 кв.м. 3 входа: 2 с фасада. Высота потолка на первом этаже 7,5 м, 3 м – антресоль. Возможно увеличение арендопригодной площади на 270 кв.м. за счет строительства антресоли.
Есть свой собственный погрузо-разгрузочный дебаркадер.
Кондиционирование, приточно-вытяжная вентиляция. Эл. мощность - 240 кВт. Зальная планировка. Современный фасад, витринное остекление. Помещение с ремонтом. Земля - собственность. Парковка наземная - 45 м/м.
Торговый центр - единственный крупный торговый центр в районе «Филевский парк», благодаря чему его статистика посещаемости намного выше других центров. Торговый центр располагает большим количеством объектов инфраструктуры, что обеспечивает большой стабильный поток потенциальных покупателей. В число арендаторов входят: супермаркет продовольственных товаров Лента, ресторан (включающий в себя бильярд, летнюю веранду, караоке, боулинг), сауна, салон красоты, церковная лавка, химчистка, магазин мебели, ломбард, аптека, магазин хозяйственных товаров, автомойка, шиномонтаж, фитнес-клуб и множество других арендаторов. В комплексе ведется круглосуточная охрана.
В непосредственной близости расположены остановки общественного транспорта.
Потенциальная доходность 10% годовых.
Объект № 541048
Расположение
г Москва, б-р Филёвский, д 10
Хорошевская
—
28 мин
Хорошевская
—
28 мин
Мнёвники
—
12 мин
Народное Ополчение
—
16 мин
Хорошёво
—
23 мин
Технические характеристики
Параметры
Охрана
есть
Инженерия
кондиционер
Статус владельца объявления
агентство
Класс
b
Параметры помещения
Высота потолков
—
Новость дня
Расширение возможностей для B2B-клиентов: Avito вводит новые услуги для строительства складов
На платформе Авито теперь доступна категория "Коммерческое строительство" в сегменте услуг, предлагающая широкий выбор специализированных работ и возведение объектов "под ключ" для бизнеса, что упрощает поиск подрядчиков и субподрядчиков для коммерческих проектов.
Все новости
Вчера — 6 мая, среда / Москва
Рекордное количество офисных помещений введено в Москве за первый квартал текущего года.
Вчера — 6 мая, среда / Москва
"Сокращение объемов складских помещений в Московском регионе достигло 14% за первый квартал"
Вчера — 6 мая, среда / Москва
Лишь 10% жилых комплексов располагаются вблизи берега Москвы-реки.
Вчера — 6 мая, среда / Москва
Цены на отели в Москве снизились впервые за два года
Вчера — 6 мая, среда / Карачаево-Черкесская
Капиталовложения в размере 5,83 млрд рублей на развитие курорта "Альто" на Домбае от компании "Плато Девелопмент"
Вчера — 6 мая, среда / Москва
Строительство склада площадью 80 тыс. кв. м для Ozon в Пушкино будет осуществлено компанией NK Group.
Вчера — 6 мая, среда / Санкт-Петербург
«Дача Фаберже в Санкт-Петербурге будет продана на аукционе компанией «Дом.РФ»»
Вчера — 6 мая, среда / Москва
Строительство коммерческих объектов в Москве упало на 91% за год
Вчера — 6 мая, среда / Москва
Как в Москве за первый квартал 2026 года построили 5,433 тыс. кв. м офисов, готовых к адаптации.
Вчера — 6 мая, среда / Санкт-Петербург
Продуктовые сети в России увеличили свои площади в торгово-развлекательном центре Петербурга на треть за последние 6 лет.
Вчера — 6 мая, среда / Москва
С начала года в Москве получили разрешение на строительство более 130 недвижимостей.
5 мая, вторник / Москва
"Сбербанк и Альфа-банк подали в суд на производителя обоев «Артекс» с требованием объявить его банкротом"
5 мая, вторник / Красноярский
"Магазин «ВкусВилл» открыл отдел shop-in-shop в Красноярске через партнерство"
5 мая, вторник / Адыгея
Строительство жилого комплекса на территории туристического парка "Дегуакская поляна" в Адыгее начнется архитектурным проектом от "Семьи" объемом 360 тыс. квадратных метров.
5 мая, вторник / Москва
"Прогнозируется достижение рекордной площади 500 тыс. кв. м под light industrial в Московском регионе к 2026 году"
5 мая, вторник / Астраханская
Фитнес-клуб DDX Fitness открылся в Торгово-Развлекательном Центре «Ярмарка» в городе Астрахань.
5 мая, вторник / Москва
"Объем спроса на офисные помещения в Москве сократился вдвое за последний год"
5 мая, вторник / Москва
"Рост стоимости отделки офисов в Москве превышает уровень инфляции"
5 мая, вторник / Москва
В России впервые за 20 лет не было открыто ни одной новой гостиницы в первом квартале
5 мая, вторник / Москва
Спрос на услуги аренды апартаментов в Санкт-Петербурге упал на четверть.