Купить ПСН 4619 м²
ID 1522912
Цена
365 000 000 ₽
Ставка
79 021 ₽ / м²
Площадь
4619 м²
Этаж
1 из -
ИФНС
7719
агентство недвижимости
г Москва, б-р Сиреневый, д 52А
На карте
Первомайская
—
19 мин
Щёлковская
—
20 мин
Измайловская
—
36 мин
Описание
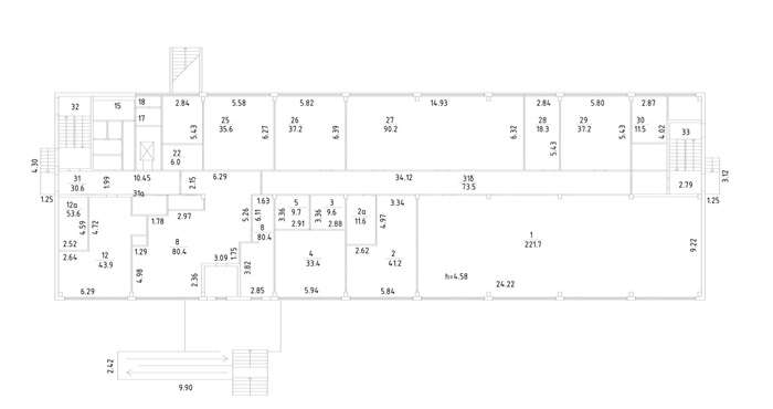
Продажа здания (ОСЗ) 4618,7 м2 у метро Первомайская. Собственник предлагает 4-х этажное здание , расположенное в густонаселенном районе. Год постройки 1972, свободная планировка, несущие конструкции колонны, высота потолков 4,6 м, много окон и света. Лифт 1, г/п. Площадь ЗУ 2 366 кв.м. Аренда до 07.04.2030г. Коммуникации центральные ХВС, ГВС, ЦО, мощность - 335 квт. Перспективное месторасположение: район Восточное Измайлово . Здание частично занято арендаторами. Планировка и конструктивные особенности здания позволяют реализовать любой проект: гостиница, общежитие, учебный, спортивный или офисный центр, клиника, дата-центр, производство, мини-склады и др. Стоимость вкл. НДС. Лот (ID) 652668. Объект №3100-652668.
Расположение
г Москва, б-р Сиреневый, д 52А
Первомайская
—
19 мин
Щёлковская
—
20 мин
Измайловская
—
36 мин
Технические характеристики
Параметры
Статус владельца объявления
агентство
Отделка
офисная отделка
Новость дня
Расширение возможностей для B2B-клиентов: Avito вводит новые услуги для строительства складов
На платформе Авито теперь доступна категория "Коммерческое строительство" в сегменте услуг, предлагающая широкий выбор специализированных работ и возведение объектов "под ключ" для бизнеса, что упрощает поиск подрядчиков и субподрядчиков для коммерческих проектов.
Все новости
Сегодня — 4 мая, понедельник / Москва
Вложения в недвижимость России за первую половину текущего года составили 169,5 миллиарда рублей.
Сегодня — 4 мая, понедельник / Москва
Российский складской рынок продолжает расти: площадь складских помещений превысит 60 млн кв. м к концу 2026 года
Сегодня — 4 мая, понедельник / Москва
"Компания "Галс-Девелопмент" получила одобрение на строительство делового центра "Дубининский"."
Сегодня — 4 мая, понедельник / Москва
Инвестиционный фонд "Бумеранг Капитал" стал владельцем половины сети кофеен "Цех 85"
Сегодня — 4 мая, понедельник / Краснодарский
В Анапе откроется первый отель с инновационными IT-сервисами
Сегодня — 4 мая, понедельник / Москва
Планируется строительство торгового центра площадью свыше 6 тыс. кв. м в Краснопахорском районе Москвы.
Сегодня — 4 мая, понедельник / Москва
Смена собственника у клубов «Дикая орхидея» и «Дефиле»
Сегодня — 4 мая, понедельник / Вологодская
"Прекращена деятельность "наливаек" и магазинов электронных сигарет в Вологодской области"
Сегодня — 4 мая, понедельник / Москва
"Exeed перемещает производство из Подмосковья на площадку АГР в Шушарах"
Сегодня — 4 мая, понедельник / Москва
На юге Москвы запланировано строительство ТПУ "Кленовый бульвар" на площади 2 гектара.
30 апреля, четверг / Москва
"Бумеранг Капитал" увеличил свою долю в сети кафе-пекарен "Цех 85" до 50%
30 апреля, четверг / Ставропольский
В Кисловодске начался проект строительства инвестиционного отеля "Реликт"
30 апреля, четверг / Москва
Ресторан «Долина 5165» и магазин Sokolov теперь доступны посетителям ТРЦ Avenue Sever
30 апреля, четверг / Москва
"Новый флагманский магазин под названием «Флаувау» открыл свои двери на Мясницкой улице"
30 апреля, четверг / Москва
"Уровень вакансии на складах в Московском регионе достиг 5,4% из-за увеличения предложений по субаренде"
30 апреля, четверг / Москва
"Прогнозируется незначительный прирост числа туристов в первом квартале 2026 года - всего 2,8%"
30 апреля, четверг / Москва
Компания "Ориентир" планирует вложить до 150 млрд рублей в расширение бизнеса и развитие новых секторов.
30 апреля, четверг / Москва
"Завершено строительство наземной парковки на 400 автомобильных мест в парке «Ривер Парк Коломенское»"
30 апреля, четверг / Москва
Скорось открытия новых магазинов «Лэтуаль» снизится - 150 точек закроются к 2026 году.
30 апреля, четверг / Москва
Смайл-бар сети "Белая точка" теперь доступен посетителям ТЦ "Левел Причальный"